Строительство бани с летней кухней1
Это фотка дома, который мы построили, теперь планируем построить баню и прошу вас оценить нашу идею.
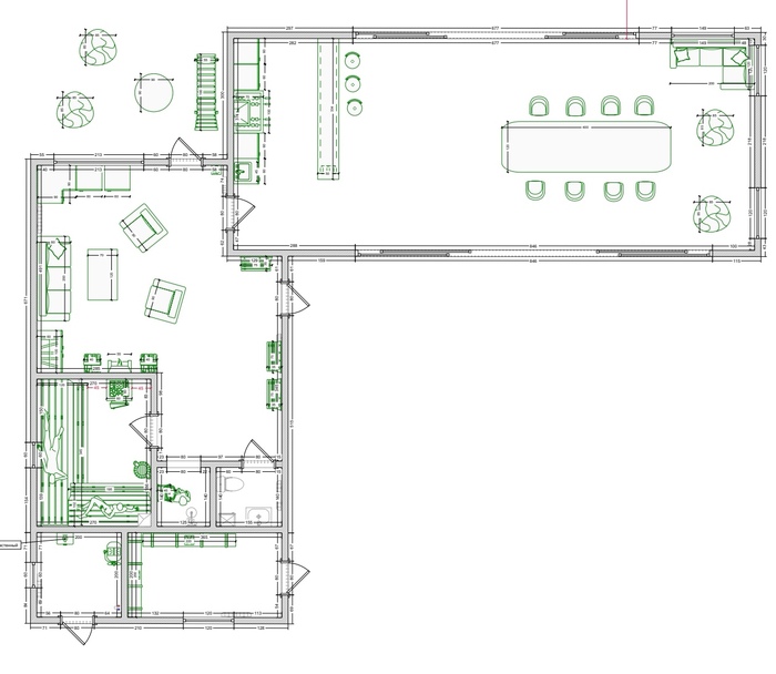
Вот такой план. Баня слева. В ней котельная, кладовая, туалет, душ, парилка, гостиная.
Планируем, что печка будет топиться из гостиной и там будет красивое каминное окошко.
В парилке должно быть достаточно места, чтобы легко вмещались 2 человека, также сделаем душ, чтобы поливать того, кто лежит.
Печь со стороны бани планируем такую
Рядом летняя кухня с мангалом с открывающимися раздвижными окнами.
Нам кажется, что все в проекте предусмотрели отлично.
Посоветуйте, пожалуйста, что мы не досмотрели?
Пост без рейтинга. Реально нужен совет знающих людей.
Обещаю публиковать ход строительства, если кому-то будет интересно.
P.S. видео с котиком просто так)
Высоцкий подпоёт нам, душою кружа?
Стих Высоцкого я не нарушу,
Наших душ обнажая гнильё,
– «Нужно выпороть веником душу.
Нужно выпарить смрад из неё»,
Смрад законов, безчестной морали,
Смрад условно-искусственных прав,
Чтобы жизнью опять управляли
Ум наш русский, а главное – Нрав,
Чтоб о Правде – простой и высокой
Жизни в лад пела наша душа,
И тогда с Горних Высей Высоцкий
Подпоёт нам, душою кружа.
Протопи ты мне баньку по-белому -Я от белого свету отвык
С нового года в Усть-Камчатске «Водоканал УК СП» повысил цену услуг общественной бани. Рост составил почти в 2,5 раза: экономически обоснованный тариф установили в 1 608,11 рубля.
Как сообщил глава Усть-Камчатского муниципального округа Олег Бондаренко, на помощь пришли рыбопромышленники.
«В очередной раз они пошли нам навстречу и гарантировали покрытие расходов, связанных с функционированием общественной бани в Усть-Камчатске. Таким образом, удалось сохранить доступную стоимость для населения», – написал Бондаренко.
Сейчас цена за одно посещение для жителей с пропиской в Усть-Камчатском округе составляет 700 рублей, для всех остальных – 1600 рублей за одно посещение. Также льготники могут приобрести талоны на бесплатное двухразовое посещение в месяц.
- сообщает ИА «Кам 24» https://kam24.ru/news/main/20250117/113402.html#.O6i1y84g.dp...










