Бактерии
10 постов
10 постов
15 постов
5 постов
35 постов
13 постов
25 постов
На земле на смычек действует сила тяжести, которая прижимает его к струнам. В космосе этой силы нет, значит нужно дополнительно прижимать смычек рукой, а значит сразу нормально играть не получится и нужно этому учиться. Есть подозрение, что это игра "под фанеру". Не сомневаюсь, что играет она, но возможно не в космосе. Да и качество звука мне кажется слишком хорошее (где шум оборудования?).
Если есть тут скрипачи? Не могли бы вы поиграть вися вверх ногами и рассказать, насколько реально быстро научиться играть в таком положении. Если реально, то это развеяло бы часть подозрений.
Отыскать что-то конкретное про Российскую вакцину от рака у меня не получилось. Однако идея не нова и можно найти описание подобной вакцины в иностранных источниках. Кратко изложу мое понимание принципа такой вакцины.
В чем идея вакцины от рака.
Иммунная система постоянно проверяет протеины, производимые нашими клетками. Если обнаруживается измененный (мутировавший) белок, то клетка, его производящая, убивается.
За это отвечают особые лимфоциты. Каждый лимфоцит имеет уникальный рецептор для распознавания определенной мутации. Если какой-то лимфоцит обнаруживает мутацию, он создает армию своих клонов с точно таким-же рецептором и они дружно убивают все клетки организма, производящие данную мутацию.
Т.е. иммунная система постоянно ищет и убивает раковые клетки любого типа и во всех органах. Получается, что раковых заболеваний быть не должно!
К сожалению во всех наших клетках есть особая программа защиты от лимфоцитов, которую раковые клетки умудряются в конце концов запустить. Лимфоциты перестают реагировать на клетки с включенной защитой. Никакой реакции на мутации нет, а значит никакой армии клонов, способных распознавать эти раковые клетки не создается и опухоль спокойно растет.
А теперь представьте, что мы заставим небольшое количество наших нормальных клеток вырабатывать белок, который выглядит точно так, как мутировавший белок в нашей раковой клетке. На такие "нормальные" клетки лимфоциты среагируют, поубивают их, но создадут армию клонов. Эта армия клонов уже имеет хорошие шансы пробить защиту раковых клеток.
В чем сложности реализации этой идеи.
Во первых, нужно понять, какие мутации произошли. Т.е. прочитать геном раковых клеток и найти что, где и как поломалось. Причем сделать это быстро и дешево. К счастью, такое мы уже лет 20 делать умеем. Прочитать геном человека сейчас стоит около $1000 и занимает дня три.
Во вторых, нужно заставить клетку производить мутантный белок, но при этом она должна оставаться нормальной - ее ДНК не должна иметь мутаций. А вот эта технология появилась благодаря ковиду, когда нужно было в рекордно короткие сроки создать вакцину. При этом создали не просто вакцину, а обкатали новую технологию создания вакцин, делающих именно то, что нам тут и нужно - заставляющих нормальную клетку вырабатывать ненормальный белок.
Есть ли результат
Впервые об успехах этой идеи доложили компании Merck and Moderna в декабре 2023-го года. Они сообщили о положительных результатах клинических испытаний РНК вакцины под названием mRNA-4157 в лечении кожи (причем III, IV стадии). При этом вакцина была применена вместе с препаратом Keytruda, который одновременно ослаблял защиту раковых клетов от лимфоцитов.
Решил я проверить правда ли на ягодах винограда живет огромное количество дрожжей. Купил виноград, сделал смыв с поверхности виноградины и посмотрел под микроскопом - ничего, пусто. Никаких дрожжей я не нашел. Никакого "огромного количества" там точно небыло.
Виноград помыл, положил в вазу и через пару дней съел. Но пока виноград лежал с него стекла вода на дно вазы. Лужица из под винограда была мутноватая, и я решил посмотреть, что там выросло. Взял капельку, покрасил метиленовым синим и посмотрел под микроскопом. Ожидал увидеть бактерии, но обнаружил дрожжи! Много дрожжей! Вот тут они при увеличении x400 выглядят как белые рисовые зерна:
При увеличении x4000 дрожжи можно рассмотреть подробнее и увидеть бактерии. Однако бактерий в этой воде я не обнаружил. Может не успели нарасти, а может дрожжи их рост как-то подавляют.
Интересно, что форма этих дрожжей сильно отличается от формы хлебопекарных. Вот для сравнения слева виноградные дрожжи, а справа хлебопекарные (купленные в магазине).
В фильтрах посудомойки застревают остатки еды. Вода, еда, тепло - идеальные условия для жизни бактерий. Жизнь бактериям осложняет только средство для мытья посуды и периодический нагрев до высокой температуры. Однако оказывается бактерии прекрасно переживают это (по крайней мере у меня в посудомойке).
Я взял соскоб с фильтра внутри посудомойки, подкрасил метиленовым синим и вот что увидел под микроскопом. Вначале снимок с увеличение x400. Бактерии тут видны как мелкая взвесь в воде.
На следующих снимках увеличение x4000 и можно хорошо рассмотреть бактерии.
Часто встречаю среди программистов скептическое отношение к перспективе развития ИИ. “Я прекрасно понимаю как это все работает, поэтому точно знаю, что ничего нового в этом нет и ничего нового оно породить не может. Что в него заложено, то он и будет повторять.” - примерно так они формулирует свое мнение.
Действительно, софт, который используется для обучения и работы ИИ является далеко не вершиной сложности компьютерных программ. Я бы даже сказал, что он довольно примитивен. Работа ИИ представляется простым складывании и умножением цифр. Просто цифр много и это порождает некоторые технические сложности. Это видит и понимает программист.
Проблема в том, что программист не видит того, что стоит за этими примитивными расчетами.
И это не является чем-то особенным. Программист видит изменения в базе данных, но он не видит за этими изменениями финансовые мошенничества, изменения климата, ухудшение здоровья пациента, близость компании к финансовому краху. Это все видят совершенно другие специалисты, которые часто не имеют отношения к ИТ сфере.
Программист не видит, что примитивные расчеты являются весьма сложной математической моделью мира и процесса осмысления его человеком. Программист не видит, что ИИ порождает новые знания, точно так-же как, например, климатическая модель мира порождает знание о том, что будет в случае взрыва мощного вулкана.
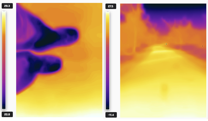
Асфальтовая велосипедная дорожка в парке
Кроны деревьев, сквозь которые видно небо. Интересно, что небо показывает минусовую температуру в термовизоре.
Газон в парке. Только что включился полив.
Бассейн. Тут было освещение, и удалось получить обычный снимок. Интересно, что ИК-излучение отражается в воде, как и обычный свет.


Подстриженные кусты на недавно политой земле. Освещения мало, так что обычный снимок не очень получился. Ярко светится на заднем плане тёплый бетонный забор.


На графике смертность от ковида (COVID-19) в Италии (оранжевый цвет) и Китае (голубой цвет) в разных возрастных группах. А последние столбики на графике (отмечены стрелкой) - это общая смертность. Видите странность?
Смертность в Китае выше в каждой возрастной группе. А вот если посчитать общую смертность, то получается наоборот! Это не ошибка в подсчетах. Это то, что называется парадоксом Симпсона.
Парадокса тут нет, но и не так просто сообразить почему так получается.
Обратите внимание, что выживаемость сильно зависит от возраста - чем старше, тем больше смертность. А теперь представьте, что в Италии в основном заразились старики, а значит общая смертность определяется в основном стариками. В Китае же заразилась в основном молодежь и общая смертность определяется смертностью молодых людей. Вот и получается, что суммируя людей всех возрастов мы реально сравниваем не Италию с Китаем, а стариков с молодежью.
Если бы количество заразившихся стариков и молодежи в Китае было бы в той же пропорции, что и в Италии, то никакого парадокса бы и небыло.
Картинка взята из научной статьи, посвященной этому парадоксу
Я не врач, но у меня дома есть микроскоп и я смотрю через него на всякое. В этот раз я решил посмотреть, что у меня живет в районе миндалин.
Мазок брал до еды. Взять его было не просто, но что-то из района миндалин мне удалось получить и размазать по предметному стеклу. Покрасил по Романовскому-Гимзе. Это самый простой способ окрашивания - подсушиваешь мазок, капаешь спиртовой раствор красителя, ждешь, добавляешь воду, ждешь и смываешь. Вот что получилось.
При небольшом увеличении (x400) хорошо видно клетки эпителия и их ядра (синие крупные точки)
А вот при увеличении x4000 уже можно рассмотреть бактерии.
Поразило количество обнаруженных бактерий. Местами они практически полностью покрывали клетки эпителия. А ведь никаких проблем с горлом я не чувствую, вполне обычное состояние.
На фотографии видно ядро эпителиальной клетки, окруженное бактериями. По форме бактерии похожи на бациллы (поправьте меня если я путаю).
В одно месте обнаружил разнообразие форм. Похоже тут есть и бациллы (палочки) и кокки (шарики).
Микроскоп AmScope B120C (стоит меньше $300)