Саморазвитие
Договорились с девушкой уделять по несколько часов в выходной день на полезные дела и развитие.
Я сел за компьютер писать тексты, а она за ноутбук доделывать проект здания в Revit'e.
Спустя минут 30 я подкрался к ней сзади и увидел, что она почти закончила проект, и Капитолий уже есть, и гильдия магов, а Revit сменился Героями Меча и Магии 5.
Возмутившись такой наглостью, я был вынужден остановиться в развитии и доказать ей, что мой форт крепче.
REVIT. Проект дома с нуля для начинающих! С обучением по работе в программе
Добрый день уважаемые пикабушники!
Вашему вниманию образовательный контент. Хочу сформировать общее понимание и бесплатно обучить научить работать в программе AUTODESK REVIT
Все уроки структурированы по плейлистам и предоставляются в открытом доступе без рекламы курсов и онлайн школы . Просто садись, изучай, наслаждайся
SKETCHUPИ углубленное изучение!
REVIT [Логика программы, разница между AUTOCAD,3Ds MAX] Базовые алгоритмы BIM
План дома в REVIT. Часть 1.Оси, свойства, стены, настройки материалов
Как построить дом в REVIT?
Выполняем чертеж дома по заданию REVIT. Малоэтажный коттедж.
Как создать оси в ревите - Проектирование осей по заданию. С комментариями и подсказками. Видео урок. План дома в REVIT.
Первая часть по выполнение проектной документации дома. Проектирование и отработка навыков REVIT.
В видео вы сможете познакомиться с базовыми навыками выполнения всех стандартных элементов построения чертежа в программном комплексе REVIT.
💫В обучающем видео вы найдёте:
1️⃣ Строим оси в REVIT 02:15
2️⃣ Настраиваем уровни REVIT 08:16 Уровни в REVIT - высота этажа
3️⃣ Разбираемся в материалах и функциях стен в REVIT 11:37
План дома в REVIT.Часть 2.Перекрытие, фундамент. Добавление, редактирование семейств. Клавиша TAB
REVIT. План дома в REVIT.Часть 2.Перекрытие, фундамент Revit. Добавление, редактирование семейств revit. Клавиша TAB REVIT
Как построить дом в REVIT?
Выполняем чертеж дома по заданию. Малоэтажный коттедж.
Как начертить перекрытие в REVIT ?
Как работает клавиша TAB.
3D вид.
Добавление и редактирование окон через семейства. Добавление дверей и редактирование через семейства revit. С комментариями и подсказками. Видео урок revit. План дома в REVIT.
Вторая часть по выполнение проектной документации дома. Проектирование и отработка навыков. REVIT для начинающих.
В уроке для начинающих REVIT Вы увидите:
✔ Выполняем монолитную фундаментную плиту REVIT 03:00
✔ Учимся работать с эскизами перекрытия и фундамента REVIT. 05:10
✔ Выполняем монолитное перекрытие в REVIT. - 18:10
✔ Крыльцо REVIT 15:20
✔ Добавление окон REVIT / Добавление дверей REVIT 23:45
План дома в REVIT.Часть 3.Лестница, Второй Этаж, Проём в перекрытии под лестницу. Лестница по эскизу
Как построить лестницу в REVIT? Как сделать эскиз лестницы? Как правильно построить проём в перекрытии под лестницу? Как выполнить план второго этажа?
План дома в REVIT.Часть 4. Как построить крышу чердака, мансарды в ревите ?
Построение стандартных крыш мансарды и чердака на примере дома под ИЖС.
Уроки REVIT. В данном уроке вы увидите:
✔ Функции построения крыш 03:10
✔ Крыша мансардная 03:50
✔ Крыша чердака 16:54
План дома в REVIT.Часть 5. Как построить базовый вентканал в ревите ?
Изучение проектирования инженерных систем в REVIT не начинается с пустого места. Нужно сперва понять базу. Уроки для начинающих в ревит основываются на обучении всех основных функций по работе в программе. Критика приветствуется, но не забывайте что это только для начинающих а дальше будет больше!
Я не рекламирую школу revit ! Я не предоставляю скидки. Я хочу подарить вам бесплатные курсы REVIT и доступные для любого. Все уроки структурированы.
План дома в REVIT.Часть 6. Как сделать вставку из другого материала в ревите? Как покрасить стену?
Видео поможет правильно организовать покраску стены.
Во второй части показано на примерах, как сделать вставку элемента из другого материала в стену в ревите
Я не рекламирую школу revit ! Я не предоставляю скидки. Я хочу подарить вам бесплатные курсы REVIT и доступные для любого. Все уроки структурированы.
План дома в REVIT.Часть 6.1. Как сделать РУСТ в ревите?Revit рельефная кладка
Архитектурный руст в ревите.
Пошаговое построение.
Выбор материала и эскиз контура.
Рельефная кладка в ревите.
В дополнение к видео (План дома в REVIT.Часть 5).
😉 https://yadi.sk/i/easvCTYcOILv-Q - архив со штриховками 😉
План дома в REVIT.Часть 7. Как сделать благоустройство в REVIT. Топоповерхность в Ревит
В видео поэтапное построение топоповерхности с прилегающей территорией в ревите. Разделение топоповерхности и создание дорожек в ревите. Добавление семейств озеленения и антуража.
План дома в REVIT.Часть 8. Редактирование и настройка фасадов для перевода чертежа из 3D в 2D
В видео пошаговая инструкция настройки толщин линий в REVIT.
Настраиваем фасады:
толщины линий
убираем всё лишнее
создаём шаблон для настройки все фасадов
делаем все обозначения согласно ГОСТ и СП
настройка легенды для условных обозначений материалов фасада
https://yadi.sk/d/AHaVl3b1dUslFg архив с штриховками
План дома в REVIT.Часть 9. Оформление разреза в ревите. Настройка и оформление
Как сделать разрез в ревит?
Как настроить отображение в ревите проекции разреза?
Толщины линий разреза в revit
https://www.youtube.com/playlist?list=PLXIk9OtNchibvvzmnHXGM... - полный плейлист по задаче - План дома REVIT.
План дома в REVIT.Часть 10.План этажа в Ревите. Все настройки и все отображения. С пояснениями
В данном видео пошаговое построение плана этажа дома в ревите.
Скрытие ненужных элементов 01:00
Настройка секущей плоскости 01:39
Настройка толщин линий 02:50
Настройка отображение элементов окон и дверей (настройка семейств) 05:48
Название чертежа 19:56
Какие оси скрывать на планах 20:17
Полная настройка лестницы 20:48
Высотные отметки 25:00
Полная настройка разреза 28:17
Сантехнические приборы на плане 34:00
Маркировка помещений и настройка по ГОСТ 36:38
Площади помещений 44:02
Условные обозначение на чертеже 49:03
https://yadi.sk/d/f3a3Jg7Fzigh1g ссылка на семейство разрыва
Размеры на плане (настройка и расстановка) 56:08
Второй этаж и площади плоских крыш 1:08:18
План дома в REVIT.Часть 11.Таблица экспликаций. Выводы чертежей на листы. Все настройки.
В данном виде вы можете научиться оформлению листов в программе REVIT
Создание листов 00:24
Добавление на листы 23:15
Таблица экспликаций 26:00
Экспликация для 2 этажа 39:45
Изменение названия помещений 41:28
обозначение Площадь, м²
План дома в REVIT.Часть 12.Ведомость рабочих чертежей. Сохранение чертежей в PDF.
Ведомость рабочих чертежей и сохранение чертежей в PDF, а также настройки вывода чертежа на печать!
Ведомость рабочих чертежей 02:16
Сохранение чертежей в PDF 10:10
Бесплатные для некоммерческого использования PDF-XChange Lite или PDFCreator, последний позволяет также объединять несколько PDF файлов в один!
Создание своего шаблона REVIT
Прокачайте уровень владения программой. В данном видео мы научимся создавать шаблон на основе проекта. С сохранением всех необходимых настроек и параметров.
REVIT.Крыша REVIT, вальмовая, односкатная, двускатная, четырех скатная, вальмовая крыша
REVIT. Как создать различные варианты уклонов кровли ? План дома в РЕВИТ.
Видео посвящено моделированию различных видов скатов крыши в REVIT.
1️⃣ Односкатная крыша REVIT 02:06
2️⃣ Двускатная крыша REVIT 05:37
3️⃣ Трехскатная крыша REVIT 07:25
4️⃣ Четырехскатная крыша REVIT 07:46
5️⃣ Полувальмовая крыша REVIT 10:50
6️⃣ Восьми скатная сложная крыша REVIT
7️⃣ Сложная крыша REVIT 11:43
8️⃣ Составная крыша REVIT Сложная крыша REVIT 14:20
REVIT .⛪ Слуховое окно в REVIT ⛪
⛪ REVIT ⛪. Как создать различные варианты Слуховых окон в REVIT ? Для план дома в РЕВИТ.
Уроки revit для начинающих. Если вы задумывались, как сделать слуховое окно в крыше REVIT? Что такое слуховое окно ? Как сделать проект дома с слуховым окном?
1️⃣ Первый вид слухового окна в REVIT 01:27
2️⃣ Второй вид слухового окна в REVIT 02:06
Сдача диплома/обучение Revit/
Всем добрый день! Хелп.
Занимаюсь написанием диплома по профилю ПЗ. Учусь на заочной форме.
Тема диплома "Многофункциональный бизнес/торговый центр"
Из опыта: 4 Курсовых в ревите, 3-5 пройденных курсов по ревиту от А.Меркулова и куча потраченного времени в институте за 5 лет.
Содержание диплома приблизительно состоит из 4 разделов(+-)
1.Архитектура(ГРАФ РЕФЕРАТЫ, ОБЩЕЕ ОПИСАНИЕ ЗДАНИЕ И ВСЯКОЕ ТАКОЕ)
2.Конструкция здания.( ПК ЛИРА, НЕ ИНАЧЕ КАК ОЧКО ДЛЯ МЕНЯ ЛИЧНО)
3.Основания и фундаменты ( РАЗДЕЛ +- ПОНЯТНЫЙ МНЕ)
4.Технология и организация строительства.(ТЕХНОЛОГИЧЕСКАЯ КАРТА(+- ПОНИМАЮ))
Планирую(в уме) 3-4 этажное ТЦ с парковкой на 1ом этаже(габаритность 9-12 на 12-15)
Прошу совета, кто разбирается и может помочь.
1.Какое выбрать семейство для ЖБК/БК конструкций
2. Общие советы по написанию диплома(как вы укладывались в сроки и т.д)
3.Общие советы по презентации диплома на защите
4.Как происходит сдача ГОСОВ
5.Похоже слишком нагло, но есть ли у кого готовый архитектурный проект или что-то в этом роде из автокада(да-да-да, лентяй хочу использовать как подложку)
P.s
Учусь на бюджете заочки, как попал после армии хызы) сам не понимаю.
По профессии работать не собираюсь(уже работаю в другой сфере), диплом хочу просто получить для галочки родителей(их закос, НО в принципе сделать приятное им хочу, т.к много сил вложили в мое обучение)
Смена профессии. Из строительных конструкций в визуализацию и дизайн интерьеров. [1]
Доброго времени суток. Приветствую каждого!
Сперва хочу обозначить что такое это полотно текста и зачем.
Возможно, это графомания (сомнительно), но для себя я рассматриваю это как нечто вроде дневника, чтобы понять получается ли у меня прогрессировать в выбранной области или нет.
И, возможно, получить советы от людей, которые занимаются визуализацией и дизайном интерьера профессионально. Буду рад любым конструктивным комментариям и советам, на что обратить внимание и в какую сторону работать стоит усерднее:)
Начну с предыстории, 2 года назад - в период обучения в универе (магистратура, специальность: проектирование зданий и сооружений), была 1 курсовая работа по визуализации с использованием 3Ds Max. На контрасте с постоянной работой в программных расчетных комплексах и автокаде (по учебным целям) - сказать что мне понравился процесс моделирования - ничего не сказать. Посидел около недельки, ковыряя программу, пытаясь понять как вообще крутить камерой, создавать простые формы и тд и получил заветные картинки, для сдачи курсовика:
2018 год. Курсовая работа
Я был очень воодушевлен и доволен тем, что получил, курсовик сдан - цель выполнена, да еще удовольствие получил - отлично. Сейчас, конечно вижу множество недочетов, от тайлинга текстур на поверхности фасада, отсутствие объема на поверхностях фасада и тд и тп. Может быть, было бы круто отреставрировать эту сцену, если вдруг захочется поработать с экстерьерами.
Немного о работе
В тот период времени я работал инженером-конструктором и начинал осозновать специфику профессии (в своем представлении ) - ежедневные переработки, "коллеги, нужно поработать в субботу (каждую неделю)" , большой объем информации. Но все искупал проект, над которым велась работа - покрытие МФЦ Лахта-центра. Делал рабочую документацию для части, которую я криво-косо обвел красным.
Очень классно понимать, что ты вложил частичку себя и большое количество сил и труда в небезызвестное здание, а не какой-нибудь промышленный завод (завод был дальше :)
Работа велась в программе TeklaStructures. Также в 3Д, да еще и BIM, красота. В тот период для себя я обозначил 2 момента - хочу работать в 3Д (если конструктором- в BIM среде) и как можно меньше иметь дело с прочностными расчетами (всегда находил это более сложным для себя), более уверенно себя чувствовал в области создания чертежей, узлов и обработке прочей графической информации.
Не буду углубляться в подробности прошлой работы, это к рассказу "люблю работать в 3д, чертить люблю чуть меньше, считать и составлять пояснительные записки не люблю совсем". Продолжу о визуализации.
Итак, после домика из курсовой работы я не заходил в 3D Max около полугода. Загорелся ярко, да потух быстро :)
И вот, спустя где-то пол года от родственников приходит просьба: "Ты ж инженер, нам кухня нужна - можешь начертить с размерами?" Собственно, вообще не вопрос. Но почему бы еще и картинок не сделать, подумал я. Сказано - сделано. Спокойно, в рабочем темпе, попутно изучая инструменты программы получил следующий результат:
2019, лето. Первая интерьерная визуализация:
Кухня немного видоизменилась после похода к мебельщикам и спустя пару недель я получил фото:
Классно видеть физическое воплощение своей деятельности. Начал уделять свободное время более комплексному изучению аспектов программы, чтобы в перспективе перейти на коммерческий уровень и превратить то, что нравится в профессию.
Снова перерыв до осени. Дальше дошли руки сделать еще одну сценку. Санузел. Научившись импортировать модельки с 3ддд и срезать фаски с фасадов во время работы над кухней, по аналогии собрал следующую сценку
Неровный стык плитки снизу - смешной косяк, который был не замечен.
Как мне кажется сейчас, здесь по большей части проблема с освещением, да и с материалами/текстурами явно можно поработать получше.
Дальше снова последовал перерыв (кто бы сомневался :D) в пол года, основная работа занимала все свободное время, а когда выдавался свободный денек - мне просто не хотелось видеть компьютер.
Снова захотел вернуться к самообучению весной этого года. Понял, что моя попытка найти системный подход в прошлый раз не увенчалась успехом. Было решено найти структурированный и понятный материал. На помощь пришел ютуб канал с курсами Евгения Грипинского, это было именно тем, что я искал. В процессе более структурированного знакомства с программой поэтапно моделил свои первые шкафы, стульчики и даже домик для котёнка :)
В тот же период времени нашел работу по выполнению планировок и стилистических коллажей за 1 день и 3 пачки чипсов по оплате - они называют это "экспресс дизайн"))
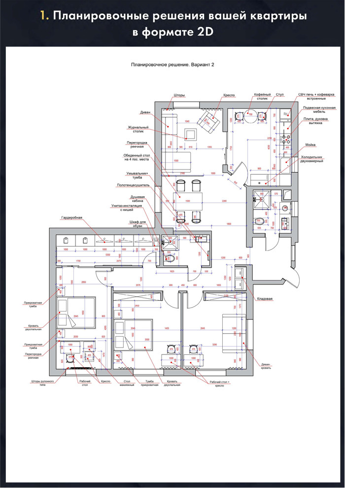
Было решено, что хоть и не виз, а чертежи, но все равно ближе к тому, чем хотелось бы заниматься в итоге. По поводу работы с планировками стоит рассказывать отдельно - в два слова не уложиться. Если будет интересно, расскажу как я сделал для этой конторы 10 альбомов с планировками и уже 2 месяца не могу получить оплату за половину из них :D. Работал в Revit и делал подобное(+3д вид и коллаж с подбором мебели, напольных, настенных покрытий и тд):
Дни шли, из-за погружения в свеже найденную работу снова образовался перерыв в 2-3 месяца в области визуализации и появилось желание получить хоть одну более-менее приличную картинку. Взял комод, который моделил до этого в учебных целях и 2 понравившиеся мне картины за основу сцены, которую я хочу собрать. Не обращая внимания на такие моменты как композиция - об этом я, если честно не задумывался. По большей части - старался работать с материалами, настройками света и решил, что неплохо было бы начать разбираться, как работать в фотошопе (вышло так, что месяца 3-4 назад впервые попробовал что-то сделать в фш). Получил несколько иттераций сцены, прикреплю то, на чем оставил эту работу:
Август 2020
Все, кроме комода - подгруженные модели. Мои материалы и текстуры - стены, пол, комод. Собственно, как мне кажется материал комода и пола неудачный, смотрится ненатурально. Но как поправить и что конкретно не так - не до конца понимаю.
Последняя работа, которую я хочу показать в этом посте - тестовое задание на соискание должности визуализатора (удаленно), зарплата низкая, но я понимаю, что вряд ли на данном этапе могу конкурировать со средними работами по рынку, так что было принято решение попробовать. Заданием было - смоделировать кухню - внешний вид и стиль - на выбор соискателя. С кухней я уже имел дело, минималистичные кухни с фасадами без ручек выглядят неплохо, да и моделить ручки не нужно (лень-матушка). Время на выполнение задания - 24 часа. Получил следующий результат:
И, собственно, через пару дней получил на почту письмо.
Тестовое задание пройдено, пришлем проект, можете приступить к работе.
На данный момент - закончил работу над первым проектом - квартира-студия. Не знаю, могу ли выкладывать эти работы в общий доступ - в оферте написано, что использование работ в любом виде не разрешается. Может знающие люди подскажут как это работает. Насколько я понял, даже в свое портфолио на том же ХХ и Behance(разработка портфолио для этой площадки в процессе) я эти работу добавлять не могу. Поправьте, если есть кто-нибудь знающий и я ошибаюсь.
Путь продолжается, работа идет все более активно. С каждым днем и новой задачей понимаю, что не знаю слишком многого, но это никак не демотивирует, скорее наоборот.
Изначально писал пост для пикабу, но сейчас задумался, что возможно, стоило выкладывать на форум 3ддд или подобные тематические ресурсы. Но, пусть для начала будет здесь.
Так как одной из целей всей этой писанины я изначально ставлю рост до коммерческого уровня - благодарен тем, кто сможет дать советы и любую полезную информацию, касающуюся профессий визуализатор интерьеров, дизайнер интерьеров(строительные чертежи и концепция проекта), архитекторы, работающие с разделом АИ. Было бы очень интересно пообщаться с людьми непосредственно из профессии.
















