19518

Кухня: 5.9 кв.м - это магия. Или впихнуть невпихуемое

Иногда, привычное окружение достает неимоверно. Старая мебель, не отмывающийся линолеум, дурная планировка... и хочется наконец избавиться от всего этого, взять в руки перфоратор, ломик, топор, да и снести все к лешему, приведя в порядок помещение, которое видело ремонт лет 30 назад. Вот и со мной такое приключилось...


Итак, что имеем: Старая кухня в хрущевке (по факту, ремонт я устроил во всей квартире, но про это напишу как нибудь в другой раз, иначе пост растянется неимоверно). Площадь типичная - 5.9 квадратов, 1 окно, газ, водяные подводки в углу. Вот примерно вот так.

Кухня: 5.9 кв.м - это магия. Или впихнуть невпихуемое Кухня, Ремонт, Строительство, Интерьер, Своими руками, Хрущевка, Длиннопост

Не скажу что все убито - уход и чистка какая никакая была, но... сами понимаете. свободного места по сути нет, под окном - дующий *холодильник* (дырка на улицу с ящиком, если кто то не видел такого), настоящий холодильник в коридоре. Все забито мебелью - остается г образный проход с метр шириной.


Начал я с плана. Вначале просмотрел 100500 решений для хрущевок - благо в интернете их огромное количество. отобрал из сотен картинок десятки интересных. Порисовал на бумаге. Потом порисовал в 3д редакторе. Ну и родил вот это вот

Кухня: 5.9 кв.м - это магия. Или впихнуть невпихуемое Кухня, Ремонт, Строительство, Интерьер, Своими руками, Хрущевка, Длиннопост
Кухня: 5.9 кв.м - это магия. Или впихнуть невпихуемое Кухня, Ремонт, Строительство, Интерьер, Своими руками, Хрущевка, Длиннопост

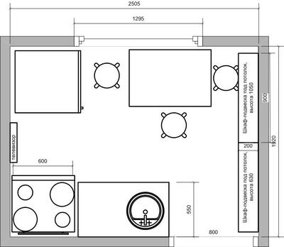
В целом, задачи я видел следующий:


1) холодильник должен быть на кухне

2)рабочая зона должна быть большой

3)по возможности, пространство не должно быть загромождено


Вроде, простые задачи, но не для такого маленького помещения. Те кто проектировал такие кухни знают, наверное, что габариты не позволяют нормально поставить многие модули кухонные . Например, классику в виде холодильник - мойка - рабочая зона - плита невозможна, так как в длину помещения лезет всего 3 модуля по 60см , а не 4. И как сделать большой рабочую зону, если суммарная длинна помещения - 2.35 м... В общем, поломать голову было над чем.


Что я сделал, и почему:

0) Держите в голове, что все делалось под 1 человека, а не под семью, и под конкретно мои цели и привычки

1) мойка, здоровенная, 62 см. Почему такая здоровая дура , на такой мелкой кухне (нелогично, вроде) - такая мойка при использовании дает очень мало брызг, и ее можно ставить около стены, не боясь ее залить и не испытывая необходимости тереться о стену - также удобством использования отчасти нивелирует необходимость в посудомойке - ее я не ставил. Положение раковины крайне левое - там подводки, канализация. Она занимает все место от стены до рабочей зоны, не оставляя неиспользуемых обрезков стола слева.

2)Далее, за раковиной идет рабочая зона, основная - именно на ней происходит 90% готовки. Простая логика - помыл продукт - передвинулся на шаг правее - начал его обрабатывать. Ее длинна - метр, и это отличный результат, я мало где видел рабочие зоны длиннее 40, 60 см в похожих помещениях.

3)Плита, на 2 конфорки. от 4 отказался умышленно -  как показал лично мой опыт, я редко применял 2 конфорки одновременно, крайне редко 3, никогда 4, и в 90% случаев - одну. 2 конфорки оказались достаточны - если и есть необходимость греть сразу 3 блюда ( забегу вперед, так и не пришлось за год эксплуатации так делать) , можно поставить мультиварку. Ну и плита на 2 конфорки экономит лишние 20-30см, что в моих реалиях - дофига.

4) Холодильник. Камень преткновения, на планах он не лез нормально никуда. В итоге, я наткнулся на холодильники под столешницу - и понял что да, это оно! Да, они мелкие, дорогие, и были сомнения что мне его хватит. Я поступил просто - месяц пользовался только 3 полками в своем старом холодильнике, и по итогу понял что да - мне хватит.  Он стоит под рабочей зоной, скрыт, и вместе с ним вырисовывается удобный треугольник перемещений при готовке  - человек стоит по центру , перед рабочей зоной, справа - плита, слева - мойка, снизу - холодильник. Двигаться или не надо, или хватит 1 шага, чтобы что то сделать.


В общем, накидал я схему, все продумал, что мог, ну и начал все ломать) Не буду долго это описывать, типичная долбежка перфоратором. Пыльно, грязно, и шумно

Кухня: 5.9 кв.м - это магия. Или впихнуть невпихуемое Кухня, Ремонт, Строительство, Интерьер, Своими руками, Хрущевка, Длиннопост

В общем, разнес я все, кроме стояков) А потом была рутина - выравнивание стен по маякам , штукатурка, покраска стен. Самым геморным было восстановить подоконный блок ( он просто осыпался). Его я утеплил , ликвидировав подоконный холодильник, восстановил геометрию пеноблоками, и подготовил все для оьединения столешницы и подоконника. Это был очень важный этап - я планировал по полной программе использовать свободное место - в том числе, и подоконник, слив его со столом, а для этого надо было вывести стены в уровень , заказать окна с нужной высотой и пазом под монтаж столешницы, и самое сложное - учесть все точно , ведь ошибка означала бы что или кухня не встанет, или окна не откроются. допустимое отклонение было всего миллиметров 20, и то - вниз.

Кухня: 5.9 кв.м - это магия. Или впихнуть невпихуемое Кухня, Ремонт, Строительство, Интерьер, Своими руками, Хрущевка, Длиннопост
Кухня: 5.9 кв.м - это магия. Или впихнуть невпихуемое Кухня, Ремонт, Строительство, Интерьер, Своими руками, Хрущевка, Длиннопост

Вот что в итоге вышло. короб под батарею, подоконный блок - все выведено под уровень будущей столешницы и общий горизонт.


Все это заняло примерно месяца так полтора от момента демонтажа старой кухни. По завершению чистовой отделки, я заказал кухонные шкафчики. Денег у меня было не много, я заказывал все поэтапно - шкафы нижние - потом нижняя бытовая техника - потом верхние - потом еще техника - и в таком вот ключе постоянно. Заработал - купил - поставил. Начал я ожидаемо с низа.

Кухня: 5.9 кв.м - это магия. Или впихнуть невпихуемое Кухня, Ремонт, Строительство, Интерьер, Своими руками, Хрущевка, Длиннопост

покупал каркасы и фасады в икеа, остался доволен - все собирается в удовольствие, все точно и четко. в процессе монтажа, забегая вперед, я уронил 2 полки и повредил 1 фасад - все заменили на новые в течении 10 минут в икее (в течении 2 недель после покупки они заменяют даже то, что вы сломали по своей вине). В общем, икеа - рулит.

Кухня: 5.9 кв.м - это магия. Или впихнуть невпихуемое Кухня, Ремонт, Строительство, Интерьер, Своими руками, Хрущевка, Длиннопост

после сборки шкафчиков - наступил самый сложный момент. В плане видна очень сложная П образная столешница. Материал был выбран простой и дешевый - ЛДСПшная столешница. Изначально хотел покупать ее в икеа, но когда пришло время покупки оказалось, что темные ЛДСП у них все сняли с производства, а шпонированные покупать было слишком дорого. По итогу, закупил 3 столешницы по 2.45м в другом магазине.

Кухня: 5.9 кв.м - это магия. Или впихнуть невпихуемое Кухня, Ремонт, Строительство, Интерьер, Своими руками, Хрущевка, Длиннопост

Довольно мощные 40мм влагостойкие столы. стоили всего около 3500 за штуку , что было более чем приемлемо.


После покупки встал вопрос, как же эти заготовки сделать в виде столешницы. Оказалось, что найти исполнителя проблема - мне называли цены от 20 до 40 тр за работу, роспил в магазине не подходил - углы стен были не 90 градусов, а пилить под иные углы никто не хотел, да и попасть в угол было малореально по чертежам - при длинах в 2 метра отклонение лишь на градус дало бы очень большие щели.


Я не столяр, но я рискнул - арендовал в москве погружную пилу макита на 2 суток (2000р)

Кухня: 5.9 кв.м - это магия. Или впихнуть невпихуемое Кухня, Ремонт, Строительство, Интерьер, Своими руками, Хрущевка, Длиннопост

Ну и пошло-поехало. под каждый сегмент столешницы я делал картонный шаблон, который подгонял под углы стен - переносил его на столешницы - и пилил, молясь, чтобы не ошибиться. соединял между собой через стяжки, заполняя швы силиконом под цвет столов. Под стяжки фрезеровал выборки , пользуясь самодельной оснасткой и дрелью. Рассказывать как все это делалось очень долго, если будет интересно - расскажу в комментариях. Вот как это было в фотографиях

Кухня: 5.9 кв.м - это магия. Или впихнуть невпихуемое Кухня, Ремонт, Строительство, Интерьер, Своими руками, Хрущевка, Длиннопост
Кухня: 5.9 кв.м - это магия. Или впихнуть невпихуемое Кухня, Ремонт, Строительство, Интерьер, Своими руками, Хрущевка, Длиннопост
Кухня: 5.9 кв.м - это магия. Или впихнуть невпихуемое Кухня, Ремонт, Строительство, Интерьер, Своими руками, Хрущевка, Длиннопост
Кухня: 5.9 кв.м - это магия. Или впихнуть невпихуемое Кухня, Ремонт, Строительство, Интерьер, Своими руками, Хрущевка, Длиннопост
Кухня: 5.9 кв.м - это магия. Или впихнуть невпихуемое Кухня, Ремонт, Строительство, Интерьер, Своими руками, Хрущевка, Длиннопост

получилось мало того не ошибиться - я попал в допуск по стенам в 2мм. По итогу не понадобился плинтус - я закрыл микрощели силиконом.


После этого, в столах вырезались отверстия под мойку, плиту и прочее

Кухня: 5.9 кв.м - это магия. Или впихнуть невпихуемое Кухня, Ремонт, Строительство, Интерьер, Своими руками, Хрущевка, Длиннопост
Кухня: 5.9 кв.м - это магия. Или впихнуть невпихуемое Кухня, Ремонт, Строительство, Интерьер, Своими руками, Хрущевка, Длиннопост
Кухня: 5.9 кв.м - это магия. Или впихнуть невпихуемое Кухня, Ремонт, Строительство, Интерьер, Своими руками, Хрущевка, Длиннопост
Кухня: 5.9 кв.м - это магия. Или впихнуть невпихуемое Кухня, Ремонт, Строительство, Интерьер, Своими руками, Хрущевка, Длиннопост

Все это делалось очень медленно - у меня не было опята, я постоянно сверялся с инструкциями, гайдами, ютубом и форумами. В конечном итоге, примерно за 2 месяца я закончил нижний ярус

Кухня: 5.9 кв.м - это магия. Или впихнуть невпихуемое Кухня, Ремонт, Строительство, Интерьер, Своими руками, Хрущевка, Длиннопост
Кухня: 5.9 кв.м - это магия. Или впихнуть невпихуемое Кухня, Ремонт, Строительство, Интерьер, Своими руками, Хрущевка, Длиннопост
Кухня: 5.9 кв.м - это магия. Или впихнуть невпихуемое Кухня, Ремонт, Строительство, Интерьер, Своими руками, Хрущевка, Длиннопост

Особенно геморно было делать маленькую имитацию дверки под окном - пришлось юзать 3д принтер для того чтобы придумать крепеж. Примерно в то же время делал плиточный фартук, немного наползающий на столешницу. так как икеевская мебель делана под глубину 63см, а стандартная столешница - 60см, пришлось заполнять шов клей-пеной и наращивать стену гипсокартоном, дабы плитка оказалась там, где должна

Кухня: 5.9 кв.м - это магия. Или впихнуть невпихуемое Кухня, Ремонт, Строительство, Интерьер, Своими руками, Хрущевка, Длиннопост
Кухня: 5.9 кв.м - это магия. Или впихнуть невпихуемое Кухня, Ремонт, Строительство, Интерьер, Своими руками, Хрущевка, Длиннопост

Плитку кстати я тоже впервые делал сам) за ее монтаж запросили 15тр +-, я не был готов класть 9 плиток за такую сумму, хотя она и была понятна - никому не хочется делать такие мелкие заказы. В принципе, с СВП ничего сложного, медленно, аккуратно, и не спешить - и все получится. После нижнего яруса, я делал верх в 3 захода - купил шкафы второго яруса, смонтировал, купил третий ярус - смонтировал, в завершении поставил бытовую технику, которой не доставало.


Подсветку я также делал сам, Бп + лента стоили что то не более 1500 рублей. готовая подсветка для кухни в икеа обошлась бы от 8000.


В итоге, вышло вот это вот все (ниже склейка из фото, лимит на фото кончился).

Кухня: 5.9 кв.м - это магия. Или впихнуть невпихуемое Кухня, Ремонт, Строительство, Интерьер, Своими руками, Хрущевка, Длиннопост

Главная особенность всего проекта - это столешница сложной формы. Она позволила получить как адекватную рабочую зону , так и обеденный стол, который вмещает максимум 3 человека (1.85 метра если я верно помню). Самый интересный шкаф - это крайний левый, с мойкой. в него получилось запихнуть мойку, смеситель с выдвигающимся краником, измельчитель отходов, 2 контейнера под мусор, 2 контейнера под овощи, и еще 2 контейнера под всякую бытовую химию. в нем же подвесная колба с моющим средством (на столешнице виден краник) - чтобы не захламлять столешницу всякими флаконами.  Все задумано так, чтобы на столе не копился хлам - терпеть не могу, когда стол завален всякой утварью.


Также, получилось установить полноразмерную духовку ( мне это важно, я очень много пеку), скрытую вытяжку. Мест для хранения тоже очень много, причем они ранжированы по важности - первый ярус подвесных шкафов сделан для вещей которые нужны часто, второй - антресоли - используется для хранения редко используемой кухонной техники.


Я комментом сделаю еще несколько фоток, которые не влезли в пост. Спасибо за то, что прочли такую простыню (если прочли))

Строительство и ремонт

10.4K постов47.9K подписчик

Правила сообщества

Правила оформления постов.

Посты видеоролики должны обязательно иметь описание о чём видео. Если видео длинное, то крайне желательно указать время, когда и о чём рассказываете.


В случае нарушения пост выносится из сообщества.


Правила общения.

Запрещено регулярное хамское и неуважительное обращение к другим участникам сообщества в рамках общения в комментариях. В случае первого нарушения бан в сообществе на 2-3 недели. В случае повтора постоянный.

Про нейросети

Тексты сгенерированные нейросетью, выносятся из сообщества, пользователь блокируется на неделю. При повторном нарушении перманентный бан для пользователя.

Про рекламу
Рекламные посты от платных/бесплатных аккаунтов запрещены. За первое нарушение блокировка на 7 дней. За второе перманентная блокировка.

Только для профессиональных участников рынка строительных услуг. (публикующихся регулярно)


Пост должен быть основан на личном опыте.


Должен быть информационно-познавательным (разъясняет/ объясняет что-то связанное с материалом/работой/организацией/и.т.д.) или  пищей для ума (Взгляд на проблему, с другой стороны)

Запрещается публикация видео длиной более 5 минут  без текстового таймлайна. ( надо указать где и о чём вы рассказываете в видео)

Не злоупотребляйте тэгами. Количество своих тэгов не более 4х шт. Тэги проставляемые системой не учитываются. (Длиннопост, видео, и.т.д.)

Вы смотрите срез комментариев. Показать все
1808
Автор поста оценил этот комментарий

Это оооочень красиво и классно. Диванные критики, конечно, могут испортить настроение, НО ты сделал, как нужно и удобно тебе, а, учитывая 6 кв м, это вообще восторг!!!!! Давай остальную квартиру, жууууууть как интересно!

раскрыть ветку (299)
805
Автор поста оценил этот комментарий

может быть, позже) Ванная, коридор и спальня не такие интересные, а большую комнату я еще не сделал. Могу план показать. ну и пару фоток...

Иллюстрация к комментарию
Иллюстрация к комментарию
Иллюстрация к комментарию
раскрыть ветку (298)
1227
DELETED
Автор поста оценил этот комментарий
Привет, я диванный критик! Честно говоря, думал, что получится фигня, но мужик, мое уважение. Ты сделал все правильно на мой взгляд, реально удобно распорядился площадью, блин, ещё ты купил измельчитель отходов и печешь. Короче, молодца!
раскрыть ветку (106)
394
Автор поста оценил этот комментарий
Он ещё крестиком вышивать может...
Иллюстрация к комментарию
раскрыть ветку (3)
89
Автор поста оценил этот комментарий
Ага. И на машинке тоже.
раскрыть ветку (2)
37
Автор поста оценил этот комментарий

А часовню тоже он?

Иллюстрация к комментарию
1
Автор поста оценил этот комментарий

По ночной Москве...

251
Автор поста оценил этот комментарий
Привет, я сборщик мебели с опытом 4 года. Так вот, этот мужик меня переплюнул. Можно назвать множество причин, начиная от того, что он не был ограничен во времени, но он всё равно безмерно крут)))
раскрыть ветку (91)
249
DELETED
Автор поста оценил этот комментарий
На самом деле я вижу херову тучу мест, где можно было обосраться, он их проскочил, прям как балерина по минному полю)))
раскрыть ветку (37)
97
Автор поста оценил этот комментарий

там охереть мест было с подгонкой и рассчетом. например в одном месте шкаф фрезой выбран почти насквозь, осталось немного дсп и пленки, чтобы уголок стояка вошел в выборку и все шкафы встали по ширине. верхний ряд весь имеет в задних стенках выборки под трубу... вся кухня по факту идет небольшой дугой, так как угол левой стены - 85 градусов а не 90. и 100500 таких вещей


Или вот компенсация столешницы 60 см при глубине шкафов 63см, которая потянула плитку, которая потянула крепеж шины...

Иллюстрация к комментарию
раскрыть ветку (30)
175
Автор поста оценил этот комментарий
Да да да вот именно такой "творческой" работой мы занимаемся каждый раз когда ставим кухню у клиента. 80% времени уходит на подгонку шкафов под рельеф помещения. А эти котлы висящие на противоположной стене от подвоки газа и воды - через всю кухню трубы и надо прятать. А развёрнутые или свернутые углы в помещениях с угловыми кухнями - просто песня. Мужик ты просто крут. Когда я дочитал до места, что тебе не понадобился плинтус (пристеночный бортик) и просто обошёлся силиконом - я захотел собрать вещи и рвануть в Москву чтобы просто пожать тебе руку. Респект и уважение тебе мужик.
13
Автор поста оценил этот комментарий

Уважаемый автор, так как у вас удалось угадать с размерами аж до 2 мм, рекомендую покупать лотерейные билеты и в личной жизни тоже срочнее знакомиться, у вас не только талант и навыки, но и везение, надо срочно все остальное хватать на этой волне. У меня когда архитектор из всяких союзов руководил ремонтом кухни и ванной, то все равно через одно место смонтировали столешницу, не с той стороны вырезали, потом с нее было неудобно вытирать крошки, руку было невозможно подсунуть. А ванну 4 раза переделывали, потому что плитки на видном месте стыками получались. И это при профессиональных чертежах и контроле профессионала и при опытных мастерах. А тут 2 мм! Чудеса.

15
Автор поста оценил этот комментарий
Странно. Угол 85 градусов даст вам разбег около 5 см на каждые 60 см. Ну в среднем около того. Такой страшный угол видно было бы на фото...
раскрыть ветку (6)
107
Автор поста оценил этот комментарий

он и есть страшный. чтобы не было видно, с 2 по 4 шкафы идут с углами по 2 градуса. Все это мучительно скрыто тщательнми подборками и контролируемми неточностями. вот тут например видно что мойка не параллельна стене - просто видно это не со всех ракурсов и надо присматриваться

Иллюстрация к комментарию
раскрыть ветку (5)
75
Автор поста оценил этот комментарий

Не надо присматриваться.)))

Вот просто не надо и всё.)

Вам действительно удалось сотворить отличное пространство. Учитывая, что в хрущевках нет ни одной ровной стены, вам удалось сделать ровно и красиво. И функционально.

Мойка вообще агонь!!!)

Я от таких моек получаю просто эстетический восторг! А если ещё она стилизована под старый камень, то полный улёт.) Но, разумеется, такое решение не для вашей кухни, у вас другой стиль и ваша мойка для него просто идеальна!


Приятного аппетита вам в вашей кухне!!!)

раскрыть ветку (2)
16
Автор поста оценил этот комментарий
Во-во, я в гости иду общаться, выпивать, а не лазить с уровнем/рулеткой/уголком и выискивать недочеты
раскрыть ветку (1)
22
Автор поста оценил этот комментарий

Именно!)

Особенно умиляет, когда люди, не умеющие работать руками, начинают критиковать чужую работу.


Когда работу критикует профи, и не просто критикует, а дает еще и дельные советы, то это воспринимается с благодарностью, в последующем учитываются эти рекомендации и совершенствуется работа.

13
Автор поста оценил этот комментарий
В случаях сильно непрямого угла первый шкаф делаю "на косую" - угол измеряю рулеткой по 2м сторонам(катет) и по диагонали(гипотенуза) , потом в Pro100 рисую такой треугольник, добавляя точки по размерам шкафчика. Получаются точные размеры передней и задней части. Потом на станке дно, крыша и полки пилятся "на косую".
2
Автор поста оценил этот комментарий
Если быстро проходить мимо, то незаметно)
5
Автор поста оценил этот комментарий
А что за вытяжка потайная?
раскрыть ветку (1)
3
Автор поста оценил этот комментарий
Встраиваемая вытяжка. Как духовка или там посудомойка, только вытяжка
5
Автор поста оценил этот комментарий
Супер сделанная кухня, но есть один волнующий меня вопрос: соседство холодильника и духовки. Когда я делала ремонт, мне нескллько человек сказали, что так делать нельзя, тк это очень вредит холодильнику. Что вы думаете по этому поводу или как решили эту проблему?
раскрыть ветку (4)
15
Автор поста оценил этот комментарий

люди ошиблись, встраиваемая техника может стоять впритык. вывод тепла у нее реализован вперед, в кухню а не назад

раскрыть ветку (1)
Автор поста оценил этот комментарий
Бро. Наверное для тебя будет шоком, но есть холодильники с выводом в стенку. Греюсь сидя у своего оромного холодильника. Правда да. Холодильник не встраеваемый. Но встроен.😁
3
Автор поста оценил этот комментарий

Все можно ставить. Никакие стенки у духовки не греются. На всякий случай 2 см зазор есть

Иллюстрация к комментарию
раскрыть ветку (1)
3
DELETED
Автор поста оценил этот комментарий

ну в новых духовках не греется наверн. А в моей греется всё)

2
Автор поста оценил этот комментарий
Назови свою профессию
раскрыть ветку (2)
3
Автор поста оценил этот комментарий

Повар

раскрыть ветку (1)
4
Автор поста оценил этот комментарий
Иллюстрация к комментарию
3
Автор поста оценил этот комментарий
А чего батарею под окно не перенес? Нафига этот не функциональный узкий подоконник справа?
раскрыть ветку (4)
9
Автор поста оценил этот комментарий
Если он вынесет ее под окно, то полезность батареи будет намного ниже из-за огромного широкого стола, так не делают, нужна тогда вентиляционная решетка на радиатором.
раскрыть ветку (1)
0
DELETED
Автор поста оценил этот комментарий

Если батарея нормальная - пофигу ей стол. У меня Керми стоят - ну их нафиг, задолбался бодаться с их избыточной эффективностью, столы над ними поставил огромные, терморегулятор на пару градусов ниже требуемой температуры, проток на них задушил - один чёрт около получаса на прогрев с 20 (ночная температура) до 24 градусов, за это время тёплые полы первого этажа не успевают собственно стать тёплыми.

2
Автор поста оценил этот комментарий
Я бы тоже начал с переноса батареи под окно, а в правый угол на её место поставил нормальный холодильник, пусть в ущерб свободному месту, но мне на кухне не плясать
раскрыть ветку (1)
4
Автор поста оценил этот комментарий
У меня такая же кухня - забегаловка. И расположение один в один, батарею тоже не думая под подоконник. И конечно холодильник надо нормального размера если живешь не один. Еще из экономии места недавно газовую плиту выкинули, купили поверхность. Под ней сразу места много образовалось шкаф добавил под овощи хранить. Вместо духовки купили электрическую, закидываю на холодильник, как жена надумает пироги печь, я достаю, меня не обламывает.
0
Автор поста оценил этот комментарий

Подскажите про измельчитель отходов. Неужели такая необходимость в нем? Технику и измельчитель какой фирмы брали?

раскрыть ветку (5)
6
Автор поста оценил этот комментарий

Измельчитель отходов жутко удобен в том плане, что 99% отходов теперь можно кидать в него - например готовите жаркое, чистите картошку, морковь, лук, попадаются иногда гнилые картофелины, кусочки мяса обрезаете - все кидаете в мойку, не надо капая мокрыми руками тянуться к мусорке и кидать туда отходы. просто нажимаете периодически кнопку и раковина очищается. По итогу все вокруг чище, проще, не надо лезть руками в сеточку и чистить ее (это противно), мусорка не пахнет и ее почти не надо выносить - там только полиэтилен. попили чай - пакетики в раковину. заварили кофе - остатки кофе в ракоыину. засориться или забиться раковина не может. Мясорубку или соковыжималку промываете опять же в раковину, и лезть потом в сеточку и вытаскивать противные остатки не надо. Опять же, остатки пищи с тарелок не надо теперь скидывать в мусорку - просто смываете в ту же раковину. Даже картонные формы от печения и выпечки, картонные палетты из под яиц, цельнобумажную упаковку - все туда.


У меня дешевенький борт - измельчитель, холодильник и духока электролюкс, вытяжка что то китайское, плита мауфилд

раскрыть ветку (4)
4
DELETED
Автор поста оценил этот комментарий

А ещё жутко удобно менять канализационную трубу целиком после этого измельчителя. У нас лет 10 измельчитель стоял и в один прекрасный день вода просто отказалась уходить из мойки. Оказалось, что горизонтальный участок трубы был полностью забит сероватой пористой массой, прочистить это было невозможно, меняли участок трубы целиком. Если у вас нет посудомойки (она прекрасно моет не только посуду, но и канализационные трубы после себя), а у вас её нет, не бросайте в измельчитель всё подряд и делайте профилактику труб.

раскрыть ветку (2)
1
Автор поста оценил этот комментарий

Ну, трубы у меня слава богу не замурованы, если надо будет заменить какие то сегменты, это не станет проблемой.

1
Автор поста оценил этот комментарий

Это жир + отходы всякие. Такое бывает труба зарастает. Иногда нужно проливать какой-нибудь щелочью и кипятком.

0
Автор поста оценил этот комментарий

Спасибо за информацию. Буду тоже присматривать себе измельчитель.

43
Автор поста оценил этот комментарий

Кухонный Джеки Чан

6
Автор поста оценил этот комментарий
С хуя-ль проскочил? А где куча розеток? Потом выяснится что их просто нет там где нужны позарез. А ремонт уже сделан.
раскрыть ветку (4)
0
Автор поста оценил этот комментарий

есть сразу 3 вывода за шкафами. предполагаются выдвижные в днищах шкафов навесных - не готовая часть кухни пока что.

раскрыть ветку (1)
0
Автор поста оценил этот комментарий
Я уж думал всё старое оставил.
0
Автор поста оценил этот комментарий
Всегда к столешнице снизу можно прикрутить
раскрыть ветку (1)
0
Автор поста оценил этот комментарий
Ну только если. Но кабель тоже снаружи вести. Да и трубы и радиатор вроде не менял.
30
Автор поста оценил этот комментарий
Вот да, тоже хотел добавить про свой 5-тилетний опыт мебельщика... Я бы не взялся лишь по одной причине — геморно. Но, автор молодец! Глаза боялись, а руки сделали! И растут руки из плеч у него! Респект!
раскрыть ветку (3)
4
Автор поста оценил этот комментарий
Я вообще стараюсь последнее время не браться за кухни. У людей денег мало, покупают всякое... Низкокачественное. Раньше за любой объем бралась. Теперь вредничаю))
раскрыть ветку (2)
1
Автор поста оценил этот комментарий
Мы раньше обычные двухметровки наклепаем полсклада и дооолго к ним не возвращались, что бы не отвлекаться. Надо? Вон, выбирайте цвет корпусов и фасадов — любой цвет повесим. А сами делали на заказ. Сейчас и двухметровок этих нет, и заказы на кухни слабые... Спасают в основном только "юрики", но у них просто офисная корпусная... Так и квалификацию потерять недолго.
раскрыть ветку (1)
0
Автор поста оценил этот комментарий
Да, года четыре назад двухметровки собирала раза три-четыре в неделю. Теперь если раз в месяц звонят...
64
Автор поста оценил этот комментарий
Мне кухня под заказ обошлась 3к евро. Она большая. Нет, не так. Она гигантская. Но суть не в этом. Ее устанавливали 2 недели. Установщики криворукие долбоебы, которые допустили массу косяков, которые очень херово фиксили. Порой я думаю, что сам бы справился лучше, так как остальной ремонт не вызвал проблем. И это на 65 кв.м квартиры в новострое без ничего
раскрыть ветку (46)
37
Автор поста оценил этот комментарий
Две недели? Дайте координаты их, поеду морду бить. Две недели и накосячить?!!
раскрыть ветку (30)
13
Автор поста оценил этот комментарий
Они сроки всрали на месяц по изготовлению. Но я закрыл на это глаза, так как корона, карантины и прочее. Но с кухней они знатно обосрамс. Благо все рабочее. Все дверцы и ящики на пуш системах, магический угол и всякое подобное. Самый большой их косяк - шкаф под мойкой, где я планировал расположить обратный осмос, мне отдали вот таким. Это была последняя капля
Иллюстрация к комментарию
раскрыть ветку (29)
15
Автор поста оценил этот комментарий
Судя по фасадам это ЛДСП, похоже на Эгер бетон. Могу и ошибаться, качество фото то ещё. 300 тысяч за кухню с фасадами даже не из пленки? Дорого. Моечный модуль странный конечно. Такое ощущение что с обеих сторон жопа)
раскрыть ветку (11)
10
Автор поста оценил этот комментарий

Совершенно верно. Я тут немного восстановил в памяти. В эту стоимость еще входил шкаф в прихожей и гардероб.

Кухню и шкаф ставили 2 недели. Основная проблема была с экраном, что закрывает переход кухни в шкаф. Его с начала долго не могли распилить, так как не знали финальных размеров. Потом не могли привезти, так как на складе забухал карщик)

Гардероб вообще забили между полом и потолком, так как не учли ламинат. Размеры снимали первый раз без ламината. Потом перемеряли с ламинатом но это не помогло.

Гардероб из swisspan

Иллюстрация к комментарию
Иллюстрация к комментарию
Иллюстрация к комментарию
Иллюстрация к комментарию
Иллюстрация к комментарию
раскрыть ветку (9)
11
Автор поста оценил этот комментарий
Да уж..... печальная картина, такая кухня без шкафа и кладовки стоит максимум 70к (без техники, с фурнитурой на доводчиках), шкаф ну пускай 50, кладовка проще 30к
раскрыть ветку (8)
4
Автор поста оценил этот комментарий

Кухня с антресолями, плавно переходящая в шкаф, даже с минимально приличной фурнитурой и подсветкой никак не может стоить 70 к. Хоть из самого дёшевого лдсп её делай.

300 к за все вместе с гардеробом из эггеровского бетона - вполне адекватная цена.

Хотя сервис мог быть и получше

раскрыть ветку (2)
4
Автор поста оценил этот комментарий
А две недели работы, а простой из-за запоя карщика. Кто-то это должен оплатить правильно? Просто кто-то даёт адекватные цены и ждёт клиента. А кто-то сам находит таких, кто за 3 лдсп, женьку конфирматов и самую дешовую фурнитуру готовы отдать рехуйские деньги и ещё благодарны будут. Я не знаю как такое работает, но знаю людей которые так работают.
1
Автор поста оценил этот комментарий
Я тоже так размышлял, пока не заказал свою кухню 4 метра длинной, самое дорогое фасады, а тут они не просто однотонные, а еще с фактурой, они тыс 100, точно съели.
раскрыть ветку (1)
0
Автор поста оценил этот комментарий
Где можно в спб заказвть хорошую кухню не дорого?
раскрыть ветку (1)
8
Автор поста оценил этот комментарий

Возможно это и дорого, но это был мой первый ремонт. И то, как нужно делать и что нужно контролировать - я узнал далеко потом)

6
Автор поста оценил этот комментарий
Изготовители мебели срывают сроки с вероятностью процентов 85. Так что месяц - это среднее(((
раскрыть ветку (9)
0
Автор поста оценил этот комментарий
Обычно указываются штрафные санкции за нарушение сроков.
раскрыть ветку (8)
4
Автор поста оценил этот комментарий
Это у вас в Москве)) а у нас в России...
раскрыть ветку (7)
1
Автор поста оценил этот комментарий
У нас в Санкт-Петербурге) как у них в Москве - не знаю)
раскрыть ветку (6)
3
Автор поста оценил этот комментарий
А что не так? Кроме отсутствия фасада и того, что он наоборот стоит.
раскрыть ветку (2)
1
Автор поста оценил этот комментарий
6 мусорных вёдер не смущает? Хотя даже речи о них не было. Блядское самоуправство
раскрыть ветку (1)
9
Автор поста оценил этот комментарий
Я думал они просто лоток туда временно положили
2
Автор поста оценил этот комментарий
Они поставили его задом наперед, потому что задняя стяжная перекладина аккурат на уровне подвода воды? Угадал?
Хотя могли либо изменить крепления для перекладины переместив выше, либо переварить вводы воды на высоту пониже. Это же полипропилен, два раза ножницами хыщхыщ, и одна муфта на новый стык.
0
Автор поста оценил этот комментарий
Там ещё и уровень столешницы проебан😱? Или это оптический обман просто?
раскрыть ветку (2)
0
Автор поста оценил этот комментарий
Это ещё не выставлены нижние секции. Просто приставлены. Я тут дневал и ночевал, контролируя процесс.
раскрыть ветку (1)
9
Автор поста оценил этот комментарий

Мне супруга говорила найми людей, быстрее сдадим, окупится, зато мороки меньше. А фигл ли толку, если они косячат так же как я, да ещё их контролировать круглосуточно надо.

1
DELETED
Автор поста оценил этот комментарий

Кухня под заказ 5 на 3 обошлась в штуку баксов, Эггер, Блюм, доводчики. Расчёт распила сгенерила программа Блюмовская. Установка - 1 день. Где-то вас объегорили. Или вы набрали ненужной, но дорогущей фигни вроде супергиперподъёмников, магических углов и т.п.

1
Автор поста оценил этот комментарий
3k евро в 65ти метрах??? Сэр, ну на хуа хуа, ещё и с криворукими кухонщиками
0
Автор поста оценил этот комментарий

Ха, у одних знакомых кухню устанавливали ГОД!!! Она была большая, но дело не в этом, устанавливал её криворукий долбоеб уровень Бог. Он мог морозиться месяц, а потом прийти и весь день устанавливать что-то и сиделать это с косяком.

Автор поста оценил этот комментарий
Я только техники в кухню купил на 5к евро. Сейчас ремонт в новостройке начался и думать боюсь во сколько встанет сама кухня.
раскрыть ветку (4)
Автор поста оценил этот комментарий
Мне весь ремонт обошёлся в 20к. И то, ещё не вся мебель
раскрыть ветку (3)
0
Автор поста оценил этот комментарий
Хочется сделать так, как мечтал всю жизнь. А мечта стоит дорого.😁
0
Автор поста оценил этот комментарий
Вас олигархов не понять
раскрыть ветку (1)
Автор поста оценил этот комментарий
Что мешает заработать денег?
ещё комментарии
0
Автор поста оценил этот комментарий

все сборщики мебели косячат безбожно

ещё комментарий
57
DELETED
Автор поста оценил этот комментарий
К черту предрассудки, женюсь!!! Ой...
раскрыть ветку (1)
24
Автор поста оценил этот комментарий
Запомни, парень: женишься ты или замуж выйдешь - все равно потом жалеть будешь
1
Автор поста оценил этот комментарий
Если он ещё и жарит, то счас к нему соберётся очередь дамочек на экскурсию
0
Автор поста оценил этот комментарий

Интересная планировка! У сына квадратура та же, подоконник выкинул, сделал монолит с кухонным гарнитуром, но уже. А справа поставил стол, размером такой же как в советские годы, у каждого на кухне был (кажется 600х800). Их пока двое, им хватает и жопами не толкаются:)))

0
Автор поста оценил этот комментарий
Но м посудомойкой было бы лучше
0
Автор поста оценил этот комментарий

Оооо, я тоже. брат)

раскрыть ветку (4)
0
DELETED
Автор поста оценил этот комментарий
Хорошо, и ты молодца!
раскрыть ветку (3)
0
Автор поста оценил этот комментарий

Нет, ты)

раскрыть ветку (2)
1
DELETED
Автор поста оценил этот комментарий

Вы все молодцы

раскрыть ветку (1)
0
Автор поста оценил этот комментарий

Я то?

121
Автор поста оценил этот комментарий

я как диванный критик со стажем, в смысле стажем проживания и ремонта в хрущевке, люто тебя поздравляю с такой уютной кухонкой. в моём случае я уместил холодильник,газовую колонку,духовой шкаф,варочную панель,сохранил холодильник под окном,привесил телек, сделал этажерочку... если интересно могу фоток накидать.может не так красиво как у тебя-но я старался))

раскрыть ветку (72)
9
DELETED
Автор поста оценил этот комментарий

Да, фото покажите, пожалуйста. Реально интересно

раскрыть ветку (67)
102
Автор поста оценил этот комментарий

за беспорядок извините. был насыщенный день. все делал сам и потолок и проводка и расчёты, и мебель и вытяжки, розетки... ну вы поняли. кухонка маленькая что то 2,2х2,5...

Иллюстрация к комментарию
Иллюстрация к комментарию
Иллюстрация к комментарию
Иллюстрация к комментарию
Иллюстрация к комментарию
Иллюстрация к комментарию
Иллюстрация к комментарию
Иллюстрация к комментарию
Иллюстрация к комментарию
Иллюстрация к комментарию
раскрыть ветку (66)
38
DELETED
Автор поста оценил этот комментарий

Очень уютно!

Пусть такую кухню сопровождают только добрые посиделки и разговоры 👍

раскрыть ветку (57)
61
Автор поста оценил этот комментарий

дополню. извините если дубль вышел. спасибо. в ванной у меня ещё уютнее и круче в разы.

Иллюстрация к комментарию
Иллюстрация к комментарию
Иллюстрация к комментарию
Иллюстрация к комментарию
Иллюстрация к комментарию
Иллюстрация к комментарию
Иллюстрация к комментарию
раскрыть ветку (56)
28
Автор поста оценил этот комментарий

отличное решение между прочим. раковина разве что неудобная, но все равно очень интересно сделано

раскрыть ветку (37)
13
Автор поста оценил этот комментарий

да, с раковиной согласен. но ко всему привыкаешь,да и выбор её расположения был очевиден с сохранением места для холодильников,микроволновки

раскрыть ветку (34)
4
Автор поста оценил этот комментарий
не подскажете?
удобное расположение конфорок на плите? 🤔
раскрыть ветку (8)
13
Автор поста оценил этот комментарий

нет,не удобное как оказалось.не советую!!! я просто боялся что близко к холодильнику будут греть 2 комфорки-зря боялся. сейчас бы ни за что не взял

раскрыть ветку (1)
4
Автор поста оценил этот комментарий
У меня примерно такая только марка другая варочной поверхности. Расположение в принципе удобно. Только если у вас не вся посуда больших размеров. Минус в том, на нержавеющей поверхности видны все капельки, когда что то приготовили, даже если это были макароны. Я за****сь мыть её. Причём мыть её надо мыльным раствором+ промыть обычной водой и потом протирать сразу полотенцем чтобы не оставлял разводов после того как вы её намыли. Чугунные решётки "закрывашки" на горелка та ещё печаль. С них не убирается пятна масляные. Только с шуманитом.
раскрыть ветку (2)
1
Автор поста оценил этот комментарий
Помоему нет, видите, перекрываются...
0
Автор поста оценил этот комментарий
Это самое конченое расположение конфорок, которое можно придумать. По факту на такой плите можно использовать 2 большие конфорки слева и справа. Те что верх низ нереально заюзать если левая и правая используются. Или пздц какие маленькие кастрюльки использовать)))
0
Автор поста оценил этот комментарий
У родителей панель с таким расположением, неудобно ни разу.
10
Автор поста оценил этот комментарий
А вы зря такие обои наклеили. Они зрительно уменьшили пространство кухни. Лучше однотонные без рисунка. А как кухню собрали вы большой молодец. Все очень аккуратно.
раскрыть ветку (1)
21
Автор поста оценил этот комментарий

да бог с ним со зрительным,что с него толку)) да и переклеить их можно в любой момент. хотелось что нибудь тёплое. ну а когда пришли в магаз за обоями увидели 2 рулона со скидкой.вот и всё)) а кухня.. так я сам их делаю и разрабатываю. я с производством мебели связан больше 20 лет.

0
Автор поста оценил этот комментарий

Хорошая идея закрыть колонку.

А что это черное из столешницы поднимается на третьем фото сверху, после вашего #comment_181893911

раскрыть ветку (6)
10
Автор поста оценил этот комментарий

это розетка. нажимаешь на кнопку и она поднимается наружу. очень удобно.

Иллюстрация к комментарию
раскрыть ветку (5)
0
Автор поста оценил этот комментарий
а батарея где ?
раскрыть ветку (5)
12
Автор поста оценил этот комментарий

присмотрись

Иллюстрация к комментарию
раскрыть ветку (4)
ещё комментарии
3
Автор поста оценил этот комментарий

У меня тоже кухня маленькая и раковина угловая. Но рабочие панели глубже и поэтому угол с раковиной заметно больше, плюс за ней есть вместительная угловая полка.

Мыть конечно спина устаёт, наклон получается больше, но в целом - никаких других минусов, лучше раковину в угол, чем плиту или разделочный стол)

1
Автор поста оценил этот комментарий

И телек над обеденным столом...

3
Автор поста оценил этот комментарий
Вам газовщики ещё не прописали опустить нагреватель? Там от колонки до изгиба трубы есть нормы, по-моему, 50 см. И труба не гибкая теперь нужна, а металлическая.
Мы уже подали свою квартиру - оставалась пара недель, и я с дуру пустила газовщиков на проверку. Они мне вкатили предписание, отрубили газ у колонки, опломбировали и свалили (( пришлось экстренно перевешивать, в уже "чужой" квартире (дети были маленькие совсем, без горячей воды остаться сильно не вариант)...
раскрыть ветку (3)
2
Автор поста оценил этот комментарий

да нет, она не металическая нужна, а именно такая как у меня гибкая и металлическая. изгибов труб у меня нет-они внизу. газовщики были и не один раз. всё учтено при планировке.

раскрыть ветку (2)
4
Автор поста оценил этот комментарий
Я не про трубы, а про дымоход. В нашем городе была волна смертей, когда при неверной установке колонок тяги не было и гибли семьями от угарного газа.
Погуглила, СНиП говорит, что до изгиба колена дымохода должно быть не менее 30 см (в некоторых источниках пишут про 50 см), сам дымоход из оцинковки, с уклоном определенным вверх - у вас ещё и вниз уходит 🥺
Вам бы со специалистами ещё проконсультироваться, может где-то на форуме пульнуть фото. Это серьезный вопрос ведь, угарный газ не имеет запаха, в отличие от текущего в трубах пропана, но его опасность и коварность велика.
Возможно, в вашем городе просто не случилось ещё трагедии и газовщиков не надрючили, или вам просто не повезло встретить халатных сотрудников.
Перенос - это гемморой, но это точно лучше, чем печальные последствия.
Иллюстрация к комментарию
Иллюстрация к комментарию
Иллюстрация к комментарию
раскрыть ветку (1)
0
Автор поста оценил этот комментарий

я на 5 этаже последнем. тянет будь здоров. было по другому маленько. колонка была подключена к отверстие что ближе к ней. посмотрите, на фото туда воткнуть вытяжка. но, мать его, сосед с низу начал верещать что у него пахнет когда мы готовим, пришлось перенаправить. и нужно просто сделать как было и послать его нахер с его совковым оборудованием. спасибо, учту!

3
DELETED
Автор поста оценил этот комментарий
Очень красивая кухонка получилась у вас. Мятный цвет вообще бесподобен.
2
Автор поста оценил этот комментарий
Да, уютно. Мне тоже нравится. Два момента только смущают: раковина такая с таким расположением удобна будет только человеку ростом выше среднего, телевизор там для кого висит? Его удобно смотреть только стоя спиной к плите, но не сидя за столом. Ну это как мне видится по фото)
раскрыть ветку (1)
3
Автор поста оценил этот комментарий

раковина не совсем удобна,это да. но как я уже писал выше к этому привыкаешь.я сам часто мою посуду,мой рост 176, жена не жалуется на раковину-её рост 160 .телек висит на стене для жены во время готовки еды и мытья посуды. я если глянуть хочу то просто двигаю стул со спинкой к холодильнику и спокойно смотрю как и все в моей семье.

1
Автор поста оценил этот комментарий
Так же сделал на старой квартире. Только холодильник напротив поставил, пришлось подоконник срезать. И раковину чуть побольше поставил. Полочки закруглил тоже, чтобы колени не сносить. Тема с розетками интересная
1
Автор поста оценил этот комментарий
Умничка, только почему та створки не перевесил на холодильнике?
раскрыть ветку (6)
1
Автор поста оценил этот комментарий

а потому как не перевешиваются! увы и ах. только на одну сторону.

раскрыть ветку (5)
0
Автор поста оценил этот комментарий
Удивил. Не видел ни одного холодильника, в котором не перевешиваютя двери. Какая модель?
раскрыть ветку (4)
2
Автор поста оценил этот комментарий

ему 16 лет.

Иллюстрация к комментарию
раскрыть ветку (3)
Автор поста оценил этот комментарий

У тс со вкусом точно лучше дела обстоят. Ведь не в 90 ремонт делали, неужели хотяб обоев приличных нигде не нашлось? Про фартук вообще молчу.

раскрыть ветку (2)
3
Автор поста оценил этот комментарий

такие ка вы обычно просто говорят... просто говорят.

1
Автор поста оценил этот комментарий

все правильно! молчишь-умнее кажешься)

2
Автор поста оценил этот комментарий
Классическое расположение. Но рабочая поверхность небольшая выходит. А так да. Нормально
1
Автор поста оценил этот комментарий
Классная кухня)) цвет очень красивый)))
1
Автор поста оценил этот комментарий
А за гофру на вытяжке в колонке газовщики не ругали? Нам заставили менять на жесткую трубу.
раскрыть ветку (2)
0
Автор поста оценил этот комментарий
У меня наоборот, я начитавшись гугла хотела жесткое. Но газовики убедил что надо гофру.
раскрыть ветку (1)
1
Автор поста оценил этот комментарий

У нас аж отключили колонку, пока не  поставили жесткое. Видимо, где как. Но, получается, можно  оба варианта. Просто гофра  более бюджетная получается.

1
Автор поста оценил этот комментарий
Вытяжку от газовой колонки тоже сами делали? Смотрите не угарите... Советую почитать как это правильно делается, и немедленно переделать
Автор поста оценил этот комментарий
А не проще демонтировать стену между кухней и залом? И сделать нормальный кухонный уголок
раскрыть ветку (1)
1
Автор поста оценил этот комментарий
Демонтировать стену никогда не проще)
1
Автор поста оценил этот комментарий
Мне тоже интересно, тоже с газовой колонкой маленькая кухня, ищем ещё варианты планировки возможной
0
Автор поста оценил этот комментарий

И меня позови, когда фоток выложишь. У меня не хрущёвка, но кухня практически такая-же (I-515/9).

раскрыть ветку (2)
2
Автор поста оценил этот комментарий

зову))

раскрыть ветку (1)
Автор поста оценил этот комментарий

Спасибо. Можно было просто @имя в том посте написать :)

64
Автор поста оценил этот комментарий
Чувак, ты меня просто спас, у меня кухня почти такая же и очень долго думали как там все поместить, я уже разработал свой план, но сейчас думаю взять твой и немного переделать под себя, очень уж хорошо всё получилось
раскрыть ветку (8)
23
Автор поста оценил этот комментарий

буду польщен)

раскрыть ветку (5)
11
Автор поста оценил этот комментарий

Я бы и умения твои бы взял себе кабы мог, надо же так круто сделать столешницу! )) Нам скоро предстоит, где заказать за вменяемые деньги без понятия, а сам не умею.

Вот только смутил ящик с цветуечками у окна, самое крутое место чтоб сесть разложить все красиво и покушать глядя на улицу - и сколько места занято зачем-то...

раскрыть ветку (1)
14
Автор поста оценил этот комментарий
Ну не всякая улица доставляет эстетическое наслаждение, поэтому зеленка это хорошечно
0
Автор поста оценил этот комментарий
Как же классно!!! У меня похожая кухня, только там 1 стена не ровная, с лишним углом, вот хочу как у тебя, чтоб столешница была вместо подоконника. Подскажи, окна пришлось новые покупать или от старых оторвали подоконник и всё? И что это за хитрый кран с отсеком для моющего?
раскрыть ветку (2)
0
Автор поста оценил этот комментарий

всего 1 стена не ровная? повезло!!

раскрыть ветку (1)
0
Автор поста оценил этот комментарий
Ну она как не ровная.. Там лишний угол, то есть идёт стена а потом углубление и дальше стена, а с учётом расположения коммуникаций..только подстраиваться под это всё
0
Автор поста оценил этот комментарий

А покажи свой план?

Любопытно на мелкие кухни посмотреть.

раскрыть ветку (1)
3
Автор поста оценил этот комментарий
Это я экран сфоткал "на скорую руку"
Иллюстрация к комментарию
94
Автор поста оценил этот комментарий

Я дизайнер интерьера, и я говорю, что ты офигенно все придумал и сделал) Очень грамотно и красиво выглядит кухня. Мне бы только было мало холодильника, обычно, с такими площадями самая запарка именно с ними) Но раз тебе хватает маленького. то вообще супер!)
Я даже сохранила в свою подборку, если попадутся клиенты с хрущевкой, покажу) И родителям покажу, у них хрущевка, но ремонт не хотят делать нормально(

раскрыть ветку (5)
7
Автор поста оценил этот комментарий

У меня ровно такая кухонька (по планировке), только радиатор не по правой стене, а по наружной, прям рядом с хрущевским холодильником. Людской холодильник у меня стоит там, где тут раковина, поэтому места почти совсем нет.

Тут реально очень круто сделано, теперь тоже так хочу. Только, думаю, радиатор надо будет вывести в нишу, которая от хрущодильника останется (тут видимо стену надо будет утеплить и отражатель приклеить), ну а человеческий холодильник можно в прихожую вынести - там-то как-раз места хоть жопой ешь.

Респект вобщем. Я не особо задумывался из-за малых размеров, но идея крутая.

1
Автор поста оценил этот комментарий
Что вы как дизайнер интерьера скажите про стол, за которым все смотрят в стену. По моему люто неудобная дичь. По моему стол который убирающиеся в стену (примерно как в плацкарте с вариациямт) был бы удобней.
раскрыть ветку (3)
6
Автор поста оценил этот комментарий

Это уже по вкусу. Меня например складные столы на кухне бесят, потому что я рукожоп, который даже обычный устойчивый стол может случайно перевернуть, если он не тяжелейший.  Складной привинченный к стене? Сломаю просто. К тому же, если вы про стол из поста, человек живет один, вряд ли у него часто кто-то сидит уткнувшись носом в стену.

5
Автор поста оценил этот комментарий

Стол служит еще и как доп рабочая поверхность. Гораздо лучше ему быть устойчивым, а не болтающимся на кронштейнах. Тем более, голову нужно повернуть буквально на 5 градусов (или стул), чтобы смотреть в окно. Не вижу ничего плохого)

раскрыть ветку (1)
0
Автор поста оценил этот комментарий
Просто вы не сидели.(с)😁
83
Автор поста оценил этот комментарий
Просто мега круто! Я девушка, и я в восторге)
раскрыть ветку (22)
51
Автор поста оценил этот комментарий
Тоже девушка, круто, но размеры холодильника моего внутреннего хомяка, напугали
раскрыть ветку (6)
6
Автор поста оценил этот комментарий
Отсутствие посудомойки - вот, что страшно по-настоящему!
раскрыть ветку (5)
10
Автор поста оценил этот комментарий

Нет, маленький холодильник страшнее) куда ставить кастрюлю с борщом?

Я как тон а даче 2 месяца жила, там старый холодильник Бирюса, тобишь он заметно меньше современных в потолок, но и заметно больше встраиваемых в тумбочку.

И вот мне этого места было впритык и часто не хватало, как вспомнишь, так вздрогнешь)

Тут, понимаете, вкусовщина

раскрыть ветку (4)
2
Автор поста оценил этот комментарий
О, я с Бирюсой на заре своей семейной жизни жила. Самого холодильника на двоих еще хватало, но морозилки!.. Зато с тех пор я в любой холодильник могу впихнуть невпихуемое))
раскрыть ветку (3)
7
DELETED
Автор поста оценил этот комментарий
В советских холодильниках была технология сжатия пространства и времени, основанная на управляемой термоядерной реакции. В современных холодильниках такого нет)
раскрыть ветку (1)
2
Автор поста оценил этот комментарий

Такой же принцип как у Тардис)

У нас на даче холодильник меньше среднего, но больше встраиваемых.  Там очень дурацкие полки, три маленьких ящика в морозилке, в которые ничего не помещается. Сделали бы два, но нормальных, так нет же. Каждый раз с матюками убираю туда кастрюли, или не дай боги, кто то в магазин съездил. А охладить бутылку кваса или кокаколу там можно только если все вынуть и положить бутылку горизонтально под углом. Кошмар.

4
Автор поста оценил этот комментарий

ага, сунешь туда курицу, а холодильник любовно обволакивает её коркой льда)

23
Автор поста оценил этот комментарий
И я. Сразу что то приготовить захотелось и чайку с тем самым пирогом попить . ТС очень уютно. А главное своими руками
27
Автор поста оценил этот комментарий
Готова выйти замуж. Жду звонка)
раскрыть ветку (6)
30
Автор поста оценил этот комментарий
Вот что нужно правильным девушкам, а не Майбахи с Канарами))
17
Автор поста оценил этот комментарий
Ага, канеш. А потом: Вот это убери, это переделай, а давай сюда это поставим, а сюда вот то!
А ТС ещё и печёт сам!
Нахрена ему жена?!
2
Автор поста оценил этот комментарий

ТС!! Ты где братец?)

раскрыть ветку (1)
0
Автор поста оценил этот комментарий
1
Автор поста оценил этот комментарий
Номер телефона скажите)
Автор поста оценил этот комментарий

Молодец, блять!

8
Автор поста оценил этот комментарий

Впрочем, я узбек. Одобряю

ещё комментарии
7
Автор поста оценил этот комментарий

Я с планеты из созвездия Альфа-Центавра, но даже я в восторге!

1
Автор поста оценил этот комментарий
А для чего вы подчеркнули свою половую принадлежность?
0
Автор поста оценил этот комментарий
Я девушка, это значит вы готовы заехать?)
раскрыть ветку (1)
Автор поста оценил этот комментарий
Я готов в вас заехать
27
Автор поста оценил этот комментарий
У вас прекрасный вкус, ждём фото про всю квартиру
24
Автор поста оценил этот комментарий

И вход в спальню через шкаф)

Иллюстрация к комментарию
раскрыть ветку (4)
10
Автор поста оценил этот комментарий
Иллюстрация к комментарию
раскрыть ветку (3)
3
Автор поста оценил этот комментарий

Я всё ещё надеюсь что это рендеринг, и ты, таки, исполнишь мечту всех детей ;)

раскрыть ветку (2)
4
Автор поста оценил этот комментарий

увы, это реальность)

раскрыть ветку (1)
1
Автор поста оценил этот комментарий

в смысле увы, нормально всё! оО

148
Автор поста оценил этот комментарий

Фото кота лучше скинь :)

раскрыть ветку (24)
320
Автор поста оценил этот комментарий
Иллюстрация к комментарию
Иллюстрация к комментарию
раскрыть ветку (15)
68
Автор поста оценил этот комментарий
Мойка одобрена))))
раскрыть ветку (5)
29
DELETED
Автор поста оценил этот комментарий

обмыта :)

раскрыть ветку (3)
2
Автор поста оценил этот комментарий

освещена

раскрыть ветку (2)
3
Автор поста оценил этот комментарий
В тени кота
раскрыть ветку (1)
Автор поста оценил этот комментарий

Ок.

15
Автор поста оценил этот комментарий
Удобрена:)
25
Автор поста оценил этот комментарий
Спасибо! Тоже хотела просить фото котейки. Она же вам на каждом шагу помогала!
8
Автор поста оценил этот комментарий
Красивийший котэ!
5
Автор поста оценил этот комментарий
Так это же кошка, а не кот. Не?
раскрыть ветку (3)
0
Автор поста оценил этот комментарий
трехцветными только девочки бывают :)
раскрыть ветку (2)
2
Автор поста оценил этот комментарий
Очень редко бывают самцы, но они неполноценные и стерильные
1
Автор поста оценил этот комментарий
Редко и посоны попадаются
2
DELETED
Автор поста оценил этот комментарий
Котееейка
0
Автор поста оценил этот комментарий
Кот помещается в холодильник?
0
Автор поста оценил этот комментарий

Главный помошник :)

36
Автор поста оценил этот комментарий
Да да, автор! Покажи киску :))
раскрыть ветку (4)
116
Автор поста оценил этот комментарий
Иллюстрация к комментарию
раскрыть ветку (3)
11
Автор поста оценил этот комментарий

кот восхитительный, да и весь пост - просто радость для эстета и перфекциониста!

ещё комментарии
8
Автор поста оценил этот комментарий
Это кошка похож
раскрыть ветку (1)
0
Автор поста оценил этот комментарий

Моя твоя похож

0
Автор поста оценил этот комментарий

Зачем?

43
Автор поста оценил этот комментарий

А под нижними шкафами прям до стены пространство или глубже есть фартук/плинтус (не помню название)? У нас такая фигня отвалилась под шкафом - это кошмар, из-под мебели выметать и вытирать все то ещё веселье. А у вас и кошка, которая с удовольствием будет игрушки загонять... Но на мой вкус, так как есть выглядит очень красиво. Вы такой молодец: круто и разумно придумано, да ещё и аккуратно воплощено. Аплодирую стоя!

раскрыть ветку (16)
27
Автор поста оценил этот комментарий
Выметать вам поможет робот пылесос. Серьёзно, моему там нравится, выезжать не хочет
раскрыть ветку (5)
9
Автор поста оценил этот комментарий

Боюсь, что сначала у меня надо завести либо робот-собиральщик игрушек либо человека с более крепкими нервами, чтобы обучил детей убирать за собой - втрое предпочтительнее, но первое - реальнее))) И под моей кухней ножки

раскрыть ветку (4)
2
DELETED
Автор поста оценил этот комментарий
Так робот объедки ножки со всех сторон и почистит, у него же щёточки длинные
раскрыть ветку (3)
0
Автор поста оценил этот комментарий

А какой посоветуете? Сяоми?

раскрыть ветку (2)
0
DELETED
Автор поста оценил этот комментарий

(Не "объедки", а "объедет", опечатка у меня).

Ну, посоветовать никакой не могу, мы только двумя моделями пользовались (сяоми не было) и знаю, что чем дороже, тем лучше; смотрите на функционал и отзывы людей, чем "умней" модель, тем лучше, тем она больше "видит", запоминает и в итоге эффективней убирает всю квартиру.

раскрыть ветку (1)
0
Автор поста оценил этот комментарий

Спасибо))

12
Автор поста оценил этот комментарий
Икея очень любит подвесные кухни, в данном случае тоже вижу крепеж. Думаю там нет ни ножек ничего. И доступ к выметанию полный.+ Это очень хорошее место для хранения того же картофеля. Если руки дойдут можно сделать ящики на колесиках.
раскрыть ветку (7)
2
Автор поста оценил этот комментарий
Там холодильник, он на полу стоит. Заглубляется он обычно на 6-10 см. Так что цоколь нужен, иначе на полу колхоз.
1
Автор поста оценил этот комментарий
У меня дома икея. Есть там ножки внизу. Есть.
раскрыть ветку (3)
0
Автор поста оценил этот комментарий
Ну у тс ножки только у холодильника, а вот если и у нижних модулей ножки, тогда я не могу понять для чего там навесной крепёж.
раскрыть ветку (2)
2
Автор поста оценил этот комментарий

весь низ стоит на ножках, в силу особенностей помещения. можно и на шину вешать, но я не стал. каждый модуль на 4 ножках

раскрыть ветку (1)
0
Автор поста оценил этот комментарий
О, спасибо что разъяснили. А то крепёж ввел в заблуждение.
0
Автор поста оценил этот комментарий
Мебель Икеи такого плана висит на шинах, под каждым шкафчиком 4 ножки. От постоянного выметания вполне спасает цоколь, который делается под цвет фасада и крепиться на пластиковые клипсы. Ножки у корпусов утоплены довольно глубоко, при таком размере кухни цоколя даже не видно
раскрыть ветку (1)
1
Автор поста оценил этот комментарий
Не раз было, вешали чисто на шины без ножек. Ибо если нормально все закрепить , то она выдерживает вес взрослого человека. Да и сам смысл шины в том что бы избавиться от ножек.
2
Автор поста оценил этот комментарий
Цоколь
раскрыть ветку (1)
2
Автор поста оценил этот комментарий

Спасибо, мил человек!

21
Автор поста оценил этот комментарий
Классное решение с кухней! Говорю как близкий к теме человек. Пишу коммент чтоб пост не потерять и вернуться к нему завтра, ибо пьян слегка ))
раскрыть ветку (22)
32
Автор поста оценил этот комментарий

На 6-метровых кухнях столешница-стол - самый лучший вариант.

Иллюстрация к комментарию
Иллюстрация к комментарию
Иллюстрация к комментарию
раскрыть ветку (21)
6
Автор поста оценил этот комментарий
Меня одного интересует история фотографии с видом сверху? Не ногами же автор на раковину залез?
раскрыть ветку (19)
11
Автор поста оценил этот комментарий

Вы прикалываетесь? Это же не фото)

раскрыть ветку (12)
8
Автор поста оценил этот комментарий
Да??? Я в этом деле тот еще профан
раскрыть ветку (11)
7
Автор поста оценил этот комментарий

Как человек, который больше десяти лет зарабатывает производством таких вот "фото", уверяю. Это жалкая компьютерная графика.

раскрыть ветку (10)
3
Автор поста оценил этот комментарий
Спасибо за игформацию
раскрыть ветку (1)
0
Автор поста оценил этот комментарий

Обращайтесь)

0
Автор поста оценил этот комментарий
Сколько у Вас стоят подобные работы?
раскрыть ветку (3)
0
Автор поста оценил этот комментарий

У меня провинциальный ценник. 500 рублей за квадратный метр. Это чисто моделинг и визуализация. По готовому тз

раскрыть ветку (2)
0
Автор поста оценил этот комментарий
Было бы понятней, если за кубический :)
ок. Уточню ТЗ, фабрика мебели делает шкафы в Базис-мебельщике.
1. Сколько будет стоить, отрисовать шкаф в 3Ds Max.?
2. Встроить этот шкаф, в какое нибудь симпатичное помещение, можно стоковое
раскрыть ветку (1)
0
Автор поста оценил этот комментарий
Фигасе жалкая, вы рофлите? Ведь реально даже не подумаешь что это графень. Что тогда не жалкая графика?
раскрыть ветку (3)
2
Автор поста оценил этот комментарий

Вот, например

Иллюстрация к комментарию
раскрыть ветку (2)
2
Автор поста оценил этот комментарий
Оо мое почтение, если это действительно графень. А так разглядеть трудно, потому что разрешение мелковато
раскрыть ветку (1)
4
Автор поста оценил этот комментарий

на табуретку)

раскрыть ветку (4)
0
Автор поста оценил этот комментарий
Так то я спрашивал про фото @pramen, но у вас тоже такую фотку нашел, там ракурс ниже, там про табуретку поверю))))
раскрыть ветку (3)
0
Автор поста оценил этот комментарий

Я не в курсе, это фото из интернетов, я искала для мужниной кухни варианты, вот этот понравился.

раскрыть ветку (2)
0
Автор поста оценил этот комментарий
Тайна останется не разгаданной. Хотя скорее всего это какое то агенство камеру приклеить и сняли дистанционно))
раскрыть ветку (1)
6
Автор поста оценил этот комментарий
Не похоже на фото, это просто средненький рендер
2
DELETED
Автор поста оценил этот комментарий
Таймер стивишь и выходишь, фокус-покус, фото готовус!
0
Автор поста оценил этот комментарий
А в кораблях это обычно барная стойка к окну
33
DELETED
Автор поста оценил этот комментарий

За плиту и вытяжку отдельный женский респект 👍

Ненавижу холодильники в коридоре. Ненавижу, когда,  непонятно ради   какой экономии, отказываются от плиты!


Ваш пост для меня пример того, что и маленькая площадь может быть вполне комфортной

раскрыть ветку (8)
0
Автор поста оценил этот комментарий
Да ну, кто в России может постоянно отказываться от плиты? Хотя бы переносная конфорочка должна быть
раскрыть ветку (7)
0
DELETED
Автор поста оценил этот комментарий

Я имела в виду духовой шкаф

раскрыть ветку (6)
3
Автор поста оценил этот комментарий
Ну тут у всех свои приоритеты. Я люблю готовить в духовке, но вместо нее у меня стоит посудомойка. А для запекания я купила электрическую печку , размером с микроволновку. Но правда у меня есть для нее место и в принципе кухня большая, а после поста я поняла как офигенно не рационально я использую ее размеры. Аж захотелось обратиться к знающим людям за советом, чтобы хотя бы сделать ее уютной (и с этим беда)
раскрыть ветку (5)
1
Автор поста оценил этот комментарий
Скажите, пожалуйста, не жалеете, что нет духовки? Стою на распутье мини-печь гемлюкс или встраиваемая духовка. Пеку много тортиков для родственников и друзей. Вот хочу отказаться от духовки в пользу конвекционной печки
раскрыть ветку (4)
3
Автор поста оценил этот комментарий

Тут могу описать лишь свой опыт. Плюс у всех потребности разные. Я вот с кондитеркой не очень, но люблю готовить в духовке и в этом плане моя печка меня устраивает. Она уступает духовке, но со своими задачами справляется. Это при том, что она у меня самая дешманская тупо с двумя тенами и без конвекции. Подороже и с конвекцией может и не будет уступать.

Итог получился такой: у меня было место под духовку, но покупать ее денег не было, а печь хотелось, вот и купила временный вариант, который меня вполне устроил и на постоянку. А на место духовки поставила посудомойку, чему несказанно рада, я ее обожаю.

раскрыть ветку (3)
0
Автор поста оценил этот комментарий
Большое спасибо! Очень хочется мини-печь, место на кухне весьма ограничено , но не хочу чтобы уступала по качеству. Попробую подороже посмотреть :)
раскрыть ветку (2)
1
Автор поста оценил этот комментарий

У меня нет проблемы с местом на кухне и я при этом все равно выбираю печь. Просто возьмите подороже, а когда с местом беда, это слишком ценный ресурс, чтобы ставить его на одну чашу весов с разницей между печкой и духовкой.

раскрыть ветку (1)
0
Автор поста оценил этот комментарий
С задержкой, спасибо за ответ:)
Вы смотрите срез комментариев. Чтобы написать комментарий, перейдите к общему списку