Квартира в хрущёвке тоже может быть красивой
Когда-то давно написал пост про микро-студию, которую мы покупали в качестве первого жилья (я его добавлю первым постом в серии). Он собрал достаточно много комментариев и я планировал написать пост про следующую свою квартиру, но руки до него так и не дошли. Перед её продажей мы делали фото, поэтому решил, чтобы не пропадать добру, запилить пост.
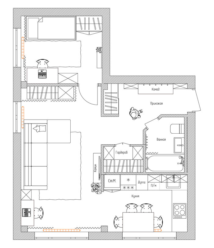
Итак, началось всё с того, что мы купили убитую двушку в хрущёвке, с такой планировкой. Напоминаю - супруга занимается дизайном интерьеров, поэтому ремонт нас не пугал.
Прямоугольник напротив санузлов - встроенные шкафы. Вход в один из них был из комнаты, во второй - из коридора.
Это не назвать квартирой мечты, поэтому решено было её немного доработать. За несколько вечеров родилось вот такое решение:
На согласование перепланировки потребовалось что-то около трёх месяцев. Но это оправданные расходы денег и времени.
Сейчас покажу, как это выглядит в реальности.
Прихожая:


Комод мы заказали из белого ЛДСП, наклеили молдинги и покрасили. Важно помнить, что краска полимеризуется какое-то время и несколько дней его не трогать.




Обувницы слева и справа от комода тоже обрамили молдингами, внутрь рамки вклеили текстурные обои, которые заказали на маркетплейсе. И тоже покрасили.


Вход в гардеробную закрыт реечными фасадами из Леруа. Сначала повесили там просто штору, но коты устроили себе там лежбище, пришлось искать решение.



В комнате - электрокамин. С ним очень удобно в межсезонье, когда отопление ещё не включили или рановато выключили.
Да-да, я знаю, что белый кирпич "устарел", квартиру делали 7 лет назад. В новой квартире мы пару стен отбили до кирпича и покрасили в цвет. Ну вот нравится он нам.
Временное рабочее место, когда нужно что-то срочно сделать, я подключаю ноутбук к монитору.
Кухня:



Детская:



И немного котиков для уюта:














