Как по мне тут и для одного человека и одной кошки недостаточно, хрущевка какая-то. Нет гаража, мастерской, чистой мастерской, комнаты для гостей, лазилки-когтеточки.
Я себе ангар 10*20 нарисовал с 300 квадратов пола, и то впритиску все выходит, или бассейн, или подьемник для машины.
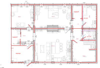
комнаты все проходные , куча дверей , куча тамбуров и коридоров и по середине ахриненно-здоровенная кухня с дровяной печью
земсков повесился от такой планировки =D
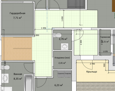
Чисто перекомпоновать на вскидку, то примерно так. Если не менять основного расположения с учетом хотелок.
Из того что получилось. В кабинет можно сделать вход из спальни, например посередине стены. Санузел при входе хз как впихнуть, чтобы не тянуть коммуникации из другой части дома. В хозяйский санузел доступ только из спальни. Рядом гардероб. При условии что все коммуникации будут в цоколе, никаких проблем с обслуживанием не будет. Тех.помещение получилось огромное, но со спуском в цоколь, а оттуда, как полагаю на улицу. Что решает вопрос таскания всякого через дом.
Кстати, можно и через кухонную зону вход в тех.помещение сделать, заодно организовав там кухонную кладовую и переместив спуск в другое место. И гостевой туалет расширить за счёт коридорчика.
В общем, если покрутить размеры и компоновку, можно получить что-то более функциональное и ещё сократить размеры самого дома. Либо не сокращать, а радоваться большой площади)
Относительно веранды. Застеклить, сделать частью тёплого контура и получатся сени с грязной зоной. При наличии отопления можно что-то навроде "зимнего сада" запилить.
Прошу принять мою искреннюю благодарность за уделенное время и серьёзный подход к подготовке планировочного решения. Ваше видение достаточно интересно.
В настоящее время пытаюсь подготовить описательную часть проекта и некоторые выводы.
Огромное спасибо!
для меня нет проблемы снять сапоги. туалет у нас как раз для этой цели рядом со входом. Он же для мытья рук и как запасной на случай того, что основной в ванной занят. На картинке вот - нашла старый черновик плана дома. Чисто для понимания концепции. под всей левой частью технический подвал 1.20 высоты, в котором разведены коммуникации (проще починить, проще сделать выводы (вертикально вниз просто)
насмотрелась за свою жизнь вонючих сортиров, но никого моложе 50 давно уже не встречала с ними на участке. обычно все стараются сделать, чтобы красиво было - клумбочки, дорожки. домик вонючести туда прям никак не вписывается =/ как будто мусорка на участке.
но конечно, каждому своё.
И это для двоих человек? А я если дети появятся? А гостевые спальни?)
А если серьезно то проект полное фиаско, тут уже все расписали..
Гости, дети... Почему не президент, со свитой?
Читайте внимательно: "... семьи из 2-х человек." Комфортно желают жить 2 человека.
ТОЧКА!
Вероятность появление детей после 50-ти лет стремится к 0.
Если тамбур-спуск - это выход в цоколь, то может кухонную кладовую убрать в цоколь? Вообще тогда метра полтора от дома можно отрезать по ширине без зазрения совести.
1) Там можно сделать погреб, причём не через лаз, а прям пешком туда заходить в полный рост
2) На кухне храним оперативный запас. Пройти в периметре дома на уровень ниже по нормальной лестнице - вообще проблем нету. Зато уменьшаем периметр дома.
3) В цоколь же убрать котельную и водоподготовку. Места много занимает, а смотреть на это и убираться там радости не доставляет.
Прочел Ваш пост (О чём задуматься при выборе дома)
полностью согласен. И поверьте, обо всем этом думалось и размышлялось. И план дома составлялся, практически, из тех-же соображений.
Если тамбур-спуск - это выход в цоколь, то может кухонную кладовую убрать в цоколь? Вообще тогда метра полтора от дома можно отрезать по ширине без зазрения совести.
1) Там можно сделать погреб, причём не через лаз, а прям пешком туда заходить в полный рост
2) На кухне храним оперативный запас. Пройти в периметре дома на уровень ниже по нормальной лестнице - вообще проблем нету. Зато уменьшаем периметр дома.
3) В цоколь же убрать котельную и водоподготовку. Места много занимает, а смотреть на это и убираться там радости не доставляет.
Начну в обратном порядке:
п.3 Верно, так и планируется.
п.2 Особенности снабжения в деревне. Ближайший магазин в 6 км. Автолавка - 2 раза в неделю (если все хорошо), с беднейшим ассортиментом. Посему морозильный ларь (возможно пара) и много полок для хранения (бакалея, консервация).
п.1 Погреб, доложу я Вам, дело не простое. Имею опыт. Он в планах.
Честно, какая-то шляпа.
Спальня 20квм, при этом зачем-то в ней стоит рабочий стол. Одновременно использовать спальню для сна и для работы никак не выйдет. Если надо 2 рабочих места, то лучше урезать спальню и кабинет, и сделать еще один кабинет. Дверь в спальню из кабинета вообще странно, 2 двери на пути из гостиной в спальню тоже.
Проходной кабинет это неудобно. Сидишь, работаешь, а у тебя за спиной ходят. Такое себе.
Дверь имеет не настолько хорошую шумоизоляцию как хотелось бы, поэтому если кто-то ночью будет в кабинете играть в комплюктор и орать матом на рачин в дотке, то это будет охренеть как слышно в спальне, поэтому спальню и кабинет лучше разнести.
Ванна-постирочная на 8квм, при этом половина пространства тупо пустая. Лучше сделать как минимум тогда отдельными помещениями, пусть даже постирочная будет проходной.
Ну и в целом много уже сказали, что бегать по маршруту спальня-гостиная через 2 двери и 2 коридора это неудобно.
То есть дом 150 кв м для двоих, а вы совмещенную кухню с гостиной делаете? И одной душевой и одним унитазом? Ну-ну.
Очень много темных тесных закутков и дверей. Не только дорого(сколько стоит одна дверь в сборе?) и не комфортно, но еще и задолбаетесь это убирать т.к. пыль именно за дверьми имеет свойство скапливаться, где робот не поможет. Плюс сами двери куда открываются? В большинстве случаев вникуда и не так, как будет удобно. Придется натыкать вдополнение еще и кучу дверных упоров. Зачем вам столько переоородок и дверей? Оцените их необходимость в каждом случае. Совокупная их цена будет кусачей(полная, от возведения до покраски/оклейки/потолков, светильников. Где и как в таком царстве дверей свет включать вообще не понятно.
Спальня в которую не пройти из гостинной, зато дурацкий обходной коридор, охуенное решение
Кухня проходная, это не очень хорошо. Мне на выставке в Зябликово дома понравились. Особенно новый проект Норд хорош. Он снаружи смотрится не пафосно и внутри места в доме много
Кухня проходная, это не очень хорошо.
Для кого? Для меня - отлично. Поэтому так и нарисовал.
Очередной изобретатель лисапета с золотым унитазом ))
Который невкурсе про давно отполированую максимально дешман схему с гостиная/кухня/туалет внизу и парой-тройкой комнат наверху.
Цель: увеличить посещаемость аккаунта через пост ни о чëм и комментарии, которые автору не нужны - достигнута.
Не переживайте, в планах добавить минимум один корридор и 2 коррридора. Работаю над этим.
Такое ощущение что этот проект специально для хейта создавался.
Неужели это делал проектировщик???
Двери,двери,двери,двери.....проход в прочие помещения через спальню. Да тут все помещения проходные! Нафига?!уединиться то где?на веранде? Или в сортире в дальнем углу?не рабочий вариант.
А где помещение под коммуникации? Ну ок, отопление у вас от печи. А горячая вода? Холодная вода? Генератор на случай отключения? Шкаф с электрикой? Где это все будет?
Все комнаты проходные.. Мм... Ну такое себе. Ночью пойдёт кто нибудь, всех перебудит. На веранду очень сложно попадать, через миллион дверей. Представьте, блюдо с пирожками, только что испеченных в печи, вынести на веранду?
Еще я бы избегал инженеров, которые ставят все размеры по два раза.
С моей стороны критика чисто по функциональности текущей планировки. Она нефункциональна. Проектная сторона это отдельный вопрос.
Есть хороший способ проверить, на сколько хорошо то, что нарисовал. Распечатать или начертить на листочке, сесть и представить как ты будешь в этой планировке жить.
Допустим, приехал домой с вещами-покупками и начинаешь с порога, что делаешь, куда идёшь, где включишь свет, где разденешься, где умоешься, куда сложишь вещи, поставишь покупки и т.д. И так представить весь день, рабочие будни, выходной. И прямо так, чертишь ручкой свои маршруты по планировке, ака дому. Тогда появится некоторое представление где что должно быть, что получилось хорошо, а что полная хрень и надо переделывать. Где ты больше всего будешь находится, какие помещения используются по полной, а какие просто место занимают и бесполезно съели бюджет на строительство.
Ну и никто не отменял типовые планировочные решения расположения комнат, санузлов, тех помещений и прочего, от которых стоит отталкиваться, потому что там уже за тебя подумали и они подходят в большинстве ситуаций. А главное, экономят деньги и время.
К слову, на вскидку кмк, текущую площадь дома можно сократить на 20-30 кв.м неиспользуемого пространства, если перекомпоновать по другому помещения. При этом полезная площадь останется фактически той же. Сколько можно сэкономить времени и денег на тех же 20-30 кв. метрах при строительстве?
Пока расчеты только предварительные.
Но с задачей обеспечить комфортную температуру в спальне и гостиной и плюсовую в теплом контуре печь должна справиться.
Целиком отопление все еще в разработке.
А вы окончательно семья из 2х человек? Или перспективы расширения есть?
Какие коммуникации в доме? Печь - единственный/основной/резервный источник тепла? Будет ли использоваться печь для приготовления пищи, и опять же, в каком режиме (нет, резерв, по фану, да) ?
Окончательно.
Вода и электричество (есть), канализация (будет).
В печи, максимум хлебная камера (духовка). В экстренных ситуациях (отключение электричества) должна обеспечить комфортную температуру в спальне и гостиной, положительную в остальных помещениях в тепловом контуре.
Так-то руки помыть в кухне-гостиной есть раковина.
У большинства на участке есть туалет типа сортир, если участок большой :)
Я не знаю стиль жизни ТС и даже регион его проживания, чтобы конкретно где-то его гнобить за планировку. Может они с женой нелюдимые интроверты и у них пулемётики по периметру забора стоят? ;) Хотя тогда не нужна такая большая гостиная.
Гардеробной нет? Так там в спальне знатно шкафов, чтобы всё разместить. Может им так удобнее? Я вот считаю, что в гардеробной должно жить то, чего надеваешь раз в сто лет. Ну или несезонное.
Планировку своего дома я тоже долго рожал в муках и у меня тоже туалет будет не у входа (но с меньшим количеством дверей). Прям идеальный дом можно будет сделать только тогда, когда изобретут телепорты, а до того момента надо идти на компромиссы.
ТС строит дом вокруг русской печи. Ему это важно. Не знаю почему, но почему бы и нет?
Я отталкивался от того, чтобы система канализации и водоснабжения была попроще. Да, для меня это важно, я своё огрёб, больше не хочу. Готов огребать по другим поводам, но не по этому.
Может они с женой нелюдимые интроверты и у них пулемётики по периметру забора стоят? ;)
Таки да...
Мы, конечно, не совсем нелюдимые, но пулеметики не помешали бы)!
Отличный комментарий, спасибо!
По мне лучше беседку сделать (даже если и застекленную). В неё же можно мангалы-тандыры-грили разместить. В контуре дома она будет дороже.
Есть уже беседка (3х6) и там стоят "мангалы-тандыры-грили". Как раз напротив главного входа (~5 м.). Веранда используется круглогодично, как самое инсолируемое, защищённое от ветра и насекомых место.
Вот картинка. Как смог. Но, дом 16*9 никак одной печью не обогреешь. Имхо.
В дальних комнатах по любому холодно будет.
Благодарю. Идею понял.
Насчет холода: опыт проживания в домах, с печным отоплением, имею. Риски осознаю.
Еще раз - спасибо!
Планируется еще один теплый с/у, работающий в тот-же септик, в бане, и на случай беды - туалет типа "сортир" на улице (был, есть и будет).
Да. Я такое в реале видел.
Грудка ( кажется так называется) расположена поперек печи и является частью стены.
так у него нет котла. Он собирается дровами такую халабуду отапливать.
В старости.
Дровами.
Выживальщики 21 века.
Благодарю, за участие!
Молодость мы уже проводили...
На планировку огромное влияние оказывает рельеф участка.
Как по мне - шляпа.
В кабинете и спальне (где трутся один-два человека) куча свободного места, зато в гостиной (рассчитанной минимум на четверых) - между столами протискивайся.
Спальня и кабинет проходные. Кабинет всего один, хотя живут двое. Да и вообще неплохо бы предусмотреть отдельные спальни, так-то двуспальная кровать актуальна в медовый месяц, а потом зачастую от того, что больше спать просто негде.
Куча каких-то закутков-коридорчиков-клетушек.
В большой гостиной, тем более совмещенной с кухней, потолки бы повыше.
зато в гостиной (рассчитанной минимум на четверых) - между столами протискивайся
Вот, и меня это беспокоит.
проект очень не удачный, постройте своё движение по дому! Из кухни в кабинет через прихожую? зачем столько закутков? что бы из кухни к лестнице пройти нужно ДВЕ! двери открыть? Спальня должна быть как можно дальше от гостиной. Где второй санузел?
Именно так и делал. Эскиз-то для себя делал. Хотя сам считаю, что пока не совсем идеальный вариант.
Печь расположить нужно так, чтобы она 4 комнаты отапливала. При этом топка находилась в кухне, и недалеко от выхода.
"Тамбур спуск" - это что?
Тамбур, прихожую и веранду я бы объединил, просто выделив там грязную зону. Впрочем, не очень понимаю зачем нужна веранда в контуре дома.
Веранда необходима, поверьте. Объединить веранду с тамбуром - здравая мысль, думаю в эту сторону.
Как по мне - шляпа.
В кабинете и спальне (где трутся один-два человека) куча свободного места, зато в гостиной (рассчитанной минимум на четверых) - между столами протискивайся.
Спальня и кабинет проходные. Кабинет всего один, хотя живут двое. Да и вообще неплохо бы предусмотреть отдельные спальни, так-то двуспальная кровать актуальна в медовый месяц, а потом зачастую от того, что больше спать просто негде.
Куча каких-то закутков-коридорчиков-клетушек.
В большой гостиной, тем более совмещенной с кухней, потолки бы повыше.
Нужен ещё один туалет, а лучше санузел с душем при гостиной.
У одного есть личный кабинет, а у второго рабочий уголок в спальне. На второй кабинет места не нашлось.
Много стенок и дверей. С одной стороны -легче с отоплением, но ощущение лабиринта.
Расположение главного входа и спальни - принципиально как есть? Или спальню оставляет на запад, а вход можно двигать или поставить на южную стену?
В текущем правом углу спуск вниз - он куда и как часто будет использоваться и для чего?
Мансарда жилая, нежилая, вообще просто чердак?
Дом будет строиться на месте существующего (двухсотлетний пятистенок, с различными пристройками).
Основная проблема участка - перепад высот. В настоящий момент от левого нижнего угла, до правого нижнего угла, прилагаемого эскиза, составляет ~1,7 м. Далее ровный участок ~4 - 6 м. и резкий спуск на 2 м., далее - затопляемая низина (почти болото).
Место спальни не случайно. Во-первых на этих местах, головой на запад, спится лучше всего, во-вторых отапливается, в первую очередь, одной печью и спальня и гостиная-кухня.
Главный вход особо не подвигаешь. Он должен быть на восточной стороне (основной вход на участок на южной стороне, ниже границы постройки на ~2 м.), двигать правее - придется делать высокое крыльцо.
Тамбур-спуск необходим для доступа к помещениям под кладовой и ванной (см. перепад высот) и к пристроенной к северной стене хозяйственной пристройке, в основном за дровами, и выхода из неё на задний план участка.
Подкровельное пространство - холодный чердак, доступ из веранды, через люк-лестницу.
и И имеет смысл совместить по одной стене помещения с обязательной вентиляцией (Кухню, туалет ванную, Иначе вам придется кидать несколько вентиляционных шахт, дырявить с нескольких местах крышу, а можно было сделать одним разделенным каналом. И не понятно, где у вас котельная (теплоузел, водяной ввод) и щитовая
Да, вент каналов 2 (обозначены на плане). Расположение котельной еще точно не определенно.
я бы посоветовал переместить служебные помещения из правого нижнего угла в левый верхний (на место кабинета) вы в кладовку тащите запасы через весь дом
Расположение дома относительно сторон света? Предпочтения по сну (окна спальни на закат, или на восход), расположение дома на участке (в тч подвод коммуникаций), почему на такую большую площадь (я так подозреваю, но втором этаже гостевые спальни?) и веранду один санузел?
Очень сомнительно количество дверей от зоны дневного обитания до спальни. На такой площади можно отгородить хозяйскую зону со своей спальней, санузлом, ванной и гардеробом.
А, и кабинет от спальни лучше отгораживать цельной стеной. Из-за рабочего/игрового места сразу в постель в любом случае редко ходить, а вот шумоизоляция выиграет от того, что между рабочим местом и местом для сна стена, а не дверь
В целом расположение помещений вопрос вызывает. (Коридоры, тамбуры)
Порисовал бы варианты, но исходных данных побольше нужно будет
Ориентировочно - каркас. Взял минимально возможную толщину в 200 мм. Можно расти наружу.
Прости меня ТС, но вы что там балы давать собрались? Для двух человек ИМХО многовато. Но проект норм.











Строительство и ремонт
10.6K постов48.3K подписчиков
Правила сообщества
Правила оформления постов.
Посты видеоролики должны обязательно иметь описание о чём видео. Если видео длинное, то крайне желательно указать время, когда и о чём рассказываете.
В случае нарушения пост выносится из сообщества.
Правила общения.
Запрещено регулярное хамское и неуважительное обращение к другим участникам сообщества в рамках общения в комментариях. В случае первого нарушения бан в сообществе на 2-3 недели. В случае повтора постоянный.
Про нейросети
Тексты сгенерированные нейросетью, выносятся из сообщества, пользователь блокируется на неделю. При повторном нарушении перманентный бан для пользователя.
Про рекламу
Рекламные посты от платных/бесплатных аккаунтов запрещены. За первое нарушение блокировка на 7 дней. За второе перманентная блокировка.
Только для профессиональных участников рынка строительных услуг. (публикующихся регулярно)
Пост должен быть основан на личном опыте.
Должен быть информационно-познавательным (разъясняет/ объясняет что-то связанное с материалом/работой/организацией/и.т.д.) или пищей для ума (Взгляд на проблему, с другой стороны)
Запрещается публикация видео длиной более 5 минут без текстового таймлайна. ( надо указать где и о чём вы рассказываете в видео)
Не злоупотребляйте тэгами. Количество своих тэгов не более 4х шт. Тэги проставляемые системой не учитываются. (Длиннопост, видео, и.т.д.)