Три петербуржца занимаются созданием CGI-короткометражки на тему космоса
Работа ведётся уже более двух лет энтузиастами из Питера. В команде три человека - два специалиста по компьютерной графике (Владислав Соловьёв, Евгений Пак) и один композитор (Андрей Андреев). Несмотря на огромное количество тяжеловесного CGI, к созданию не привлекались средства с краудфандинга или другое бюджетное финансирование извне.
Основная работа проводилась на домашнем оборудовании, в программах Cinema 4D, Modo, Terragen, World Machine, After Effects. Визуализация - Octane Render.
Сценарные детали пока не уточняются, но уже видно, что упор направлен в первую очередь на создание атмосферы и сеттинга. Предварительный релиз намечен на первый квартал 2018-го года.
А также, немного концепт-арта.
Больше вы сможете найти на Behance авторов:
https://www.behance.net/vladislavsolovjov
https://www.behance.net/KLICKSTOP
https://www.behance.net/Owlong
TRKN key Breakdown
3 Года назад опубликовал на этом сайте свой первый пост о 3д графике (https://pikabu.ru/story/cinema_4d_2776162), с тех пор немного ее забросил и никак не развивался в этом направлении. Но недавно я уволился с работы и у меня появилось много свободного времени, которое я решил потратить на развитие навыков в одном из своих хобби
Вот что из этого получилось
Nixie Clock
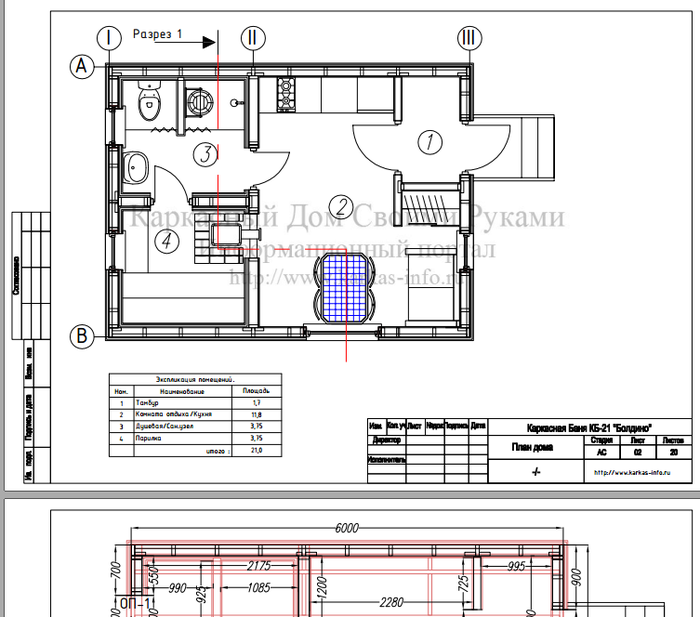
Мое хобби - компьютерное моделирование деревянных каркасов.
Очень мне нравится это занятие. Как семечки лузгать. Сидишь себе домик или баньку моделируешь, будь-то строишь.
Все начинается с проекта. Типа такого..
Проекты я беру в основном те, что лежат в свободном доступе. Прямо в гугле пишу "проект каркасного дома/бани/беседки", выбираю понравившийся и погнали.
Да, я не разрабатываю проект, а беру готовый. Но это только пока. Придет время - займусь и разработкой проектов. Пока не хватает знаний и времени.
Затем проект перерисовываю в CorelDraw с соблюдением размеров удобных для импорта в Cinema4D. В основном это пункты или миллиметры. Все стены и элементы стропильной системы или обвязок рисую отдельно. Для лучшего понимания процесса моделирования (читай "строительства").
Следующий шаг - это импорт в формат AI (Adobe Illustrator). Cinema4D его лучше понимает, чем кореловский.
Каждый файл - отдельный элемент конструкции. Стены, настил, обвязки, ростверк, стропила. Все это для того, чтобы было удобно "выдавливать" это в синеме (о выдавливании чуть позже).
Следующим шагом это добро загоняется в Cinema4D в виде отдельных сплайнов.
Применяется то самое "выдавливание" с заданной толщиной стен или элементов.
Затем добавляется еще стена, затем еще одна, затем стропила до тех пор, пока не получится готовый домик.
На конечном этапе ты уже знаешь как этот дом строится с точностью до миллиметров.
хвастовство_mode_on/
И да, я их еще и строю. Сам. В двоем с помошником. Полностью, от начала и до конца. Но об этом, если захотите, в следующий раз. /хвастовство_mode_off.
А пока выкладываю файлы проекта каркасной бани, которые вы можете поковырять самостоятельно. https://yadi.sk/d/lqqB5QB63NirVk
Проект сделан не полностью, дабы "сохранить интригу", но и этого достаточно для понимания того, как она построена и из чего сделана. И да, в дальнейшем я планирую выкладывать подобные проекты в Cinema4D в свободный доступ. На подходе проект одноэтажного дома, который гуглится по запросу "Каркасный дом Оклахома (КД-86)", дабы не сочли за рекламу.
Всем спасибо.
А теперь кидайтесь тапками, это не первый мой пост.
























