Жилой комплекс "GRAF" I Подробный обзор
UPD:
Внимание!
Изменилась ссылка группы в телеграм!
Новая ссылка: https://t.me/n_nstav
Концепция проекта - помочь людям подобрать нужное жилье по своим критериям, сэкономив время на сбор и обработку информации, создать площадку для обмена информацией о новостройках.
Разумная критика приветствуется, будем улучшать обзоры.
Введение
Жилой комплекс "GRAF"– строящийся жилой комплекс класса "Комфорт" в микрорайоне № 14 (территории офиц. районов здесь) Октябрьского района г.Ставрополя, или неофициальном районе "Район Ж/Д вокзал" (территории неоф. районов здесь). Фактический адрес: Ставропольский край, г. Ставрополь, ул. Гражданская, д. 5.
Ниже представлены рендеры изображения, видео визуализация проекта в группе.
На всей рекламной продукции застройщик указывает следующую информацию:
Обращаем Ваше внимание на то, что вся представленная информация, касающаяся изображений квартир - носит справочно-информационный характер и ни при каких условиях не является офертой определяемой ГК РФ.
Застройщик - ООО СЗ СМУ-3 ЮГКОМСТРОЙ. Группа компаний - ЮгКомСтрой. Начало строительства 21.12.2021.
Планируемый срок сдачи 4-ый квартал 2024 года, а выдача ключей 30.06.2025, фактическую выдачу ключей обещают в декабре 2024 года. Продажа осуществляется через счета эскроу. Банк для открытия счета эскроу - ПАО "Сбербанк".
Застройщик предлагает квартиры с предчистовой отделкой, дом клубного формата, благоустройство дворового пространства и его озеленение, квартиры с террасами, подземный паркинг, двор без машин, авторской архитектурой. Цены на жильё начинаются с 3 миллионов рублей (квартира-студия). Подробнее о том, что ждёт жильцов ЖК «GRAF», в нашем обзоре.
О земельном участке
Земельный участок, отведенный под размещение объекта, граничит:
на севере – территория объектов общественно-делового назначения (Газпромбанк, швейная фабрика);
на востоке - территория существующей жилой застройки (5-этажные МКД), ул. Вокзальная, а далее железная дорога;
на западе - ул. Гражданская и здание небольшого делового центра, а за ним Успенское кладбище;
на юге - территория существующей жилой застройки (5, 9 и 10-этажные МКД).
Рельеф участка спокойный.
Внешний подъезд к проектируемому МКД, а также въезд и выезд в подземную автостоянку осуществляется с ул. Гражданская.
Кадастровый номер земельного участка, в границах которого расположен объект: 26:12:022403:1533.
Площадь 12 046,00 м². Кадастровая стоимость: 100,8 млн. руб.
Право застройщика на земельный участок: право собственности с 09.08.2021.
Разрешенное использование: многоэтажная жилая застройка (высотная застройка).
Ссылка на карту градостроительного зонирования города Ставрополя.
Согласно градостроительному плану земельного участка, утв. Комитетом градостроительства администрации города Ставрополя, земельный участок расположен в территориальной зоне "Ж-0". Установлен градостроительный регламент: Ж-0. Зона застройки многоэтажными жилыми домами (9 этажей и более).
На карте градостроительного зонирования города Ставрополя отражено, что данный земельный участок ранее относился к территориальной зоне "П-1" (Производственная зона).
Напротив земельного участка находится зона "СП-2. Кладбища". А с северной и западной стороны участок огибает зона "ИТ-2. Полоса отвода железной дороги".
Особые условия использования территорий по природным и техногенным условиям. Красной стрелочкой отмечен земельный участок.
Ссылка на карту градостроительного зонирования города Ставрополя с особыми условиями использования территорий по природным и техногенным условиям.
Земельный участок находится в области периодического подтопления, это нормально. В области иных условий земельный участок не подпадает.
О жилом комплексе
ЖК на сайте наш.дом.рф.
Официальный сайт ЖК - https://graf26.ru
Профиль застройщика в Telegram - t.me/ugkomstroy
Жилой дом имеет С-образную форму в плане и сблокирован из 8 блок-секций.
Блок-секции 1, 5, 6, 7, 8 - тринадцатиэтажные (12 жилых), блок-секции 2, 3, 4 - десятиэтажные (9 жилых). Под всем зданием, внутренним двором и прилежащей территорией в пределах границ запроектирована подземная парковка.
В проекте предусмотрено:
авторская архитектура;
клубный формат дома;
двор без машин;
закрытая территория;
видеонаблюдение и охрана;
спортивная и детская площадки, зона отдыха для взрослых и озеленение газонами;
отделка общих помещений стандартная (не дизайнерская)
индивидуальное отопление и теплый пол (теплые лоджии);
террасы на 1-ых этажах и двухуровневые видовые квартиры с террасами на последних этажах;
квартиры-студии;
кладовые на этаже и в паркинге;
подземный паркинг с доступом в лифт.
Коммерческие помещения предусмотрены на 1-м этаже в блок-секциях 7 и 8.
Решения, принятые в проекте, предусматривают условия беспрепятственного и удобного передвижения маломобильных групп населения по территории жилого дома.
Придомовая территория:
Трафик пешеходный - менее среднего: жилой комплекс расположен на границе плотной территории жилой застройки, в радиусе 300 м. находятся такие организации: ж/д вокзал, две автостанции, институт, школа, детский садик;
Закрытая территория – планируется возведение забора вокруг территории земельного участка, видеодомофон и автоматические ворота;
Охрана – запланирована собственная служба охраны;
Умный дом - умная домофония;
Видеонаблюдение - запланировано.
Комфортность проживания:
Строящиеся объекты рядом с ЖК – только ЖК "Красный Металлист" на расстоянии 300 м., это почти незначительно;
Шумные объекты поблизости – отсутствуют, за исключением ж/д путей, которые находятся в 120 м., однако, 5-этажные дома с восточной стороны почти полностью гасят шум (поезда проезжают редко);
Места отдыха – в пешей доступности бульвар Генерала Ермолова (800 м.), бульвар Красный Металлист (400 м.), Барятинский парк (1.5 км.);
Расстояние от оживленной дороги – 50 м. до ул. Гражданская (только западная сторона дома), этого почти достаточно для подавления шумов и выхлопных газов от автомобилей.
Планировки
Квартирография по дому:
квартиры-студии от 23 до 26 м2 - 24 квартиры или 6%
1 комнатные от 34,9 до 49 м2 - 163 квартиры или 40%
2 комнатные от 49,1 до 76 м2 - 172 квартир или 42%
3 комнатные от 80,3 до 93,1 м2 - 50 квартир или 12%
4 комнатные - отсутствуют
Пентахаусы от 47,4 до 160 м2 (только последние этажи) - в составе 1, 2, 3 комнатных квартир. Под пентхаусом понимается двухуровневая квартира с выходом на террасу на кровлю, высота ограждения кровли 1,2 м.
Среднее количество квартир на этаже - 5 единиц
Количество подъездов - 8 единиц
Первый этаж для коммерческих помещений - только подъезды №7 и №8. Также, на первых этажах в подъездах 1-6 частично запроектированы квартиры с террасами.
Высота жилых этажей в чистоте - 2,72 м.
Во всех квартирах предусмотрены теплые лоджии. Оконные проёмы и лоджии верхних этажей (11-12 этажи) имеют остекление "в пол". Высота ограждений лоджий принята не менее 1,2 м.
Планировки и подробная квартирография в разрезе подъездов приведена в файле "Квартирография" в теме группы ЖК I GRAF.
Кладовые на этаже
Площадь от 2,8 до 6,1 кв.м. Доступны в подъездах: №4 и №7
Цена 1 кв.м. - 45 тыс. руб.
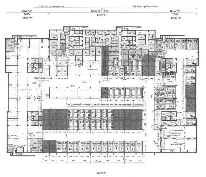
Подземные кладовые и паркинг
Кладовые в подземном паркинге от 5 до 12 кв.м.
Цена 1 кв.м. - 35 тыс. руб.
Желтым цветом выделены уже проданные позиции кладовых.
Въезд в паркинг осуществляется с ул. Гражданская (отмечен стрелочкой).
Отделка подземной парковки:
потолки: подшивка ГКЛ по мет.каркасу с заполнением минераловатными плитами; обеспыливание;
стены: обеспыливание;
полы: бетон.
Количество машино-мест всего - 194 шт.
Площадь стандартная - 2,7 х 5,3 м.; 2,7 х 5,5 м.; 2,9 х 5,5 м.; 3,10 х 5,5 м.. Цена 850 тыс. руб. за единицу. Имеются семейные машино-места.
Акция: при покупке 2 комнатной квартиры скидка 50 тыс. с машино-места, т.е. 800 тыс. руб.
Синим цветом выделены уже проданные позиции машино-мест.
Цены на дату публикации
Средняя стоимость квадратного метра в ЖК "Граф" на дату публикации статьи составляет 114 тыс. рублей, а квартир — 6.8 млн рублей.
Пример для сравнения стоимости 1 кв.м.:
ЖК "Граф", 2 комнатная квартира, площадью 65 кв.м., этаж 8 из 12, цена - 7 605 000 руб. (117 тыс. руб - за 1 кв.м.). Сдача 4 кв. 2024 года.
ЖК "Красный металлист" (КМ4, поз. 4) 2 комнатная квартира, площадью 64,5 кв.м., этаж 8 из 22, цена - 6 000 000 руб. (93 тыс. руб. - за 1 кв.м.). Сдача 3 кв. 2025.
Аналогичная последняя квартира в КМ3 со сроком сдачи 4 кв. 2024 года, продается по цене за 1 кв.м. уже 100 тыс. руб. (18 из 19 этажей, 66 кв.м. - 6 600 000 руб.).
Разница 24 тыс. руб. с 1 кв.м. или 1,6 млн. руб. за всю квартиру, однако, цели и задачи у вышеуказанных ЖК разные.
Ознакомиться с актуальными предложениями можно по телефону отдела продаж застройщика - 8-(8652)-409-904.
Описание технической части
Согласно информации, приведенной в экспертизе проектной документации, проектной декларации и в проекте договора долевого участия, которая находится в открытом доступе на сайте наш.дом.рф, а также полученной в ходе личного обследования объекта, были собраны основные техническое аспекты данного ЖК, интересующие будущего владельца.
Работы в соответствии с договором строительного подряда выполняются непосредственно застройщиком, без привлечения генерального подрядчика.
Номер разрешения на строительство: 26-309000-32с-2021
Срок действия разрешения на строительство: 14.04.2026. Данный срок был продлен: 05.08.2022.
Материал перекрытий (ПД): железобетонные монолитные плиты.
Потолки подземного паркинга подшиваются ГКЛ по мет.каркасу с заполнением минераловатными плитами. Пол первых этажей не будет холодным.
Материал внешних стен:
- по монолитному каркасу: минеральные плиты 50 мм. +теплоизолирующая карска "ТЕРМИОН Фасад" или аналог толщиной 1мм + декоративная штукатурка или гибкий декоративный камень.
- наружные стены: газобетонные блоки ГРАС толщиной 250 мм + минеральные плиты 50 мм. + декоративная штукатурка или гибкий декоративный камень.
Однако, при фактическом выезде отмечены материалы не указанные в проектной документации: вместо газобетонных блоков ГРАС используется монолит-керамический камень, в этом случае это улучшение, но при утеплении использовать пенопласт взамен минваты, это ухудшение.
Материал межквартирных стен - газобетонные блоки ГРАС 200 мм.
Материал межкомнатных стен - пазогребные плиты 100 мм.
Тип отделки – предчистовая, а именно: установка входной двери; установка радиаторов; установка остекления; возведение межкомнатных перегородок; стяжка пола помещений и санузлов; разводка инженерных коммуникаций (ГВ/ХВ); подготовка стен помещений - штукатурка (кроме межкомнатных, они из пазогребневных плит, не требуют оштукатуривания); прокладка труб канализации; разводка системы индивидуального отопления.
Характеристики остекления - Deceuninck Eco 60 мм (декенинк), четырехкамерные, теплопередаче 0,68 м²С/Вт.
Оконный блок на лоджию - не устанавливается
Характеристики входной двери - Border 1А, сталь - 1,5 мм, утепление - минвата, толщина полотна - 70 мм., цена - 25 тыс. руб.
Отопление: индивидуальное.
Газификация дома: котел и варочная панель.
Характеристики котла – двухконтурный котел с закрытой камерой сгорания фирмы «Ariston» мощностью 15кВт для 1 и 2 комнатных квартир и 24кВт для 3 комнатных. Разводка системы - металлопластиковые трубы.
Характеристики радиаторов - стальные панельные радиаторы типа «ОАЗИС» или аналог.
Установка теплого пола в помещениях и санузле - все помещения включая лоджии, кроме спален.
Разводка инженерных коммуникаций (Электрика) - формальная разводка "2 розетки на комнату".
Шумоизоляция пола - отсутствует.
Шумоизоляция стен - отсутствует.
Сети связи - ООО "Сеть" (Зеленая точка).
О жилом комплексе:
Изменения в проектной документации:
корректировка площадей квартир от 22.11.2021
откорректировано пятно застройки подземного паркинга, выполнена корректировка элементов благоустройства и парковок согласно ГЗПУ от октября 2023 года
Класс энергоэффективности: В.
Общее количество этажей: 13 и 10 (этаж -1 для паркинга).
Количество жилых этажей: 12 и 9.
Количество квартир: 409 шт.
Благоустройство:
Количество детских площадок - одна
Количество спортивных площадок - одна
На территории жилого дома размещаются площадки благоустройства с соблюдением минимально допустимого расстояния от окон жилых зданий. Площадки оборудуются необходимым набором малых архитектурных форм и переносных изделий.
Покрытие детских и спортивных площадок выполняется из искусственного резинового покрытия.
Ограждение спортивной площадки выполняется металлическим, высотой 4 метра.
Количество площадок для мусора - одна, сбор ТБО осуществляется на площадке с твердым покрытием, расположенной на нормативном расстоянии с западной стороны участка и рассчитанной на 6 контейнеров. К площадке ТБО организуется подъезд спецавтотранспорта.
Планируемое озеленение – озеленение территории проектирования выполняется путем устройства газонов.
Парковочное пространство:
Заявлено 321 место, из них 127 на подъемниках, подъемников нет и не будет, следовательно, имеется только 194 места в паркинге и 40 вне придомовой территории.
· Количество мест в паркинге – 194
· Гостевые места на придомовой территории – нет
· Гостевые места вне придомовой территории – 40
Безбарьерная среда:
· Наличие пандуса – есть
· Наличие понижающих площадок – есть
· Количество инвалидных подъемников – нет
Наличие лифтов в доме:
· Количество подъездов – 8
· Количество грузопассажирских лифтов – 8 (во всех подъездах)
· Количество пассажирских лифтов - 5 (доп. для подъездов где 12 этажей)
Нежилые помещения (кладовки):
· Местонахождение нежилых помещений – на этажах и в паркинге
· Количество нежилых помещений – 114
Инфраструктура комплекса
Индекс доступности инфраструктуры на основании расстояния до учреждений здравоохранения, образования, спорта, развлечений и предприятий розничной торговли – составляет 7/10 согласно оценке наш.дом.рф.
Интерактивная карта инфраструктуры доступна по ссылке. Карта подскажет вам, где находятся интересующие вас места: магазины, остановки, поликлиники, сады, школы, бульвары и парки, а также укажет расстояние до центра. Вы можете использовать функцию просмотра панорамы улиц в Яндекс.Картах, чтобы увидеть реальную обстановку.
Транспорт
До ближайшей остановки общественного транспорта:
Вышеуказанные маршруты позволяют добраться в большую часть города без пересадок.
Посмотреть схемы маршрутов общественного транспорта г. Ставрополя можно на
официальном сайте "Крайтранс" - отметьте галочкой нужные маршруты
Транспортная нагрузка в будний день, исключая обильные осадки (снег, дождь) и какие-либо мероприятия:
Для анализа автомобильного трафика можно воспользоваться функцией "Статистика пробок" в Яндексе.
О застройщике
Застройщик: ООО "Специализированный Застройщик СМУ-3 "Югкомстрой"
· ИНН 2635235016
· юр.адрес: Ставропольский край город Ставрополь, пр-кт Кулакова 28 Б
· телефон: +7(865)299-02-99, E-mail: uks26@mail.ru
· Руководитель: Горбатых Алина Александровна
· Группа компаний – ООО "Специализированный застройщик Югкомстрой", ИНН 2634042004
История строительства Застройщика (часто под другими ООО):
· ЖК "GreenПарк" (3 позиции) по ул Доваторцев, д. 52, корпус а - ссылка
Отзывы: я.карты, яндекс реалти
Отзывы:
О застройщике: я.карты
О ЖК: я.карты; 2ГИС, яндекс реалти
Резюме
Особенность Жилого комплекса «GRAF», повышающая его привлекательность – расположение в центральной исторической части города, малоэтажность строительства относительно других предложений в локации, видовые характеристики, двор без машин, террасы не первых и последних этажах.
Недостатки – современный "Комфорт класс" должен предусматривать помещения для колясок и велосипедов и улучшенную отделку МОПов, чего нет в данном ЖК. Отсутствие отделки террас на последних этажах (фото в теме ЖК). Недостаточное количество открытых парковок, их очень мало.
Кого-то может оттолкнуть ЖК из-за близости нахождения с Успенским кладбищем, однако, детский сад № 164 частично построен на его территории, так что об этом не стоит беспокоиться, последние захоронения проводились давно.
Предложения других новостроек в районе
1. Жилой комплекс "Красный металлист" (КМ4) – класс «Типовой», выдача ключей 30.11.2025, цена за кв.м. – от 96 тыс. руб.
2. Жилой комплекс «VICTORIA» - класс «Бизнес», выдача ключей 30.06.2024, цена за кв.м. от 118 тыс. руб.
3. Жилой комплекс "Дыхание" - класс «Бизнес», выдача ключей 30.06.2026, цена за кв.м. от 95 тыс. руб. (90 тыс. руб. если действует скидка)
Подробные обзоры на другие ЖК можно посмотреть в https://t.me/novostroyki_stav_26



































































































































