Большая самоделка 5. Перекрытие
Скоро сказка сказывается, да не скоро дело делается.
Время бежит, работа стоит.
По графику работ я должен собирать армопояс а я еще кладу блоки и занимаюсь перекрытием.
Для опирания деревянных балок перекрытия на арболитовые блоки решил залить пятисантиметрвый слой железобетона. В верхнем ряду блоков выполнил выборку в 5 см, центральную стену сделал ниже на 5 см. Навязал арматуры. Отбил лазером уровень перекрытия, натянул причалку и прикрутил на саморезы опалубку из бросовой фанеры 5-8 мм. ну и залил.
Дозаказал блоков, решил не городить холхоз с массовой резкой блоков под армопояс и закупить U-блоки. Резка арболита меня напрягает. То цепь растянется, то масло в бензопиле не подается. На электропиле шина сгорела, не уследил.
Привезли блоки шириной 350 мм, и U-блоки шириной 300. При установке трехсотых. блоков на четырехсотые образуется ступенька в 5см. На нее удобно встанет плита утеплителя перекрытия.
30 сантиметровый U-блок на центральной стене шириной 20см, не комильфо. Эстетически. Но минусов с технической точки зрения я не вижу. Если не прав , буду благодарен за комментарии. Плюсы это не нужен дополнительный ряд над прекрытием, не нужна опалубка.
Купил сухую доску и огнебиозащитную пропитку на перекрытие
Жена красит, я подрубаю
Один чел мне пролечил довел, что лаги надо подрубать. Типо капилляры в древесине целыми остаются. Ну а чё, мне не сложно. Болгарка есть, топор тоже. На десятой балке понял, что погорячился и счастье не в топоре и спилил все углы циркуляркой за пару минут.
Жена режет рубероид , я пришиваю. Семейный подряд сила!!!
Как пробная партия лаг была изготовлена, выложил ряд полублоков, и прикинул как будет вставать лага.
Потом начались проблемы. Так как на высоте я собираю конструкцию впервые повылезали проблемы со сборкой. Некуда встать, не на что опереться, постоянно надо куда-то лазить за инструментом и расходкой. Жестко не хватает рук помошника. Но со временем все было решено.
Например так я поднимал доски
Перемычки прикручивал саморезами по меткам, потом пробивал тремя гвоздями 120мм с каждой стороны. Очень помог молоток кровельщика с магнитиком и гнездом под гвоздь и пояс с подсумком плотника.
За половину рабочего дня удалось собрать перекрытие над одной комнатой и подготовить конструктивы под еще одну. Потом перерыв в неделю. Работу тоже надо работать.
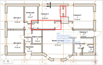
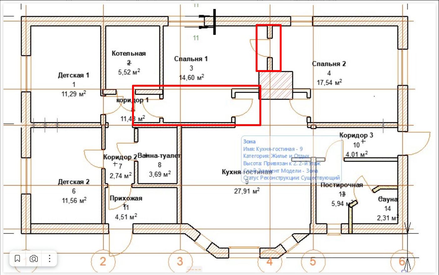
В процессе хождения по стройке и некоторых дрязг, решил чутка изменить планировку, и вместо одной спальни и коридора замутить себе кабинет. В кабинете будет компьютерный стол, телек диванчик, бар, беговая дорожка, шкаф с ништяками, массажное кресло, гамак, палатка, турник и маленькая собачонка.
Было так
Будет так, спальня 1=кабинет
Тут критиковали, что на 4 спальни 1 туалет. Нет . Туалета два, второй в уголке над сауной, трубы заложены. Да и спальни теперь три.
Так как коридор из части дома пропал , а там планировалась складная лестница на чердак, пришлось лестницу перенести и собрать дополнительный простенок для усиления перекрытия.
Так как перевязать с основной стеной уже невозможно, каждый ряд крепил на анкерные пластины иармировал базальтовой сеткой..
Между лагами ставил перемычки длиной 59см., между перемычками 119 см. чтобы целиком плитка утеплителя влезла. Косорукость никто не отменял, сначала размечал каждую перемычку, потом применил малярный шнур. Сетка сразу выровнялась. А на самом последнем квадрате вспомнил , что у сменя 2 угольника столярных пылится и перемычки выровнялись по вертикали.
Основные лаги по 4 метра одинарные, над эркером пролет 5 метров, там поставил сдвоенные.
Для лестничного люка задал размеры 1400х700. Но не придумал как усилить крепление справа, Наверно куплю пару стальных крепежей и ущё две доски прикручу на саморезы для опоры на стену.
Последние две фотки в ночном режиме. Ибо уже ночью фоткал.
Следующим этапом нарежу блоков, заложу их в промежутки лаг на несущих стенах. Приклею сверху U-блоки. Свяжу и уложу в блоки армокаркас. Закреплю шпильки для анкеровки мауэрлата. И залью армопояс.
P.S.
Я, похоже, разгадал тайну белого нагрудника.






















Строительство и ремонт
10.6K постов48.3K подписчик
Правила сообщества
Правила оформления постов.
Посты видеоролики должны обязательно иметь описание о чём видео. Если видео длинное, то крайне желательно указать время, когда и о чём рассказываете.
В случае нарушения пост выносится из сообщества.
Правила общения.
Запрещено регулярное хамское и неуважительное обращение к другим участникам сообщества в рамках общения в комментариях. В случае первого нарушения бан в сообществе на 2-3 недели. В случае повтора постоянный.
Про нейросети
Тексты сгенерированные нейросетью, выносятся из сообщества, пользователь блокируется на неделю. При повторном нарушении перманентный бан для пользователя.
Про рекламу
Рекламные посты от платных/бесплатных аккаунтов запрещены. За первое нарушение блокировка на 7 дней. За второе перманентная блокировка.
Только для профессиональных участников рынка строительных услуг. (публикующихся регулярно)
Пост должен быть основан на личном опыте.
Должен быть информационно-познавательным (разъясняет/ объясняет что-то связанное с материалом/работой/организацией/и.т.д.) или пищей для ума (Взгляд на проблему, с другой стороны)
Запрещается публикация видео длиной более 5 минут без текстового таймлайна. ( надо указать где и о чём вы рассказываете в видео)
Не злоупотребляйте тэгами. Количество своих тэгов не более 4х шт. Тэги проставляемые системой не учитываются. (Длиннопост, видео, и.т.д.)