100 квадратных метров своего собственного хозяйства или квартира студия в 30м2?7
Именно такой выбор будет стоять у вас если в кармане не больше 6 млн, а на дворе 2024 год! Я закончил строить домик в 100 м12 и сегодня Вами расскажу об этом.
И да, тут сразу придет 100 пятьсот человек, которые напишут в комментариях, что их дом в 2000 квадратов – это самое оно, а не ваша канура, но на мой взгляд, такой домик будет очень хорошим решением для семь с небольшим бюджетом, или для того , кто не хочет увлекаться оборкой огромной усадьбы.
Собственно вот такой домик получился!
И небольшой обзор домика
Домик построил этим летом. Два этажа, 100 м2. Строился из бруса естественной влажности. Материал не дорогой, и даже сейчас по 18 000 за м3 можно купить. От того и такой популярный. Из бруса строят у нас все, много, от того видеть такой дом привычно и не боязно на своем участке.
Если же по материалу у Вас есть сомнения, в посте ранее есть моё более взвешенное мнение о дереве, там можете посмотреть.
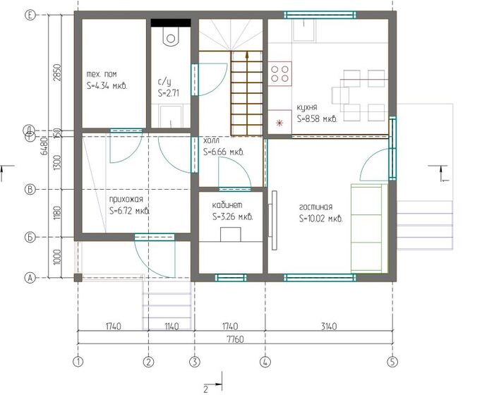
Всего у дома два этажа. Весь проект (сможете скачать) и смету я выложу в следующем посте.
На первом этаже помещения для активности: кухня , гостиная, тамбур, сун узел, тех помещение и даже небольшой кабинет
Второй же этаж для спокойствия и отдыха. Спать, отдыхать, делать уроки.
Здесь 3 спальни, гардеробная, и сан узел.
Фундамент – жб сваи, Материал простой, понятный, привычный для нашего региона – Иркутска. Сваи колотят повсеместно, показали себя не плохо, тем более часто глина и возиться здесь земляными с промерзанием грунтов в 2,5 метра, не очень хочется, да и дорого самое главное. А сваи быстро, гарантия много лет, свайщики вообще про 150 лет говорят.
Сама коробка из бруса 180х180 мм. Строился из зимнего бруса, после острожки смотрится славно. Светлая древесина и запах за несколько десятков метров. Внутри так вообще до головокружения.
В гостиную поставили окна в пол. Сейчас все ставят окна в пол. Без окон в пол не представляю загородного дома.
А вот балкон на втором этаже считаю все же лишним. Не думаю что им пользоваться можно больше чем десяток раз в году под настроение. Зато красиво, здесь скорее из за внешнего вида.
В доме все почти готово для завоза мебели. Конечно электрику потом придется поправить, но сейчас уже очень даже не плохо. Когда сядет – четь подрезать и все!
В целом , на мой взгляд, получилось очень не плохо, но это больше вопрос вкуса! Проект и смету ждите следом)













Строительство и ремонт
10.6K постов48.3K подписчика
Правила сообщества
Правила оформления постов.
Посты видеоролики должны обязательно иметь описание о чём видео. Если видео длинное, то крайне желательно указать время, когда и о чём рассказываете.
В случае нарушения пост выносится из сообщества.
Правила общения.
Запрещено регулярное хамское и неуважительное обращение к другим участникам сообщества в рамках общения в комментариях. В случае первого нарушения бан в сообществе на 2-3 недели. В случае повтора постоянный.
Про нейросети
Тексты сгенерированные нейросетью, выносятся из сообщества, пользователь блокируется на неделю. При повторном нарушении перманентный бан для пользователя.
Про рекламу
Рекламные посты от платных/бесплатных аккаунтов запрещены. За первое нарушение блокировка на 7 дней. За второе перманентная блокировка.
Только для профессиональных участников рынка строительных услуг. (публикующихся регулярно)
Пост должен быть основан на личном опыте.
Должен быть информационно-познавательным (разъясняет/ объясняет что-то связанное с материалом/работой/организацией/и.т.д.) или пищей для ума (Взгляд на проблему, с другой стороны)
Запрещается публикация видео длиной более 5 минут без текстового таймлайна. ( надо указать где и о чём вы рассказываете в видео)
Не злоупотребляйте тэгами. Количество своих тэгов не более 4х шт. Тэги проставляемые системой не учитываются. (Длиннопост, видео, и.т.д.)