Маскировка трубы)
UPD:
Вот оно на Али, на Яндекс Маркете, взято с телеги Интересный Маркетплейс
Дизайн-проект квартиры в ЖК «Фестиваль парк-2» в Москве выполнен в современном стиле с элементами минимализма и природными фактурами. На площади 110 м² создано комфортное и функциональное пространство для семьи с двумя детьми: кухня-гостиная, мастер-спальня, детская комната, санузлы и хозяйственный блок. Панорамные окна стали важной частью концепции — они наполняют интерьер светом, подчеркивают пространство и делают его ещё более выразительным.
Дизайн интерьера квартиры в ЖК «Фестиваль парк-2», прихожая с потолочным освещением от студии Artum.
В Artum мы делаем проекты, которые сохраняют актуальность не только сейчас, но и в долгосрочной перспективе. Мы учитываем образ жизни семьи, перспективы развития и создаём интерьер, который не теряет своей ценности со временем. Загляните в портфолио студии — там вы найдете идеи и для своего будущего проекта.
✨ Перепланировка квартиры в ЖК «Фестиваль парк-2»
✨ Дизайн прихожей
✨ Дизайн-проект кухни-гостиной
✨ Интерьер мастер-спальни
✨ Дизайн интерьера детской комнаты
✨ Интерьер санузлов
✨ Дизайн хозблока
✨ Особенности дизайна квартиры в ЖК «Фестиваль парк-2»
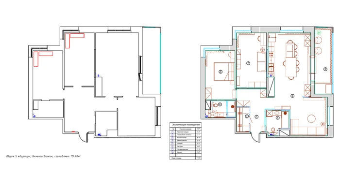
Перепланировка сделала пространство более рациональным и удобным для семьи. За счёт переноса перегородки удалось увеличить хозяйственный блок и добавить полноценную постирочную, вход в которую организован со стороны кухни. В мастер-спальне появился отдельный санузел с душевой, превращающий её в приватную зону.


Планировочное решение до и после.
Между прихожей и гостиной установлены раздвижные перегородки с рифлёным стеклом — они пропускают свет, сохраняя приватность. В детской комнате спроектированы две кровати, рабочее место у окна и вместительные шкафы для хранения вещей. В гостиной предусмотрено место для праздничной ёлки, а в остальное время там расположено декоративное дерево.
Прихожая выполнена в минималистичном ключе и выглядит просторнее за счёт прямых линий. Основные акценты — панели под дерево и стеклянные перегородки с вертикальным рельефом. Для удобства жильцов предусмотрена мягкая скамья с ящиками для хранения и нишей для верхней одежды.




Визуализация прихожей.
Тёмные детали и встроенная подсветка добавляют интерьеру выразительности. Скрытые двери визуально упрощают пространство, делая его более цельным. Прихожая стала стильным «входом» в квартиру и сразу задаёт настроение.
Кухня-гостиная объединяет рабочую, обеденную и зону отдыха в единое пространство.




Визуализация кухни.
Панорамные окна играют ключевую роль: они наполняют комнату светом и делают её зрительно больше. Фасады кухни выполнены в тёмной гамме, а каменный остров стал акцентным элементом, выполняя также роль барной стойки.




Визуализация гостиной.
В гостиной зоне установлен большой диван глубокого зелёного оттенка. Стена с телевизором оформлена натуральным камнем и подсветкой, что придаёт интерьеру динамику. Лёгкие шторы и открытые полки завершают образ, создавая атмосферу для общения и отдыха.
Спальня оформлена в мягкой нейтральной гамме с акцентом на текстиль и дерево. Центральное место занимает кровать с мягким изголовьем, дополненная подвесными светильниками. За изголовьем — декоративные панели с подсветкой, добавляющие глубины.




Визуализация спальни.
Для хранения вещей предусмотрен встроенный шкаф с фасадами из тонированного стекла. Напротив кровати расположена зона с телевизором и консолью для декора. Панорамные окна визуально расширяют пространство и создают ощущение свободы.
Детская выполнена в светлой цветовой гамме с пудровыми и молочными акцентами. Две кровати расположены параллельно, оставляя достаточно места для игр. У окна размещён длинный письменный стол с двумя рабочими местами и индивидуальными стеллажами.




Визуализация детской комнаты.
Встроенные шкафы позволяют удобно организовать хранение. На стенах — лёгкая графика с природным мотивом, которая добавляет комнате свежести. Пространство подходит и для отдыха, и для учёбы, и для занятий вдвоём.
Главная ванная оформлена в белом мраморе с чёрными акцентами. Здесь предусмотрена подвесная тумба с круглой раковиной, вместительные шкафы и стеклянная душевая с подсветкой. Интерьер выглядит современно и стильно.



Визуализация душевой.
Детский санузел выполнен в светлой бежевой палитре с золотой фурнитурой. Большое зеркало с подсветкой делает помещение более просторным, а ванна с прозрачной перегородкой добавляет лёгкости. Интерьер остаётся практичным и эстетичным одновременно.



Визуализация детской ванной.
Хозяйственный блок продуман до мелочей. Здесь есть встроенные шкафы для хранения бытовых мелочей и колонна со стиральной и сушильной машинами. Дополнительно предусмотрена поверхность для складывания белья и зона для глажки с полноценной доской. Всё расположено так, чтобы рутинные задачи были максимально удобными.




Визуализация хозблока.
Ремонт квартиры в ЖК «Фестиваль парк-2» в Москве построен на сочетании натуральных фактур, светлых тонов и выразительных тёмных акцентов. Панорамные окна стали главным преимуществом проекта — они раскрывают пространство и делают интерьер по-настоящему современным.




Панорамные окна задали тон всему интерьеру — они сделали акценты из дерева и камня ещё более выразительными. Это решение стало главным для образа проекта и подарило ему характер.
👇 Запишитесь на бесплатную консультацию дизайнера, чтобы обсудить ваш проект и рассчитать его стоимость!
Дизайн-проект квартиры в ЖК «Миръ» в Санкт-Петербурге создан для молодой пары. Площадь объекта — 126 м², стиль — неоклассика с современными акцентами. Планировка включает две гардеробные, кабинет, постирочную и два полноценных санузла. В проекте есть яркие детали: камин-декор в столовой, глубокие подоконники, которые можно использовать как дополнительные поверхности, и коллекция картин, подчёркивающих интерес заказчиков к с
В Artum мы проектируем исходя из образа жизни клиента. Нас интересуют маршруты и привычки, поэтому каждый интерьер продуман до мелочей. В портфолио студии можно увидеть, как идеи превращаются в практичные и эстетичные решения.
📌 Перепланировка квартиры в ЖК «Миръ»
📌 Интерьер холла
📌 Дизайн-проект кухни-гостиной
📌 Интерьер спальни с гардеробной
📌 Дизайн интерьера санузлов
📌 Сколько стоит дизайн-проект квартиры в ЖК «Миръ»
📌 Сколько стоит ремонт квартиры в ЖК «Миръ»
📌 Сопровождение реализации проекта
📌 Что влияет на итоговую стоимость
Перепланировка позволила сохранить общую структуру застройщика, но при этом сделать пространство более функциональным. Лоджия была присоединена к жилым помещениям, за счёт чего увеличилась площадь столовой и гостиной. Малый санузел трансформировали в постирочную с техникой и системами хранения.


Планировочное решение до и после.
В проекте предусмотрели два санузла: гостевой с душем и мастер-ванную при спальне. Кухню разделили на рабочую зону и отдельную столовую группу с камином и большим обеденным столом. Дополнительные шкафы для хранения разместили в прихожей и других помещениях квартиры.
Холл выполнен в светлой палитре с акцентами на лепнине и симметрии. Встроенные шкафы с высокими фасадами и латунной фурнитурой обеспечивают хранение. Центр композиции — большая хрустальная люстра.




Визуализация холла.
На полу уложен паркет «ёлочкой» в сочетании с мраморными вставками в зоне входа. Одну из стен украшает крупная картина в современном стиле. Композицию завершает консоль с зеркалом и декоративными элементами.
Пространство кухни, столовой и гостиной объединено в единый блок, но каждая зона сохраняет свою функцию.


Визуализация кухни.
Кухня выполнена в тёплых древесных оттенках и дополнена мраморным фартуком с выразительным рисунком. Встроенная техника и винный шкаф делают её практичной и удобной для хозяев. Центр освещения — изящная люстра, поддерживающая декоративный стиль интерьера.




Визуализация гостиной.
Гостиная и столовая оформлены в светлой гамме с акцентным текстилем и современными люстрами. В обеденной зоне стоит большой стол на восемь персон, рядом размещён камин-декор. Тёмные панели и люстра в столовой создают камерную атмосферу, а диван на 4,5 метра делает пространство центром общения и встреч.
Спальня оформлена в бежево-коричневой палитре с акцентом на фактуры и объёмные элементы. Кровать с высоким мягким изголовьем дополнена симметричными прикроватными тумбами. Стены украшены декоративными панелями с профилями и подсветкой.




Визуализация спальни.
В нише оборудована зона для чтения с креслом и торшером. Из спальни есть выход в отдельную гардеробную со стеклянными перегородками и встроенным светом.
Первый санузел оформлен в сочетании мраморных плит и панелей под дерево. Здесь расположены ванна, душевая зона и подвесная мебель с системами хранения. Латунная сантехника и многослойный светильник добавляют выразительности.




Визуализация ванной.
Второй санузел выполнен в контрастной гамме из тёмного и светлого мрамора. В нём предусмотрены душевая кабина в стеклянном ограждении, двойная раковина с тёмной столешницей и отдельная зона для унитаза и биде. Подсветка ниш и хрустальная люстра формируют завершённый образ.




Визуализация душевой.
Кабинет задуман как многофункциональное пространство. Рабочая зона у окна включает подвесной стол и удобное кресло, рядом — шкаф с витринными дверцами и подсветкой для хранения книг и коллекций.




Визуализация кабинета.
На противоположной стене стоит диван, что позволяет использовать комнату и как гостевую. Яркий геометрический ковёр добавляет динамики и перекликается с общей цветовой гаммой квартиры. Интерьер дополняет люстра с хрустальными деталями, которая соединяет классику и современные акценты.
Стоимость дизайн-проекта зависит от площади. Для квартиры 126 м² цена составила 5 500 руб. за м², что равняется 693 000 руб. за полный комплект документации: от планировочных решений до рабочих чертежей. Сроки разработки — около 3–3,5 месяцев.
Ремонт квартиры в ЖК «Миръ» в Санкт-Петербурге складывается из трёх частей:
ремонтно-отделочные работы — 30 000 руб./м², или 3 780 000 руб.;
черновые материалы — 17 000 руб./м², или 2 142 000 руб.;
чистовые материалы, мебель и техника — 70 000 руб./м², или 8 820 000 руб..
Общая стоимость реализации проекта «под ключ» составила 15 435 000 руб., что примерно равно 122 500 руб. за м².
Для контроля качества и сроков клиенты выбирают дизайнерское сопровождение. В студии Artum доступны два формата: авторское — 50 000 руб. в месяц и комплексное — 90 000 руб. в месяц. Обычно сопровождение длится весь ремонт — 10–12 месяцев.
На итоговый бюджет влияют перепланировка, высота потолков, выбор инженерных решений (например, система «умный дом»), замена остекления и индивидуальная мебель на заказ.
Бесконечное мерцание зеркальных плиток днем и яркое ночное свечение. Генератор атмосферы для любого помещения.
🔹Скульптура укреплена эпоксидной смолой
🔹Рога и уши покрыты акриловой светящейся краской
🔹Рама выполнена из натурального дерева 30х40




Матовая черная краска и синий неон - моя любовь
Размеры:
• Высота головы – 27 см, с рогами – 54 см
• Ширина (с рогами) – 33 см
• Глубина – 22 см


сотни маленьких зеркал
больше работ в моем ТГ https://t.me/polygonal_lis
Дизайн-проект квартиры в ЖК «Russian Design District» в Москве выполнен в современном стиле с элементами минимализма и природных фактур. На площади 110 м² создано комфортное пространство для семьи с двумя детьми: спроектированы кухня-гостиная, мастер-спальня, детская, санузлы и хозяйственный блок. В основе концепции — дерево, камень и мягкая палитра, дополненные выразительными тёмными акцентами.
Дизайн интерьера квартиры в ЖК «Рашен Дизайн Дистрикт», спальня с деревом в интерьере от студии Artum.
В Artum мы делаем акцент на интерьерах, которые остаются актуальными долгие годы. Мы проектируем пространство с учётом образа жизни семьи и будущих изменений — поэтому оно не устаревает, а развивается вместе с хозяевами. Посмотрите портфолио студии — там вы найдёте идеи и для своего проекта.
✅ Перепланировка квартиры в ЖК «Russian Design District»
✅ Дизайн-проект прихожей
✅ Дизайн кухни-гостиной
✅ Интерьер мастер-спальни
✅ Интерьер детской комнаты
✅ Дизайн интерьера санузлов
✅ Дизайн хозблока
✅ Особенности дизайна квартиры в ЖК «Russian Design District»
Коррекция планировки позволила избавиться от лишних углов и сделать пространство более удобным. За счёт переноса перегородки удалось расширить хозяйственный блок, добавив полноценную постирочную, вход в которую организован прямо из кухни. Мастер-спальня получила собственный санузел, что превратило её в изолированную приватную зону.


Планировочное решение до и после.
Между прихожей и гостиной установлены раздвижные перегородки с рифлёным стеклом — они пропускают свет и в то же время создают ощущение отдельного пространства. В детской для двух девочек предусмотрены рабочие места у окна, отдельные шкафы для хранения и просторная зона для игр. В гостиной оставлено место для новогодней ёлки, которое в остальное время занимает декоративное дерево.
В прихожей убрали лишние углы и сделали пространство лёгким и современным. Основные акценты — панели под дерево и раздвижные перегородки из рифлёного стекла. Для удобства жителей установлена мягкая скамья с системой хранения и ниша для верхней одежды.




Визуализация прихожей.
Тёмные детали и встроенная подсветка подчеркивают современный стиль квартиры. Скрытые двери и ровные линии добавляют визуального простора. Прихожая стала первым акцентом квартиры, задающим настроение всему интерьеру.
Кухня-гостиная спроектирована как единое пространство, где рабочая зона соединена с обеденной и зоной отдыха.




Визуализация кухни.
Тёмные фасады кухни контрастируют с деревом и камнем, добавляя интерьеру выразительности. Центральный элемент — каменный остров, который одновременно играет роль барной стойки.




Визуализация гостиной.
В зоне отдыха разместили большой диван оливкового оттенка, напротив — стену с телевизором и натуральным камнем с подсветкой. Светильники и встроенная подсветка создают мягкое освещение, подчёркивающее фактуры. Лёгкие шторы и открытые полки делают интерьер более живым и практичным.
Мастер-спальня выполнена в спокойной палитре с акцентом на дерево и текстиль. В центре — большая кровать с мягким изголовьем и подвесными светильниками. Стена за изголовьем оформлена декоративными панелями с подсветкой.




Визуализация спальни.
Для хранения предусмотрен встроенный шкаф с тонированными стеклянными фасадами. Напротив кровати — зона с телевизором и консолью для декора. Панорамные окна наполняют спальню светом и делают её просторнее.
Комната оформлена в светлой гамме с пудровыми акцентами, подходящей для двух девочек. Кровати расположены параллельно, а между ними оставлено место для игр. У окна спроектирован длинный письменный стол на два рабочих места с отдельными стеллажами.




Визуализация детской комнаты.
Встроенные шкафы и открытые полки помогают поддерживать порядок. На стене использована лёгкая графика с природным мотивом, добавляющая интерьеру свежести. Пространство одинаково удобно и для учёбы, и для отдыха.
Основная ванная оформлена в белом мраморе с чёрными акцентами. Здесь Главная ванная выполнена в белом мраморе с чёрными деталями. Здесь есть подвесная тумба с круглой раковиной, стеклянная душевая с подсветкой и вместительные шкафы для хранения. Интерьер выглядит сдержанно и современно.



Визуализация душевой.
Детский санузел оформлен в светло-бежевой гамме с золотистой фурнитурой. Большое зеркало с подсветкой визуально увеличивает помещение, а ванна с прозрачной перегородкой добавляет лёгкости. Всё продумано для ежедневного комфорта.



Визуализация детской ванной.
Хозяйственный блок выделен в отдельную функциональную зону. Здесь предусмотрены встроенные шкафы, открытые полки и колонна со стиральной и сушильной машиной. Есть удобная поверхность для складывания белья и зона для глажки с полноценной гладильной доской. Всё расположено так, чтобы хранение и уход за вещами занимали минимум времени.




Визуализация хозблока.
Ремонт квартиры в ЖК «Russian Design District» в Москве построен на сочетании дерева, камня, декоративных панелей и тёмных акцентов. Такой подход позволил создать современное пространство с ярко выраженным характером и продуманными деталями.




Центральным акцентом кухни стал остров с каменной фактурой — он притягивает взгляд и задаёт динамику всему интерьеру. Этот приём делает проект запоминающимся и особенным.
👇 Запишитесь на бесплатную консультацию дизайнера, чтобы обсудить ваш проект и рассчитать его стоимость!
Дизайн-проект квартиры в ЖК «UNO Старокоптевский» в Москве выполнен в современном стиле с элементами минимализма и природных фактур. На площади 110 м² создано комфортное пространство для семьи с двумя детьми: спроектированы кухня-гостиная, мастер-спальня, детская, санузлы и хозяйственный блок. В основе концепции — дерево, камень и мягкая палитра, дополненные выразительными тёмными акцентами.
Дизайн интерьера квартиры в ЖК «UNO Старокоптевский», детская ванная с дизайнерскими элементами от студии Artum.
В Artum мы разрабатываем интерьеры, которые не теряют актуальности с годами. Мы проектируем пространство с учётом образа жизни семьи и возможных изменений, чтобы интерьер не устаревал, а жил и менялся вместе с вами. Посмотрите портфолио студии — уверена, вы найдёте идеи и для своего будущего проекта.
💫 Перепланировка квартиры в ЖК «UNO Старокоптевский»
💫 Интерьер прихожей
💫 Дизайн кухни-гостиной
💫 Дизайн-проект мастер-спальни
💫 Интерьер детской комнаты
💫 Дизайн интерьера санузлов
💫 Дизайн хозблока
💫 Особенности дизайна квартиры в ЖК «UNO Старокоптевский»
За счёт перепланировки удалось убрать лишние углы в прихожей и рационально использовать пространство. Стену перенесли так, чтобы увеличить хозяйственный блок и сделать к нему удобный вход прямо из кухни. Мастер-спальня получила отдельный санузел с душевой кабиной — теперь это полноценная приватная зона для родителей.


Планировочное решение до и после.
Между прихожей и гостиной установили раздвижные перегородки с рифлёным стеклом: они пропускают свет и при этом придают помещению приватность. В детской спланированы две кровати и общий письменный стол у окна, каждая девочка получила собственную систему хранения. В гостиной оставлено свободное место под новогоднюю ёлку, которое в остальное время украшает декоративное дерево.
Прихожая стала лёгкой и современной благодаря исправленной планировке. Главные акценты — панели под дерево и раздвижные перегородки с рифлёным стеклом, пропускающим свет из гостиной. Для удобства обустроена мягкая скамья с ящиками для хранения и нишей для верхней одежды.




Визуализация прихожей.
Встроенная подсветка и тёмные детали подчёркивают современный характер квартиры. Скрытые двери и ровные линии создают ощущение большего пространства. Прихожая стала своеобразной визитной карточкой квартиры, отражающей её стиль.
Кухня и гостиная объединены в единое пространство, где каждая зона плавно перетекает в другую.




Визуализация кухни.
Фасады кухни выполнены в глубоких тёмных оттенках с акцентом на текстуру дерева и камня, что создаёт атмосферу солидности. Центральным элементом стал остров с фактурой дикого камня, выполняющий функцию барной стойки.




Визуализация гостиной.
Большой диван оливкового оттенка формирует центр зоны отдыха, а стена с телевизором оформлена натуральным камнем с подсветкой. Подвесные светильники и встроенная подсветка добавляют мягкого света и подчёркивают фактуры. Лёгкие шторы и открытые полки делают пространство более живым и функциональным.
Спальня выдержана в спокойной палитре с акцентом на текстиль и дерево. В центре расположена большая кровать с мягким изголовьем и подвесными светильниками. Зона за изголовьем выделена декоративными панелями и подсветкой.




Визуализация спальни.
Встроенный шкаф с тонированными стеклянными дверцами обеспечивает хранение и подчёркивает современный стиль. Напротив кровати расположена консоль и телевизор, а панорамные окна делают комнату светлой и просторной.
Детская оформлена в молочных и пудровых тонах с акцентами, подходящими для двух девочек. Кровати расположены параллельно, что создаёт зону для игр между ними. У окна оборудован длинный письменный стол с двумя рабочими местами и стеллажами.




Визуализация детской комнаты.
Встроенные шкафы и полки позволяют держать вещи в порядке, а на одной из стен использован светлый рисунок с природным мотивом, добавляющий лёгкости. Комната подходит и для игр, и для учёбы, и для отдыха.
Основная ванная оформлена в белом мраморе с чёрными акцентами. Здесь установлена подвесная тумба с круглой раковиной, стеклянная душевая кабина с подсветкой и вместительные шкафы для хранения. Атмосфера сдержанная и приватная.



Визуализация душевой.
Детская ванная выполнена в бежевых оттенках с золотистой фурнитурой. Большое зеркало с подсветкой визуально расширяет пространство, а ванна с прозрачной перегородкой делает интерьер лёгким и удобным для повседневного использования.



Визуализация детской ванной.
Хозяйственный блок стал отдельной функциональной зоной для хранения бытовой химии, белья и техники. Стиральная и сушильная машины установлены в колонну. Есть место для корзин, полки для хранения, поверхность для складывания белья и полноценная зона для глажки. Всё продумано так, чтобы пространство было максимально удобным.




Визуализация хозблока.
Ремонт квартиры в ЖК «UNO Старокоптевский» в Москве выполнен с акцентом на дерево, камень, декоративные панели и тёмные акценты. Такой подход позволил создать современное пространство с выразительным характером и продуманными деталями.




В кухне главным акцентом стал остров с фактурой камня — он сразу притягивает внимание и задаёт динамику интерьеру. Этот приём делает проект запоминающимся и добавляет ему индивидуальности.
👇 Запишитесь на бесплатную консультацию дизайнера, чтобы обсудить ваш проект и рассчитать его стоимость!
Дизайн-проект квартиры в ЖК «Миръ» в Санкт-Петербурге был создан для молодой заказчицы. Площадь квартиры — 115 м², стиль — современная классика с минималистичными приёмами, спокойной палитрой и натуральными материалами. Основные пожелания включали продуманную систему хранения, просторную кухню-гостиную с большим столом, мастер-зону с душевой и отдельную комнату для гостей.
В Artum мы создаём интерьеры, в которых важен не только внешний облик, но и удобство повседневного использования. Загляните в портфолио — там видно, как запросы клиентов превращаются в выстроенные и цельные решения.
✅ Перепланировка квартиры в ЖК «Миръ»
✅ Дизайн прихожей
✅ Интерьер кухни-гостиной
✅ Дизайн мастер-спальни
✅ Интерьер душевой в мастер-зоне
✅ Дизайн интерьера гостевой комнаты
✅ Дизайн ванной комнаты
✅ Особенности дизайна квартиры в ЖК «Миръ»
Глобальных изменений в несущих конструкциях не потребовалось, однако планировка была скорректирована под нужды заказчицы. Кухню объединили с гостиной, а лоджию включили в общую композицию за счёт барной зоны и дополнительных мест хранения. Благодаря этому пространство стало более открытым и функциональным.
В квартире организованы два санузла: приватный при спальне и гостевой. При входе оборудована гардеробная, а во всех жилых комнатах — вместительные шкафы. Общая структура включает кухню-гостиную, спальню, гостевую, два санузла и лоджию, которая теперь работает как полноценная часть квартиры.
Прихожая выполнена в светлых оттенках с акцентом на прямые линии и встроенное освещение. Здесь предусмотрен вместительный гардеробный блок, зеркало в полный рост и скрытые двери.




Визуализация прихожей.
Тонкие декоративные элементы — молдинги и латунные акценты — создают глубину. Интерьер выглядит строго и собранно, а каждая деталь решает функциональную задачу.
Кухня выдержана в спокойной гамме: нижние фасады — матовые, верхний ярус — панели под дерево. Остров и большой обеденный стол рассчитаны на комфортное размещение семьи и гостей. Лоджия стала частью кухни за счёт барной стойки и дополнительной поверхности у окна.




Визуализация кухни-гостиной.
Гостиная организована рядом с кухней, но воспринимается как самостоятельное пространство. ТВ-зона с биокамином, мягкий диван и декоративные панели создают акцент. В отделке использованы штукатурка, 3D-панели и световые линии, формирующие атмосферу.
Мастер-спальня оформлена в пастельной гамме с акцентом на вертикаль и мягкий текстиль. Изголовье выделено декоративной панелью с подсветкой, по бокам — подвесные тумбы и светильники.




Визуализация спальни.
У окна расположена консоль, которую можно использовать как рабочее место или туалетный столик. Встроенный шкаф закрывает всю стену и не нарушает симметрию. Из спальни есть прямой выход в санузел.
Душевая оборудована в отдельном блоке с перегородкой, что позволило разместить и сиденье, и встроенные ниши для хранения. В отделке использован керамогранит с каменной текстурой, подсветка встроена в ниши.




Визуализация душевой.
Система верхнего душа и скрытый трап завершают современное исполнение. Все инженерные элементы аккуратно скрыты, чтобы сохранить чистый вид.
Гостевая совмещает функции кабинета и дополнительной спальни. Здесь разместили раскладной диван, встроенные шкафы и рабочее место у окна.




Визуализация гостевой комнаты.
Цветовая гамма поддерживает общую стилистику квартиры: светлые тона, дерево, спокойные акценты. Продуманное освещение позволяет использовать комнату как для работы, так и для отдыха.
Ванная организована как полноценное пространство для ежедневного использования. Стиральная и сушильная машины встроены в шкаф-колонну. Основной материал отделки — керамогранит под мрамор, что создаёт эффект цельности.




Визуализация ванной комнаты.
Ванна совмещена с душем, встроенные ниши позволяют хранить все необходимое. Зеркало с подсветкой и подвесная тумба под раковину завершают композицию.
Ремонт квартиры в ЖК «Миръ» в Санкт-Петербурге стал примером грамотного распределения функций и использования лоджии как части жилого пространства. Все зоны организованы логично, с акцентом на практичность и спокойную эстетику. Светлая палитра, встроенные системы хранения и зеркала визуально расширяют квартиру.


Изюминкой проекта стала лоджия, где появилась барная столешница и зелёные акценты — именно такое место заказчица представляла для утреннего кофе и отдыха вечером.
👉 Получите бесплатную консультацию дизайнера и узнайте стоимость вашего проекта.