Заказчики то всегда молодцы
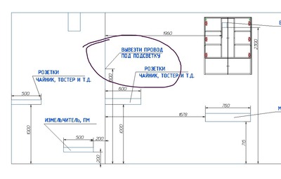
Приехали на монтаж кухни. Первичный осмотр показал что розеток явно не хватает на всю планируемую технику. Заказчик предложил поставить тройники. Окей. Откручиваю розетки и вижу проводочки на 1,5 квадрата. А он туда и варку электрическую и духовку и пмм и вытяжку хочет. Ну не бум бум в электрике человек. Бывает. Ничего страшного. Объяснили что так делать нельзя и нужно электрику "перетягивать". А раз вмешательство в проект застройщика предстоит так и так серьезное, специально на стене нарисовал куда ставить розетки. И даже подписал куда какие, а где просто кабель прокинуть. С точностью до сантиметра, болин. Ну мало ли, заказчик не так поймет или ещё что. Ну ошибиться невозможно.
Проходит пара недель, звонит заказчик, говорит что все сделано. Едем на монтаж в освободившееся окно. Электрику сделали, проштробили/замазали. Вот только сколько розеток установлено там, где я нарисовал? Прааавильно. Ноль. Почему? А патамушта электрик сказал что так лучше (чеж, он, сука, тебе кухню не смонтировал, раз знает как лучше) и две розетки запихнул ровно за пмм, а одну за духовкой. Это при том что ноги 150мм. Там розеток в два ряда можно поставить. Но нет, они же лучше знают. И весь альтруизм из прошлого поста куда то испарился. И за перенос розеток взяли и за штробление и за клеммы...
И кто то сейчас скажет, мол не виноват клиент. Не разбирается. А я считаю что виноват. Если у тебя, блть, на стене нарисовано куда надо розетки ставить, будь добр поставить именно туда. А особо умного электрика имей яйца на хер послать. А если никак, то вперед, можешь заплатить за двойную работу.


