Планировки загородных домов без коридоров. Преимущества и недостатки перед коридорными планировками. Удачные планировки с коридором и без
Привет, на связи Сергей, Fin.House
По следам общения с заказчиком решил накидать небольшую статью по двум концепциям планировок, с коридорами и без. Концепций на самом деле много больше, но наиболее распространенные у нас все же 2 этих типа.
В рассматриваемых примерах небольшие загородные дома прямоугольного формфактора с площадью до 130 м2., которые условно можно назвать «коридорные» и планировки без коридора, или с совсем небольшими холлами.
У обоих концепцией есть свои плюсы и минусы, да и в целом, большая часть планировочных решений содержат в себе те или иные компромиссы, особенно если дом не очень большой и бюджет не предполагает возможности совместить все самые «идеальные» решения.
Важно понимать, что рассматриваемые планировки — это планировки именно загородных домов. Эти дома, как правило, являются второй недвижимостью, когда у владельца уже есть городская (основная) недвижимость, а загородный дом может использоваться не для постоянного проживания (хотя и для этих целей тоже), а как дом выходного дня, провести каникулы итд.
Для дОма условной «субурбанизации» могут быть повышенные требования по доп помещениям, больше мест хранения, кладовые, иногда гараж итд.
Для загородного же дома часто больше внимания уделяется именно жилому пространству с преобладанием больших гостиных, совмещенных с кухней, не большие при этом площади спален и обязательное наличии в доме веранды, но часто мало внимания уделяется подсобным помещениям. В общем всему, что увеличивает комфорт отдыха за городом. Условно такие дома можно назвать «квартирой на земле».
Итак, минусы и плюсы таких планировок, а также аргументы в пользу той или иной компоновки дома покажем на небольших домах с тремя-четырьмя спальнями.
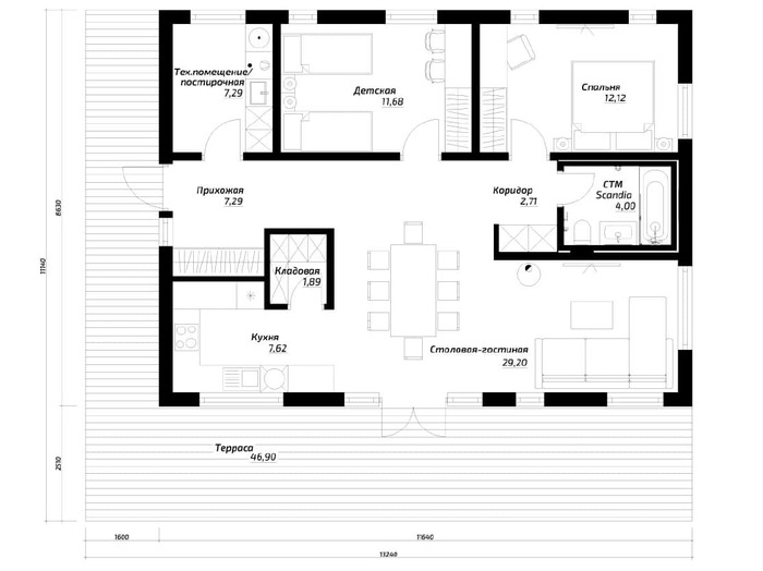
Коридорная планировка
Проект Оматало Комфорт с мастер-спальней, полезной площадью 109 м2
«Коридорная» планировка, как в общем понятно из названия, это решение, где часть полезной площади занимает коридор/холл.
Не всегда коридор или холл — это бесполезное пространство, часто это неотъемлемый элемент, и главная задача архитектора сделать его небольшим и при этом функциональным.
В данном примере коридор площадью 8,2 м2 несет в себе несколько важных функций. Основное назначение — это разделение приватной части дома (в особенности мастер-спальни) от общественного пространства кухни-гостиной. Это комфортно, когда хочется уединения, а засидевшиеся гости или члены семьи при этом могут проводить время в гостиной.
Еще одно назначение это коммуникация трафика в спальни, ванные комнаты, гостиную.
Также в таких пространствах можно выделить место для хранения и устроить встроенный шкафы или кладовые.
По сравнению с плюсами данной планировки, минусом таких компоновок является недостаточная освещенность этого пространства, и, пожалуй, наверное, и всё. Площадь коридора в данном случае занимает менее 8% от площади всего дома, что в общем вполне приемлемо.
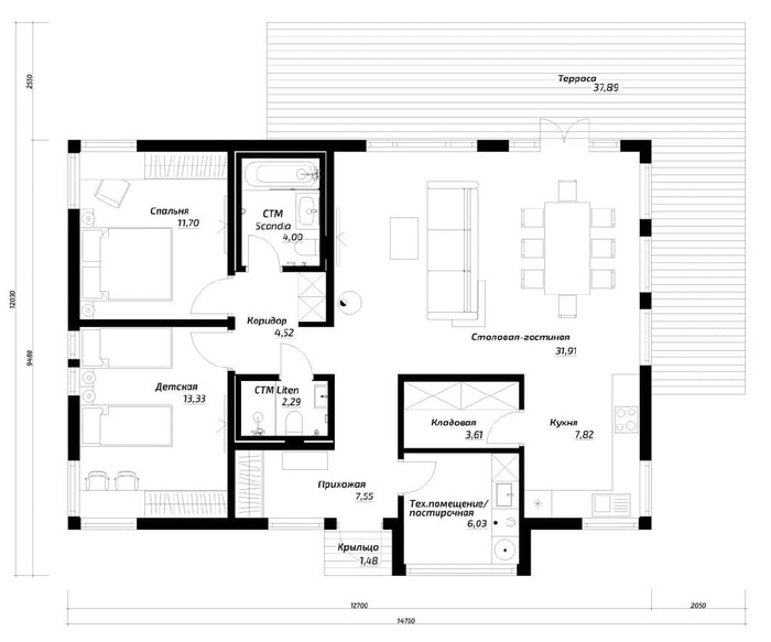
Бескоридорные планировки
Проект Форсса 136 площадью, 4 спальни
Классический пример с компоновкой гостиной-кухни по центру дома. Это как раз позволяет по максимуму использовать полезную внутреннюю площадь без коридоров. Увеличение полезной площади может показаться значительным плюсом, но у таких планировок есть свои особенности, на которые нужно обратить внимание.
Первая отличительная черта многих таких планировок — это выход всех спален непосредственно в пространство гостиной. Сами по себе такие дома достаточно комфортны, но ввиду того, что слабым элементом в плане шумоизоляции является дверь, это может вносить некоторые неудобства, связанные с этим фактором.
Кроме этого не всегда обилие дверей бывает эргономично и красиво реализовано в плане дизайна. Отсутствие разделения на общественную и приватную часть дома в данных планировках является самым слабым местом. Для многих это решающий фактор для отказа от таких планировок.
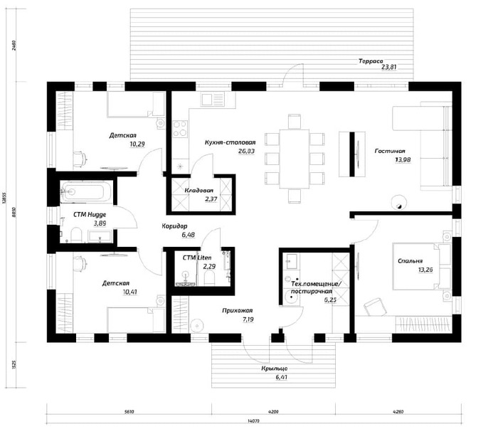
Промежуточный вариант
Проект Форсса 103 с тремя спальнями, площадью 108 м2
Промежуточным вариантом с сохранением центрального расположения гостиной, и на самом деле хорошим компромиссным решением являются планировки, которые имеют «буферные» зоны в виде небольших холлов, которые отделяют спальни от гостиной.
При всех сохраняемых плюсах такой компоновки в этих планировочных решениях значительно улучшается приватность спален. Также в холлах можно разместить скрытый из гостиной входы в санузлы и ванные комнаты.
Пример для трехкомнатного дома площадью 108м2 с разделением спален от кухни-гостиной небольшими холлами.
Пример апгрейда предыдущей планировки с увеличением площади до 123 м2.
Тут тоже три спальни, одна из которых мастер-спальня. В этом доме, за счет его бОльшей площади приватность спален обеспечена лучше. Кроме этого наличие мастер-спальни делает его еще более комфортным.
Проект Форсса 118 с тремя спальнями площадью 123 м2. Одна из спален мастер-спальня
Самый главный вопрос, как выбрать наиболее удобную планировку для себя, и почему вообще об этом стоит задуматься заранее.
Многое если не все при выборе дома и планировки зависит от участка. Для прямоугольных вытянутых по длине участков лучше подойдут и вытянутые по длине дома с верандой на короткой стороне дома, обращенной вглубь участка. Пример такого дома в первой планировке.
Для участков, вытянутых по ширине, соответственно, лучше подойдут дома с расположением веранды по широкой стороне дома, а как правило это проще всего реализовывается в компоновках домов с кухней-гостиной по центру дома, т.е. по центру широкой стороны дома.
Вот еще один из вариантов планировки, где гостиная располагается по широкой стороне дома
При этом в одном варианте это упрощенная версия - прямоугольный дом, другой вариант, это дом со вторым светом для видовых участков. В общем вариантов, как и факторов влияющих на планировку может быть множество и их необходимо учитывать.
Участок - это, конечно, всего лишь один из аргументов для выбора компоновки и планировочных решений. Всегда стоит обращать внимание на инсоляцию, на расположение по сторонам света, обязательно учитывать расположение въездных групп, хоз. построек и внешних коммуникаций. Часто есть видовые стороны участка, на которые лучше ориентировать дом. Факторов, которые могут так или иначе влиять на планировку очень много, и все их лучше учитывать до того, как вы окончательно определились с домом.
Бонусом несколько планировок норвежского завода Скандик Констракшн (Scandic Construction)
Тут как раз представлены и коридорные варианты, и вариант где коридор является частью гостиной принимая на себя трафик из комнаты в комнату, и варианты промежуточные, когда маленькие холлы помогают зонировать приватную и общественную часть дома.
Я к выбору планировки и всем сопутствующим вопросам отношусь очень внимательно и архитектор всегда скрупулезно выясняет все факторы, которые могут повлиять на оптимальное расположение дома на участке. Именно по этой причине даже типовые дома всегда в итоге получаются немного отличными друг от друга и всегда дорабатываются нами непосредственно под условия конкретного участка и с учетом пожеланий будущих владельцев дома, для достижения наиболее удачных решений как по планировкам, так и по расположению дома на участке.
Будем рады вашим вопросом или комментариям.
А если кому интересно, вот мой ТГ канал

















