Образец и (подражание) | Часть 2
Привет всем, подписавшимся на меня из-за моего последнего поста и просто любителям архитектуры. Сегодня продолжаю мою серию постов и речь пойдет об индивидуальном жилом строительстве односемейного дома, мы рассмотрим несколько линий развития современной архитектуры, а также их основоположников и то, как их идеи нашли свое отражение в архитектуре различного времени.
Прошу не рассматривать пост как указание, как и что должен делать архитектор, это скорее некий призыв поразмышлять об архитектуре.
Один из директоров школы Баухауса Ханнес Майер сказал: «Строительство – это больше не искусство, это наука, а архитектура – это наука строительства». Своими словами он подчеркивал, что архитектура стала рациональной, это больше не выражение каких-либо чувств, а скорей хорошо продуманная организованность действий.
Если вы попросите ребенка нарисовать дом, то скорее всего получите нечто подобное: симметричный, с упорядоченными окнами и классической крышей – символ того, что есть дом.
Важно сказать, что архитектура жилого строительства часто не «серийна», а очень индивидуальна. Здесь особенно сильны социальные тенденции и влияния моды, благодаря непосредственным взаимоотношениям заказчика и архитектора. Отмечу, что здесь речь идет не о типовом «массовом» строительстве. Но несмотря на то, что даже в таких нетиповых проектах часто присутствуют некоторые клише, они в большей своей части являются уникальными идеями и мыслями. Пожалуй, можно сказать – в индивидуальном жилом строительстве не существует идеального решения, что мы сегодня и рассмотрим на примерах различного пространственного восприятия.
Для начала обратимся к немецкому архитектору Паулю Шмиттхеннеру (1884-1972), он рассуждал о том, что в общем-то названия помещений на планах этажей не требуются. Хозяйственные помещения, ванные комнаты и прочие подобные помещения определены однозначно, а все остальные должны быть просто достаточно велики для проживания и различного использования.
«Само собой разумеется, что помещение, расположенное вблизи кухни, рационально использовать в качестве столовой, а помещения вблизи ванной комнаты как спальни. Однако это не обязательно, что данные помещения, при всех тонкостях и обстоятельствах, могут использоваться только для проживания, сна или приема пищи.
Я хочу этим сказать, что нужно держать себя в границах разумного и не слишком много об этом думать. Иначе очень легко оказываются у «функционального» и жилых машин*. Дом для людей – это не машина, от которой постоянно требуют ровного хода, дом предназначен для жизни, которая, в свою очередь, разнообразна и переменчива, в чем и заключается её красота и смысл» (Цитата из книги «Das deutsche Wohnhaus» - «Немецкий жилой дом», здесь и далее свободный перевод с немецкого – тс)
*Отсылка к понятию «жилой машины» сформулированному архитектором Ле Корбюзье.
Эти идеи Шмиттхеннер отразил в своих проектах, как например, дом на склоне – Haus am Steilhang в городе Штутгарт. Четкая и ясная, завершенная форма здания и планов, квадратная или прямоугольная форма помещений, симметрия, простые формы для окон, которые часто начинаются от пола. Кладочная конструкция стен очень сильно отражается на общей форме и внешнем виде здания. Примерно одинаковый размер помещений позволяет использовать каждое из них для различных назначений. Планы этажей, по его мнению, должны быть максимально простыми, чтобы все важное само бросалось в глаза. Чем меньше дом, тем «просторнее» нужно его планировать, размер помещений должен быть максимально возможным. «Большой дом выглядит мелочно, если он мелочно задуман»
Давайте теперь обратимся к другому известному архитектору того же времени – Фрэнку Ллойду Райту (1867-1959). Сразу можно заметить, как разительно отличается пространственное восприятие его проектов от проектов предыдущего архитектора. Можно, разумеется, аргументировать тем, что это другая местность (Америка), другой континент, другие условия жизни и прочее. Но давайте сравним и разберемся, что же здесь иначе.
Здание Highland Park (1901) выглядит как бы «присевшим», двухэтажное, но с почти плоской крышей, уединенно стоящее, оно вписано в окружающий его ландшафт. Переход между «снаружи» и «внутри» выделен как особая тема – отсутствует это четкое разделение, которое мы могли видеть в предыдущем проекте. Крестообразный план этажа, как бы утопленный второй этаж, опоры колонн, навесы кровли играют в этом переходе важную роль. Можно легко заметить влияние японской архитектуры. Монолитная стена разделена растром окон, деревянных колонн, и не создает впечатление массивной стены, она как бы растворяется.
Этот эффект заметен не только на фасадах, но и во внутренних помещениях. Этот растр мы видим на потолке, стенах внутри здания. Архитектор не оставляет жильцам практически никакой возможности расставить свои акценты или как-либо повлиять на уже заложенную им идею. Можно заметить так же небольшую высоту помещений в этом и многих других проектах этого архитектора, это объясняется тем, что рост Райта был около 1,60 м. Еще одной особенностью здесь является то, что входы в помещение расположены не центрально, первое восприятие помещений – диагональное.
Ниже еще два его проекта, в которых можно проследить те же принципы. Small House 1901 и Bradley House 1910
Школа Баухаус, её идеи и методы оказали свое влияние на архитекторов, дизайнеров и деятелей искусства по всему миру, и продолжают оказывать до сих пор. В 2019 году школа отпраздновала свое столетие, она является как бы олицетворением свободы, новых идей развития современной архитектуры и искусства. Одним из представителей этой школы, а также одним из значимых архитекторов XX века, является французский архитектор швейцарского происхождения Ле Корбюзье (1887-1965)
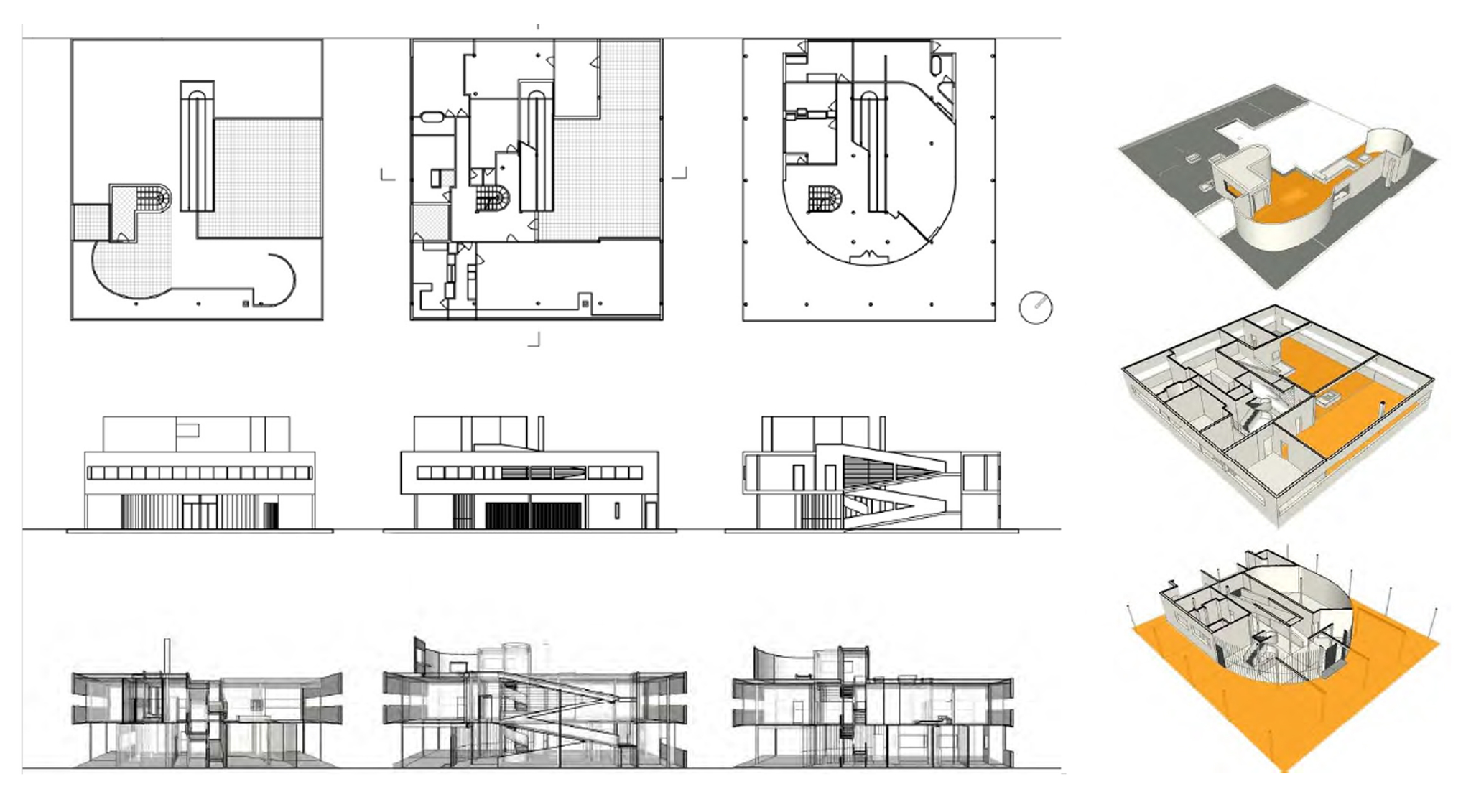
Его знаменитый проект Villa Savoye 1929 знакома, наверное, каждому студенту архитектуры. Это здание относится к одному из наиболее изученных и проанализированных архитектурных строений в мире. Построена как жилой дом, но практически не использована для этой цели, сейчас вилла скрывает в себе музей. В этом проекте можно найти и пять принципов новой архитектуры сформулированные Ле Корбюзье: сквозные колонны, озеленение крыши, свободная планировка, горизонтальная лента окон и свободный фасад.
Вход в здание и проход через него осуществляется по сквозной рампе, протянувшейся через все здание до верхнего этажа или более быстрым путем – по лестнице. Рампа расположена в центре помещения, это абсолютно новое восприятие помещения – помещение как бы раскрывается в процессе движения, лестница же, в свою очередь, является неким скульптурным элементом и короткой дорогой. Радиусы скругления первого этажа спланированы из расчета кривых для въезда и выезда автомобиля в/из гараж(а).
Следующий проект этого архитектора, расположенный в городе Штутгарт в выставочном поселке Weißenhofsiedlung. Проект задумывался как серийный – Тип Citrohan, он намного меньше, но здесь так же отчетливо просматриваются те же самые принципы – сквозная лестница, каркас, зеленая крыша, колонны. Название является отсылкой к известной марке машин, которая в то время символизировала прогресс, моду, и была в свою очередь серийным продуктом по «доступной» цене. И хотя проект в течении порядка 10 лет был построен в различных вариантах, он так и не стал серийным, что возможно говорит нам о том, что это его нельзя назвать идеальным решением в архитектуре жилых зданий.
Еще одним ярким представителем школы Баухаус являлся немецкий архитектор Мис ван дер Роэ (1886-1969). И хотя он и Ле Корбюзье были представителяими одного архитектурного движения, пространственное восприятие в его проектах все же несколько отличается. Ключевой идееей здесь является открытый план этажа и концепция всего пространстваю Для такого плана характерны плавные переходы между соседними помещениями. Отдельным жилым зонам не отводятся отдельные комнаты, но их можно разделить, например, с помощью прозрачных или полузакрытых перегородок, это позволяет увеличить пространство жилого помещения.
Зигфрид Гидеон, архитектурный историк и теоретик, активный защитник соверменного движения писал о проектах Мис ван дер Рое, что он «достигает невообразимой щедрости во внутренних планровках. И все же комнаты, перетекающие одна в другую не могут избавить от ощущения пребывания в аквариуме. Внешний облик не соответствует свободе внутренних пространств»
Проект Мис ван дер Роэ Haus Tugendhat (1929-1930), возведенный для еврейской семьи, в котором им не довелось долго пожить из-за наступившей войны. В послевоенный период дом был перобородован в детскую клинику, а после объединения Германии стал музеем.
Здание располагается на склоне и раскрывается в сторону сада, а с улицы неприметен. Вход предусмотрен с верхнего уровня, на котором расположен гараж и помещения шофера. На нижнем этаже связанным с верхнем лестницей расположены два спальных тракта – для детей и для взрослых и большое общее помещение, расчлененное на различные области – столовая с большим столом, который можно трансформировать до «семейного» размера, гостиная, библиотека с потайным сейфом. Большие окна со стороны фасада оснащены механизмом опускания, позволяющим сидеть на «террасе», не выходя из дома.
Внутренне разделение зон осуществляется посредством перегородок, в том числе радиальных, во всем интерьере применяются высококачественные материалы – природный камень, дерево, сталь. В заглубленной подземной части со стороны улицы расположены технические помещения, а в правой части (на плане) – помещения для прислуги, с отдельным входом.
Интересно заметить, что Мис ван дер Роэ на протяжении всей своей карьеры создавал проекты с аболютно теми же принципами, не изменяя, а только совершенствуя их – «не обязательно каждый понедельник изобретать новую архитектуру». На изображении ниже Farnsworth Haus (1949-1951). Проект был бы абсолютно не пригоден для проживания, если бы у его владелицы не было достаточно средств, чтобы разбить парк вокруг дома, тем не менее архитектурной задумкой и тем, как здание вписано в ландшафт можно только восхищаться.
Стоит заметить, что рассмотренные выше проекты были построены примерно в одно время, и архитекторы их спроектировавшие тогда были еще никому особо не известны, а сейчас являются иконами архитектуры.
К сожалению, мой пост оказался слишком длинным, мы рассмотрели только некоторые образцы и еще около 10 «блоков» подражания не влезло. Вероятно, придется оформить его дополнительным постом, а сегодня всем спасибо за внимания и всего доброго.

















Архитектура и дизайн интерьера
2.2K постов6.1K подписчиков
Правила сообщества
В сообществе запрещается всё то, что запрещено правилами сайта :) Архитектурные проекты принимаются к публикации только при наличии:
-имени проекта (если имеется)
-имени архитектора
-места строительства (предполагаемого/фактического)