38

Выполненный заказ: "Вентиляционная решётка"

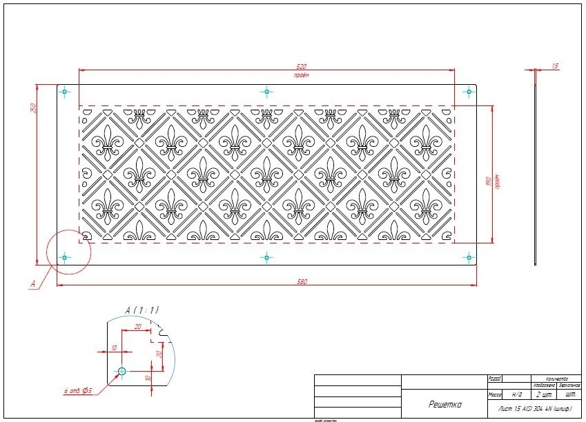
По фото узора и замéрам проёма были сделаны 3D-модель, чертёж и файлы лазерной резки для изготовления изделия:

Готовое изделие:

Наша группа в ВК: vk.com/3dnaa4

Заявку на создание 3D-моделей и чертежей можно оставить по ссылке: vk.me/3dnaa4

3D на A4

7 постов35 подписчиков