Проект важный, но исключительно в учебных целях, для изучения кинематических операций и 3d эскизов в inventorе.
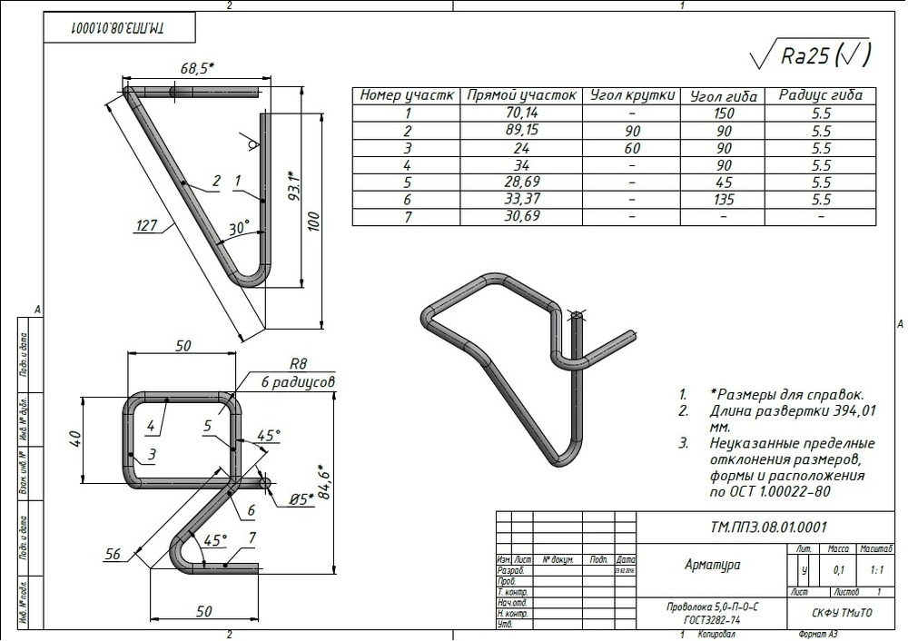
1. Рабочие размеры 40 и 50. Как вы будете их обмерять? Не легче ли на виде сверху проставить по внутренней поверхности.
2. Габаритные размеры где ?
3. d5 (арматуры) - тоже размер для справок.
4. R8 - 6 радиусов, а в ТТ вы указываете радиусы гиба = 5,5. Чему верить ?
5. А разве так оформляется таблица исполнений ? Здесь каждому переменному размеру присваивается своя буква (L, L1, L2), которые проставляются на главном виде и виде сверху, а в таблице записываются переменные данные (в т.ч. и масса). (см. ГОСТ 2.100)
6. Зачем вам такие рабочие размеры (до 2 знаков после запятой) ?
7. Неужели такие точности нужны для такой детали ? 13 Квалитет ? (ну хз. может это космическая промышленность).
8. На d5 - проставить необработку, а в правом верхнем углу поставить "остальные" - Ra25 (простая обрубка).
9. Общая длина арматуры неплохо бы указать.
10. По оформлению тоже нюансы (продублированы размеры на виде сверху, странные полки с размерами)
Предложите сделать студентам нарисовать пружины сжатия, растяжения, с зацепами и т.д.
Сам работаю в NX, могу модельки подкинуть :)
Внес некоторые изменения. Сразу поясню что размеры между осями мне необходимы для моделирования траектории. Считаю что размеры использованные при построении модели должны быть такими же как на чертеже, за исключением справочных. А вот размеры в модели и вообще траектория мной может быть построена в корне неверно. В любом случае разные комплекты размеров при оптимизации конструкции вносят путанницу + одинаковые переменные дают возможность привязаться к модели при проектировании техпроцессов. Хотя может быть я глубоко заблуждаюсь.
1. Рабочие размеры 40 и 50. Как вы будете их обмерять? Не легче ли на виде сверху проставить по внутренней поверхности.
2. Габаритные размеры где ?
3. d5 (арматуры) - тоже размер для справок.
4. R8 - 6 радиусов, а в ТТ вы указываете радиусы гиба = 5,5. Чему верить ?
5. А разве так оформляется таблица исполнений ? Здесь каждому переменному размеру присваивается своя буква (L, L1, L2), которые проставляются на главном виде и виде сверху, а в таблице записываются переменные данные (в т.ч. и масса). (см. ГОСТ 2.100)
6. Зачем вам такие рабочие размеры (до 2 знаков после запятой) ?
7. Неужели такие точности нужны для такой детали ? 13 Квалитет ? (ну хз. может это космическая промышленность).
8. На d5 - проставить необработку, а в правом верхнем углу поставить "остальные" - Ra25 (простая обрубка).
9. Общая длина арматуры неплохо бы указать.
10. По оформлению тоже нюансы (продублированы размеры на виде сверху, странные полки с размерами)
Предложите сделать студентам нарисовать пружины сжатия, растяжения, с зацепами и т.д.
Сам работаю в NX, могу модельки подкинуть :)
Подкиньте, буду благодарен. Тут нет таблицы исполнений, эта таблица для настроек гибочного станка, опять же радиус гиба это для станка.
Изометрию лучше дать, развернув ее вокруг вертикальной оси на 180 град. Мозги можно сломать, совмещая изометрию с видами.
Лучше дать третий вид - деталь сложная.
Большинство советов в других комментариях по делу, без исправлений в производство не годится.
я исключительно с практической точки зрения) в реальности такую икебану ни один ГИП в КМД не допустит
если чисто для того, чтобы студиозусы запарились рисовать, то вполне годно)
Да исключительно для студентов. Вместо арматуры может быть трубка тормозной системы автомобиля и много еще разных приложения, а так да интерес только академический.
На любом более или менее крупном производстве есть отдел технического контроля. Тетушки в халатах озадаченно склонятся над изготовленной деталькой в попытке найти размер 100 и 127,01. Возможно, вызовут мастера.
Для работоспособности изделия нужно указывать фактические габаритные размеры детали. Они как раз справочные, по всей видимости, фик знает как эта шайтан-машина погнет.
(какие справочные - прямых участков или габариты - вопрос к ЧПУшникам которым полагается эту штуку делать. Хотя бы в теории.)
разве что для студентов такое подойдет..на стройке монтажники сразу нахер пошлют с таким)
а при чем здесь монтажник? максимум кто сможет ругаться это технолог которому изготавливать.
Точность до 0,01мм? Обмерные размеры должны проставляться по габаритам, а не по осям прутка.
Из всего скопа просмотренных чертежей везде фигурируют сотки, насколько я понял для станка с ЧПУ данная задача не критична.
Нумерация участков в таблице соотносится с чертежом только после анализа. Может быть так можно, проволоку не выпускал.
Размеры прямых участков - для справок - ОТК будет все измерять по мнимым точкам?
Закрашивать жеж не надо? Чертеж, а не рисунок.
Радиус на чертеже - 8, в таблице - 5.5. Я проглядел что-то?
З.Ы. Я не нормоконтролер, но чертежей повыпускал.
З.З.Ы. - написал и увидел дельный совет. в ТТ поставить допуска на все размеры, сотки точно выкинуть. Какие допуска зависит от станка. Думаю, не выше 14 квалитета.
Вот с размерами тут есть небольшая проблема. Размеры прямолинейных участков задаются для гибочного станка с ЧПУ, для работоспособности изделия важны как мне кажется размеры между осями, так как они важны для конструктора, например, если это будет не арматура а трубопровод. Внятных ответов на вопрос какие ставить в инете не нашел.
Доброго времени суток. Уважаемые пикабушники требуется конструктивная критика по чертежу пространственной арматуры. Если кто-то работает в данной сфере то не могли бы Вы поделиться рабочими чертежами аналогичных изделий. Необходимо для создания заданий для студентов при изучении 3D эскизов в системе Inventor/
