Скачайте с яндекс диска рабочий проект одноэтажного кирпичного дома площадью 82кв.м
Добрый день! Сегодня вашему вниманию рабочий проект одноэтажного дома со стенами из газоблока. Скачайте с яндекс диска по ссылке - https://disk.yandex.ru/d/48_CgDouInE5_Q
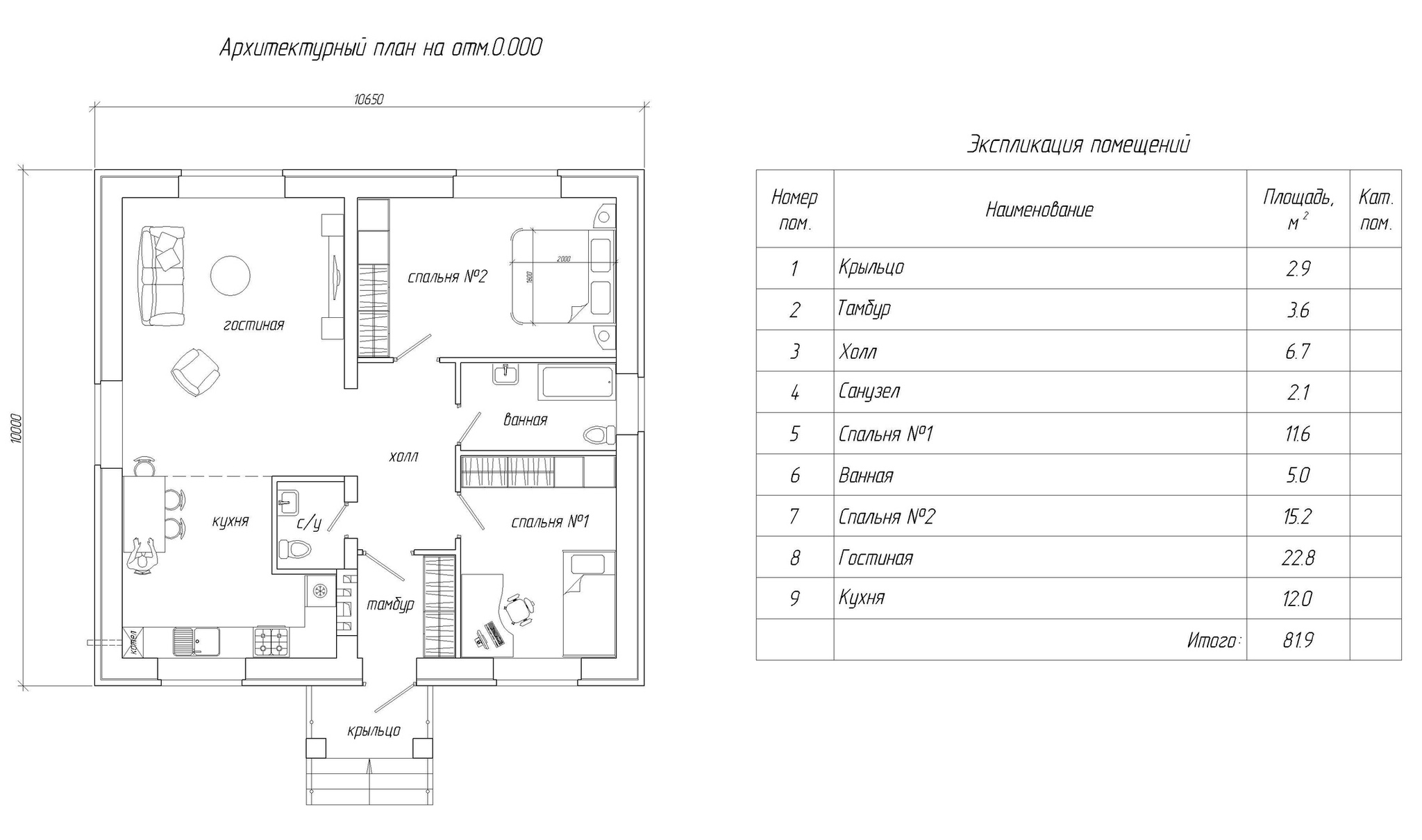
Входная группа дома встречает крыльцом под навесом на двух кирпичных столбах. Далее переходим в тамбур - прихожую, где одновременно смогут переодеться все члены семьи. И далее переходим в просторный холл, через который осуществляется функциональная связь помещений в доме. Рядом с тамбуром расположился санузел а напротив находится первая спальня. Далее идет дверь в ванную и вторую спальную комнаты. В левом крыле здания расположились гостиная и кухня.
Далее смотрите рендеры фасадов






Проектная мастерская №16
63 поста1.3K подписчиков