Инженер спалился. Или не инженер.
Многие молодые люди не отождествляют обязанности инженера и умение считать.
Довольно странным образом это находит своё отображение в проектах малоэтажной застройки.
Почему так происходит, что случайные люди приходят в эту специальность?
Сколько будет продолжаться этот бепредел?
Попробуем ответить на этот извечный вопрос. Весёлых историй будет мало. Только грустные.
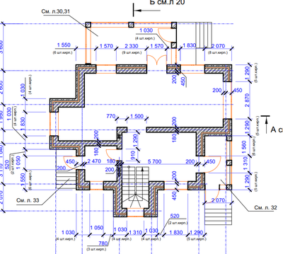
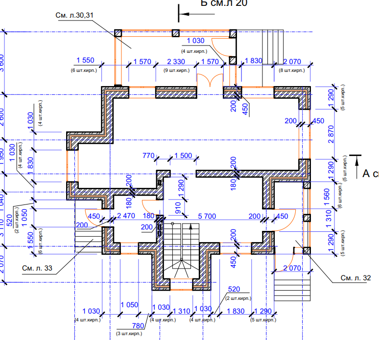
Вот планчики 1 и 2 этажей одного прикольного домика.
Сбросили мне это для предварительного суждения. Ну и фасад до кучи.
Какого то лешего на плане 1 этажа указан расход материалов. Чудеса инженерии.
Ладно. Вдруг сейчас это модно. Допустим. А давайте просто прикинем правомерность. За это ведь по рукам не ударят.
О. К. 10,5*13 в осях. Посмотрим примерно сколько облицовочного кирпича уйдёт.
Высота до конька 6,3 метра.
Площадь облицовки стен 1 этажа: (10,5+0,9)*3+(13+0,9)*3=76 м2.
Площадь облицовки стен 2 этажа: (10,5+0,9)3,3+(11+0,9)*3,3=75 м2.
В сумме брутто (с окнами) площадь облицовки 151 м2.
Но на окнах есть откосы. Они идут в плюс.
Колонны по терасе, крыльцам. Тоже в плюс.
Ну и дымоходы на кровле.
Посчитаем сколько мы отнимаем окон и дверей 1 этажа и добавим откосов:
(1,5+1,87+2,87+1,83+1,05+1,83)*1,7+(1,5+1,31+1,05)*2,1=27,6 м2
Откосы: (1,7*2*6 штук+2,1*2*3 штуки)*0,25=8,25 м2
Окна 2 этажа:(1,05+1,5+1,87+2,87+1,83)*1,8=13 м2+лестничное 1,3*4,5=5,8 м2
Откосы: (1,8*2*5+4,5*2)*0,25=6,7 м2.
Колонны: 8 штук*4*40=1280 штук
Дымоходы: (0,5+1)*2*3*1,5 метра=13,5 м2
Итого: (151-27,6+8,25-18,8+6,7+13,5)*50 шт/м2+1280 штук=7932 штуки. Возьмём на обрезь демократичные 3%. В сумме 8170 штук условного.
Смотрим у проектировщика
Выходит лишнего в смете 2500 штук. Какая щедрость со стороны проектиощика.
При цене 40 рублей за штуку это 100 000 рублей лишнего, который по номиналу никогда не продашь. Шикарно.
А что с забутовкой? Аж 41 300 штук. Да он просто гений.
Учитывая, что бутовка наружных стен легко вычисляется помножением облицовочного кирпича в 3 раза, то его количество именно на наружные стены толщиной 380 мм будет 24 500 штук.
Смотрим спецификацию. Нескладуха 5700 штук. Это в деньгах на 40 000 рублей.
А внутренние стены добавят
(11+4)* 3-(0,91+1,5)*2,2=40 м2 - 1 этаж
(6+4)*3-0,9*3*2,2=24 м2-2 этаж
То есть внутренних стен будет 64*0,38*400=9 730 штук.
Но у нас ещё есть перегородки 2 этажа ((4,5+2,5+2,3+2)*3-0,9*2,2)*50 шт/м2=1600 штук
В сумме на внутренние стены полнотелого кирпича выйдет 11 400 штук
Сколько в спецификации у чувачка? 10 100 штук. Недобор 1300 штук..
Стало быть у нас останется облицовки 2500 штук, пустотелого рядового 5700 штук и не хватит 1300 штук полнотелого.
А если учесть, что в подвале ещё стыки между ФБС бутить около 3 м3, то и того больше.
То есть мы должны лишнего на 140 тыс. купить, а потом ещё докупать полнотелый на 30 000 рублей.
ЛОЛ. 170 тыс. затрат левых и куча ненужного материала на участке.
Это называется инженер составил проект. Или просто от балды нарисовал?????
Смотрим далее.
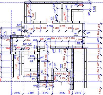
Окно 1,5 метра и дверь по оси Е. 5,5 штук кирпича дадут 250*5+120+8 швов=1450 мм. Мало Будет чакушка 50 мм под окном.
А если взять 6 кирпичей? 6*250+7 швов=1570 мм. Перебор 70 мм-резать надо-изврат.
Ну что с ним делать?
А как у него простенок получается 510 мм по оси Б?
Это только 2 кирпича со швом между ними. А до стены шов ведь тоже нужен 10 мм.
Думаете мелочь?
А здесь?
Как от угла до угла 2030 мм получится? Если 2030/260=7,8 кирпича.
Что резать?
Чтобы получилось такая порнуха?
Караул. Миллиметров намельчил парнишка 40 летний, да такую хрень напридумывал.
А ведь под это фундамент подгонять надо.
Ещё не устали? Следующий перл
Зачем под подшивкой кровли гнать облицовочный кирпич?
Не эти ли лишние 2500 штук у нас должны остаться? Не нужны они там. Кого удивлять? Воробьёв?
Думаете это уже всё?
Ага. Сейчас.
Па бам. Гидроизоляция стен подвала магическим способом клеится на ЭППС снаружи.
Про Аквапанель я уже промолчу. Сам уже устал от всего этого маразма.
Ну что добить Вас? Готовы?
По стене Е опираются плиты. Это логично. Перемычки ПР-1. Понятно.
А что такое ПР-1 на следующем листе
Занавес. Перемычка с погонной нагрузкой 800 кг/метр под плиты. Ё-моё.
Что ты творишь чудо инженерной мысли? Это не проект. Это анедот.
Перемычка нужна хотябы 5ПБ 28-37 и одна 3 ПБ 25-8п
Никак нельзя допустить это в работу.
Вы видите по оси 4 какие-нибудь перемычки? Я нет.
Тогда что за индус должен монтировать по оси 4 плиты на воздух?
Вам смешно. А мне что с этим всем делать?
Понять и простить?
Прикинуться валенком и мило улыбаться?
Давайте цепочки размеров проверим.
По задней оси: 1550+1500+2330+1500+1030+1870+2070=11850 мм
То же по передней оси: 1030+1050+770+1030+1310+1030+510+1830+1290+2070=11920 мм
Странно Почему не одинаковые размеры?? Целых 70 мм не сходятся?
По моему человек не своим делом занимается?
Или до строителей не дошли достижения современной кибернетики. Может мы живём в искривлённом пространстве и Евклидова геометрия уже не действует?
А как Вы думаете?
Или пох? Строители должны собрать и обточить напильником?
Смогут?






























