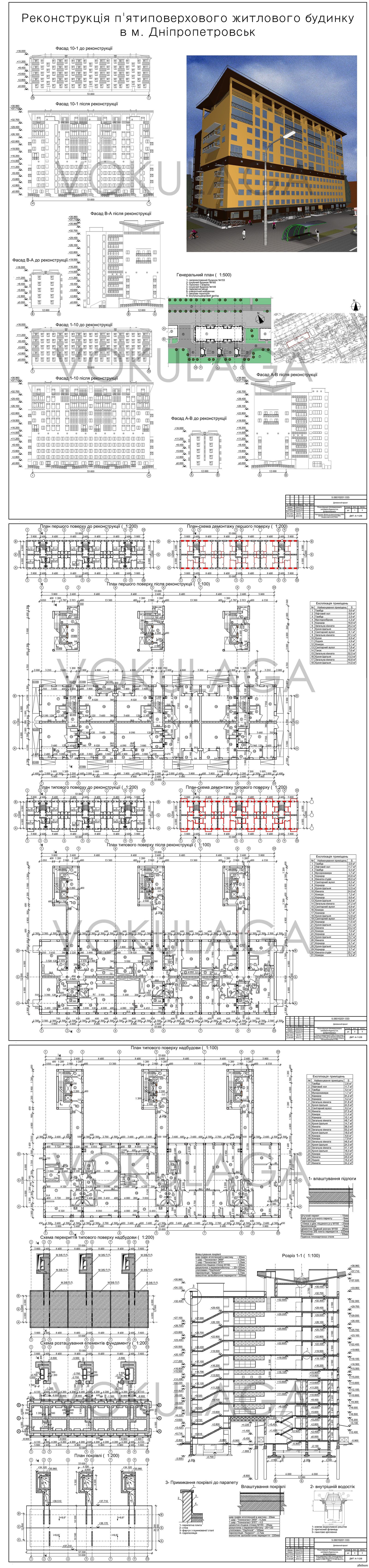
DELETED 10 лет назад Дипломный проект. Мой дипломный проект, реконструкция хрущевки в г.Днепропетровск. Защитил его в июне. Может кому пригодиться!? [моё] Дипломная работа Архитектура Реконструкция Хрущевка Дмт Длиннопост