Начал строительство дома из Газбетона..всем жаждущим помочь, милости прошу)
И так для начала всем здравствуйте! Понимаю, что уже начал стройку и после драки кулаками не машут, но понимаю, что без экспертного мнения не обойтись! Просто не ругайте меня сильно, это первый дом и понятно, что можно дров наломать мама не горюй.
Для начала выложу фотографии участка какой он был, далее продолжу по существу!
Думаю будет целесообразно выложить 3Д рисунок дома, какой он планируется быть:
Участок 5 соток, 20х25, почва хорошая, суглинок.
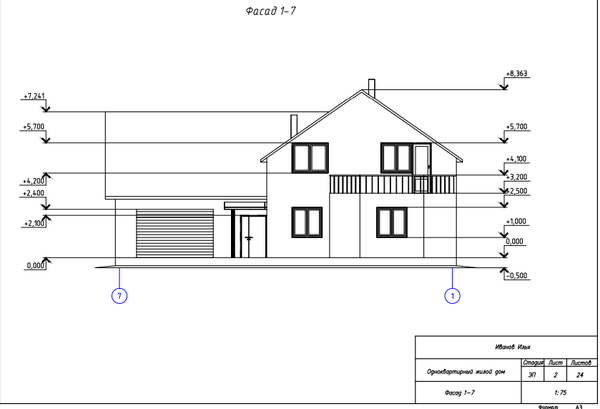
Сделал высоты, тоже их выложу для наглядности.
Дом строят Таджики, ребята толковые, работу свою знают. Прораб к сожалению не постоянный, но по возможности всегда приезжает и контролирует процесс.
Следующим постом хотелось бы поближе приблизиться к самому участку и показать какие работы были выполнены на нём в порядке очерёдности.
Сначала естественно были выкорчеваны все насаждения, дом и кусты, после чего принялся за проект.
С дуру сразу поставил забор из профиля, но с двух сторон..с третьей стороны сосед категорически против и обязывает меня нацепить сетку-рабицу) но пока я решил оставить ту часть забора до лучших времен.
Проект был таков - КУПИ ГАЗОБЕТОН, получи проект в подарок..чуток его подкорректировав и заплатив 15к бабла...спустя некоторое время после выкопанной ленты понял, что я ишак..просто говоря и тут то и начались все качели....
СОБСТВЕННО вот и сам проект, если он конечно будет востребован в дальнейшем:
Если будут нужны остальные листы проекта буду докидывать по мере необходимости.
Далее мои строители начали рыть под ленту..и так вышло, что я чуток не рассчитал уклон и в настоящее время задняя часть дома закопалась на 1,8 метра в глубину) по отношению к 0 (начало дома)...соответственно сам дом будет расположен очень высоко по отношению к дороге( сейчас выложу как сделана опалубка
На данный момент опалубка засыпана щебенем и началась вязка арматуры, только вот как выложить в этот же пост видео не знаю, да и картинок ограниченное количество.























