Секреты успешного построения поэтажных планов с Inventory
Построение поэтажных планов – это один из ключевых этапов работы в сфере управления недвижимостью и технического учета. Этот процесс требует не только точности, но и умения эффективно использовать программное обеспечение. Программа Inventory предлагает широкий спектр инструментов и функций для создания поэтажных планов, которые могут значительно упростить эту задачу. В этой статье мы раскроем секреты успешного построения поэтажных планов с помощью Inventory, чтобы вы могли максимально эффективно использовать возможности программы.



Подготовка данных и создание основы
Перед началом работы важно подготовить все необходимые данные и материалы. Убедитесь, что у вас есть точные размеры помещений, информация о проемах и других элементах, которые будут включены в план. Начните с создания нового проекта в Inventory и определения масштаба чертежа. Программа позволяет вам задавать масштабы и единицы измерения, что поможет обеспечить точность и соответствие планов реальным размерам объектов.
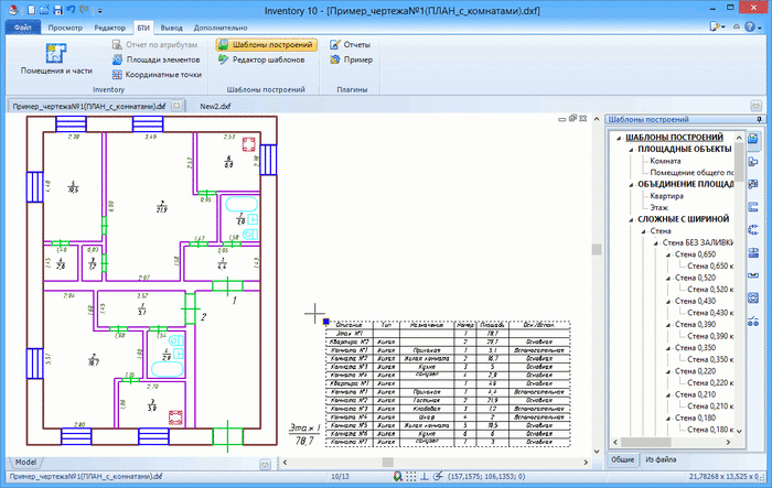
Использование готовых шаблонов для ускорения процесса
Одним из самых удобных инструментов в Inventory является возможность использования готовых шаблонов. Эти шаблоны уже содержат основные элементы, такие как стены, двери и окна, что позволяет значительно ускорить процесс создания поэтажного плана. Выберите шаблон, который наиболее близок к вашему проекту, и адаптируйте его под свои нужды, изменяя параметры и добавляя необходимые детали.
Автоматическое встраивание проемов
Inventory упрощает процесс добавления проемов (окон, дверей и ниш) в стены с помощью автоматического встраивания. Эта функция позволяет точно и быстро разместить проемы в нужных местах, без необходимости ручного расчета и корректировки. Убедитесь, что вы правильно настроили параметры проемов, чтобы они соответствовали размерам и требованиям вашего проекта.
Построение пересечений и объединений стен
Построение пересечений и объединений стен является важной частью создания поэтажного плана. Inventory предлагает инструменты для точного построения этих элементов, что позволяет создавать детализированные и правильные планы. Используйте функции редактирования для настройки ширины стен и их пересечений, чтобы получить максимально точный результат.
Управление слоями и объектами
Для эффективного построения поэтажных планов важно правильно управлять слоями и объектами. Inventory позволяет автоматически распределять объекты по слоям перед созданием чертежа. Это упрощает работу с комплексными проектами и позволяет легче находить и редактировать необходимые элементы. Используйте эту функцию для организации вашего чертежа и упрощения работы с ним.
Настройка атрибутов объектов
В Inventory можно добавлять и настраивать атрибуты для различных объектов на плане. Например, вы можете указать назначение комнаты, её площадь или тип материала стен. Это помогает создать более информативные и детализированные планы, которые будут полезны для дальнейшего анализа и работы.
Проверка плана
Перед окончательной версией поэтажного плана важно провести его проверку. Inventory предоставляет инструменты для проверки точности плана и выявления возможных ошибок. Убедитесь, что все элементы размещены правильно, а размеры и площади соответствуют проекту. Эта проверка поможет избежать ошибок и улучшить качество итогового документа
Программа Inventory предоставляет множество инструментов для успешного построения поэтажных планов, которые соответствуют самым высоким стандартам. Использование готовых шаблонов, автоматическое встраивание проемов, функции подсчета площади и управление слоями помогут вам создать точные и детализированные планы. Применение этих советов позволит вам эффективно использовать возможности Inventory и достичь отличных результатов в работе с поэтажными планами.



