Укладка кабеля по потолку
Здравствуйте. Очень интересует один вопрос. Допустим осуществляется прокладка кабеля по потолку(на бетонных плитах перекрытия) над подвесным потолком. Почему кабеля как правило укладываются вдоль стен, а не по кратчайшему пути?
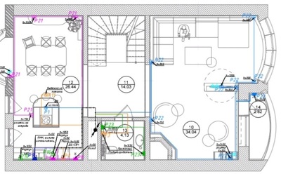
Дополню пост фотографией, чтобы было понятнее.
Вот например кабеля заходят в комнату и проложены вдоль стен, в обход светильников.







Лига Кабельщиков
9 постов31 подписчик