Помогите пожалуйста разобраться с подключением
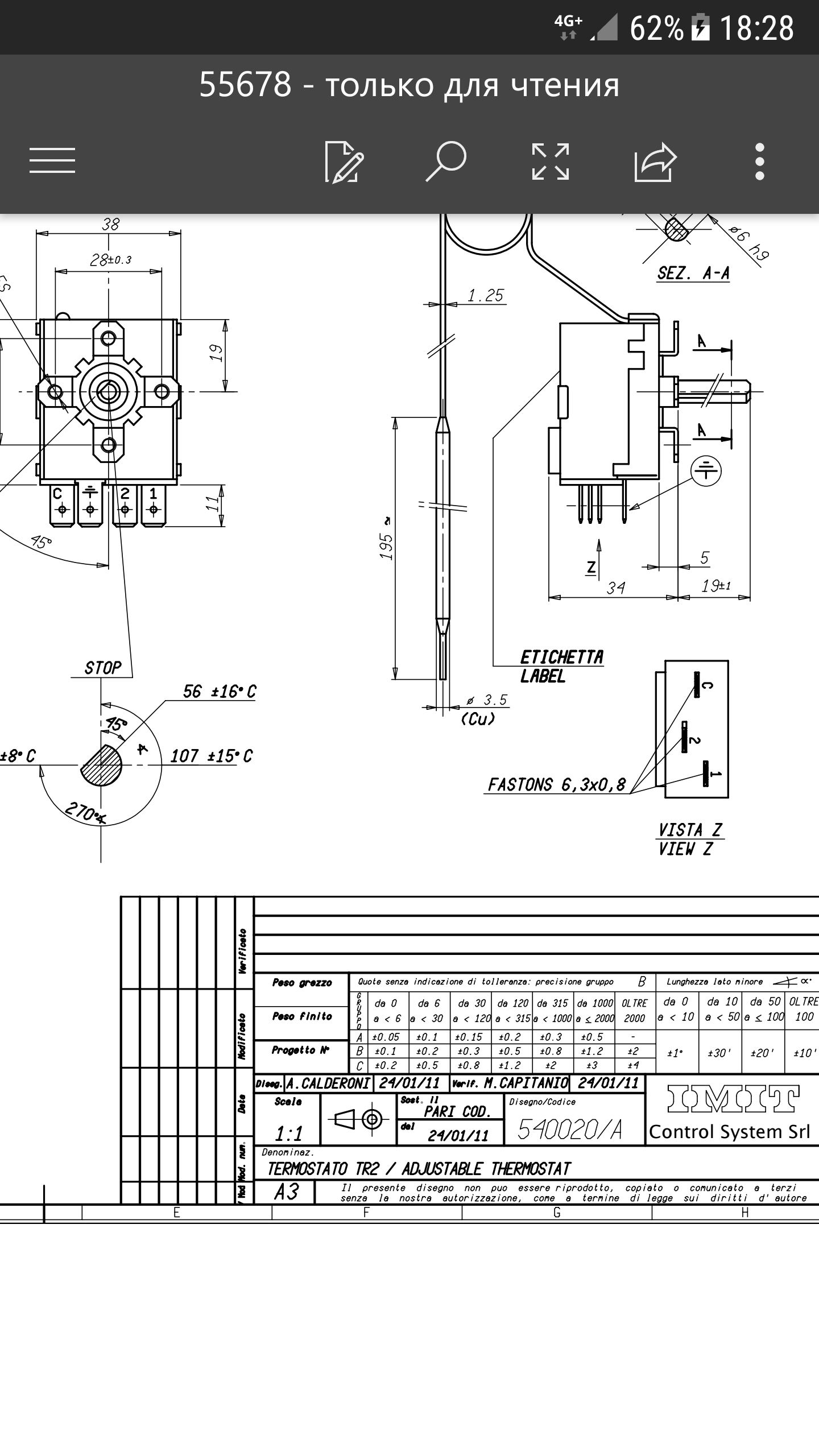
Есть сушильный шкаф binder, от старости или от слоя пыли, сгорел термостат
Электрик находится в отпуске и телефон не берет.
Пришлось купить новый, но у него подключение другое.
Подгоревшая часть +
Подскажите пожалуйста, кто знает, как его правильно запитать.
Схемы нет от самой печки.
Это старое подключение.
Поправьте если ошибаюсь
плюс идет постоянный, а размыкается минус?





