Как сделать дизайн–проект квартиры самостоятельно: делюсь своим опытом
Ох уж этот ремонт! Кажется, что мы с мужем уже пережили три жизни, пока строили свой дом. Чтобы не нанимать дорогих спецов, я решила разобраться, как самой сделать дизайн-проект квартиры. Это же наше гнездышко, хочется, чтобы каждая деталь была продумана нами!
Предварительный дизайн-проект – это наш спасательный круг. Он помогает разложить в голове все эти смутные «хочу» и «надо». Когда есть план, сразу видно, где ждать подвоха и сколько денег понадобится. В этой статье я поделюсь своим опытом, как самостоятельно сделать дизайн-проект квартиры, чтобы сэкономить кучу денег (а услуги дизайнеров стоят ой-ой-ой!) и сделать все так, как нравится именно вам.
Берем в руки рулетку – и вперед, измерять!
Помню, как мы с мужем ползали с рулеткой по нашему еще пустому дому. Это самый-самый ответственный этап. Вот прямо не поленитесь, перепроверьте трижды! Почему? Да потому что все ваши дальнейшие планы, вся расстановка мебели, а тем более мебель на заказ (которая стоит как чугунный мост и делается два месяца!), будут зависеть только от этих цифр. Представьте этот кошмар: привезли вам шикарный шкаф, а он, бац, и на пять сантиметров не встает в отведенное место. Катастрофа! Чтобы этого не случилось, измеряем все до миллиметра.
Что обязательно нужно зафиксировать:
Общая площадь помещения. Тут все понятно: пол, стены, потолок. если комната обычная, прямоугольная (нам повезло, у нас почти все такие), то площадь считаем по школьной формуле: S = высота * длина. Даже если комната нестандартная, разбейте ее на прямоугольники, и будет вам счастье.
Окна. Не просто ширину и высоту проема! Учитываем, сколько сантиметров от проема до пола, до потолка, до угла. И обязательно рисуем, в какую сторону открывается створка. Это мега-важно для расстановки мебели рядом, чтобы потом не пришлось лазить через диван, чтобы открыть окно.
Двери. Тут принцип тот же: меряем сам дверной проем, и, опять же, не забываем зафиксировать, насколько открытая дверь «съедает» пространство. Иначе дверца шкафа будет вечно с ней сталкиваться.
Толщина стен. Внешние, внутренние, тонкие перегородки – все они имеют разную толщину. На плане это нужно пометить отдельно, чтобы понимать, где можно вешать тяжелый кухонный шкаф, а где лучше обойтись легкой полочкой.
Все «технические точки». Это наша головная боль, которую нельзя двигать! Нужно зафиксировать точное расположение электрощитов, домофонов, всех розеток и выключателей, вентиляционных решеток и, конечно, горячих наших любимых радиаторов. Иначе поставишь комод – и он перекроет розетку. Или шкаф – и он закроет вентиляцию.
Создаем точный чертеж помещения
После того, как мы с рулеткой оббегали все помещения (и не один раз, потому что я всегда перепроверяю!), нужно перенести все эти заветные циферки на чертеж. Рисовать от руки – это, конечно, романтика, но в двадцать первом веке есть способы попроще.
Тут на помощь приходят специальные программы. Работать с ними – одно удовольствие.
Для составления плана и расстановки мебели мы протестировали несколько программ:
Дизайн Интерьера 3D. Эта программа – настоящий друг для новичка! Она русскоязычная, интуитивно понятная и позволяет не просто чертить, но и расставлять мебель из встроенного каталога. Можно менять отделку, текстуры, даже свет настраивать. На официальном сайте пишут, что она подходит даже для проектирования домов (это нам, кстати, пригодилось!), а готовый проект можно распечатать или отправить по почте. В общем, если вы ищете что-то простое и понятное, чтобы самостоятельно создать дизайн–проект квартиры онлайн и бесплатно (есть пробная версия), это отличный вариант.
РумПлан 3D. Отличная онлайн-программа, которая заточена под быстрое создание планировок и 3D-визуализацию. У нее есть огромная библиотека мебели, материалов и аксессуаров. Главный плюс, который мне понравился, – возможность просматривать проект в режиме реального времени, «прогуляться» по комнатам. Это очень помогает понять масштаб и не накосячить с размерами. Кроме того, можно легко экспортировать чертежи в разных форматах.
Planner 5D. В этом сервисе можно создать дизайн-проект квартиры онлайн самостоятельно и бесплатно. У Planner 5D есть мощная бесплатная версия. Она позволяет рисовать планы этажей в 2D, а потом в один клик переводить их в 3D. Каталог мебели у них просто огромный, а еще можно поиграть с цветом, фактурами стен и пола. Интерфейс настолько простой, что разберется даже тот, кто последний раз чертил на уроках труда.
Flat Planner. Это простой, полностью бесплатный и очень функциональный инструмент, который подойдет для быстрого создания плана. В нем нет сложных настроек и бесконечного числа кнопок, что для меня, человека, который хочет сделать «быстро и хорошо» , было плюсом. Можно легко переносить стены, добавлять двери и окна. В общем, если нужно просто как самостоятельно составить дизайн-проект квартиры без лишних заморочек с супер-навороченными визуализациями, Flat Planner – то, что надо.
Пишем техническое задание
Дальше – самое и важное: техническое задание. Это наш подробный план, который поможет не отвлекаться на «ой, а может, перекрасим в фиолетовый?». В ТЗ – выжимка самого важного в процессе ремонта. В нем должно быть несколько ключевых разделов.
Планировка
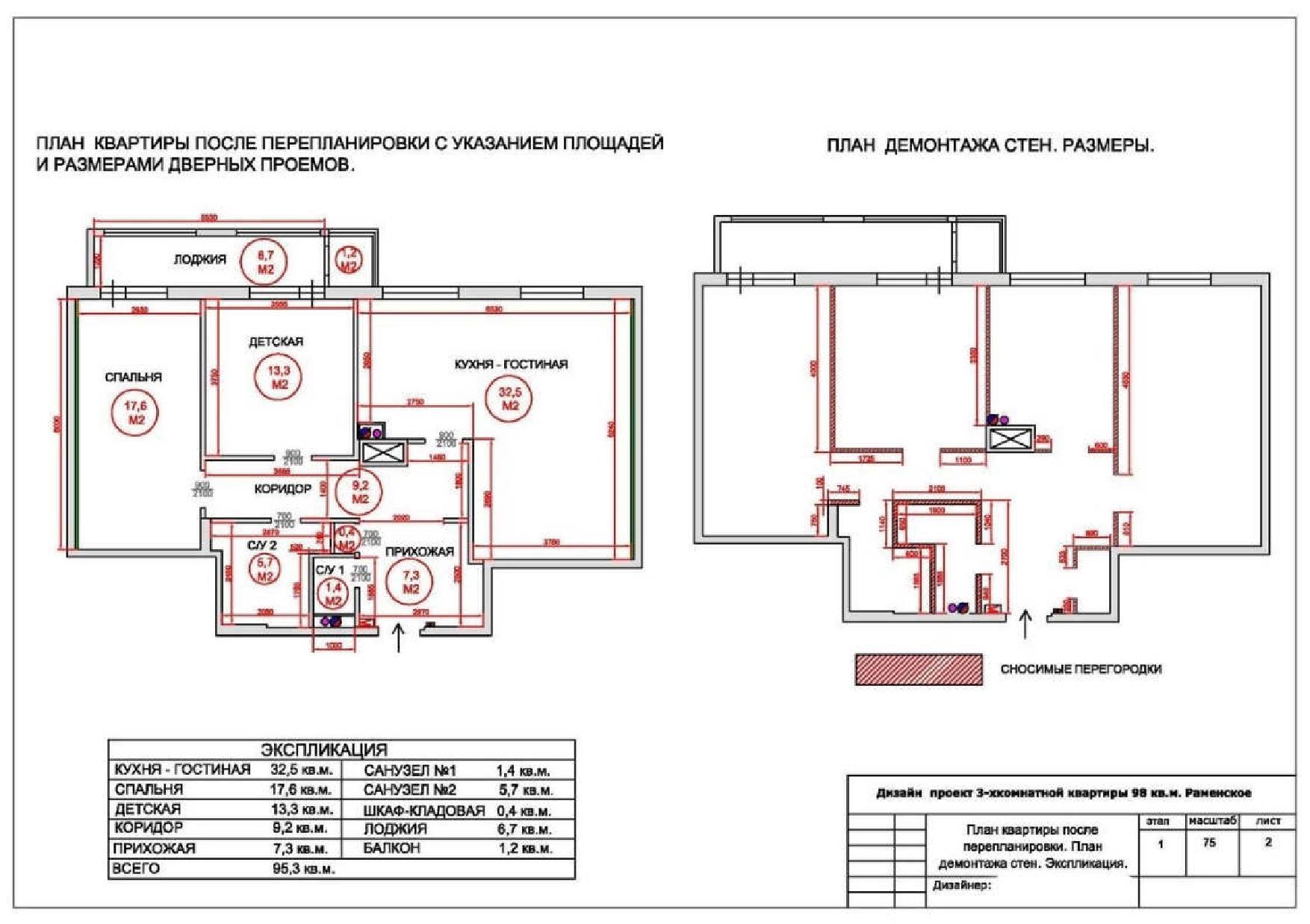
Устраивает ли нас текущая схема квартиры? Если нет, то перепланировка – это шикарный способ добавить света, пространства, или, например, выделить небольшую рабочую зону. Мы вот в доме снесли одну стену и объединили кухню с гостиной – теперь просторно и удобно! Но тут важно помнить: сносить несущие конструкции категорически запрещено! И да, все изменения нужно узаконить, иначе потом будут проблемы. Лучше сто раз перепроверить, что можно двигать, а что лучше не трогать.
Стиль интерьера
В ТЗ обязательно прописываем стиль. Не нужно быть искусствоведом, достаточно назвать его: сканди, лофт, минимализм или смешение нескольких интерьерных стилей. Важно понимать, какие материалы будут преобладать: дерево, бетон, стекло? Какие цвета?
Но все же не рекомендую создавать «винегрет» в квартире. Лучше выбрать единую концепцию. Сейчас в моде: минимализм, арт-деко, джапанди, эклектика, неоклассика, ретро.
Помните: не все стили дружат между собой. Идеально, если вся квартира будет в одном стиле, но можно подружить схожие направления (например, современный и скандинавский). За вдохновением и картинками обратитесь в Pinterest – сохраняйте все, что понравилось, и прикладывайте к ТЗ, чтобы не забыть!




Расположение помещений
На этом этапе нужно определить, где будет каждая комната. Например, детскую лучше сделать рядом со спальней родителей – так слышно, если малыш заплачет. А вот кабинет, наоборот, должен быть подальше от шума: подальше от ванной или детской. Сложнее всего менять расположение кухни и санузла. Это практически нереально, но можно скорректировать их размеры! Ванную можно расширить за счет нежилых зон (кладовка, коридор). Кухню можно объединить с гостиной, если плита электрическая, а не газовая.
Расположение электрики
Чтобы потом не спотыкаться о провода и не увешивать квартиру удлинителями, нужна индивидуальная схема электрики для каждой комнаты. Составьте список всей техники! Например, в ванной обязательно нужны розетки для стиралки и водонагревателя. Планируете свет на балконе? Значит, туда тоже тянем проводку. Если квартире сто лет в обед и проводка древняя, лучше не жадничать и заменить ее полностью.
Тип освещения
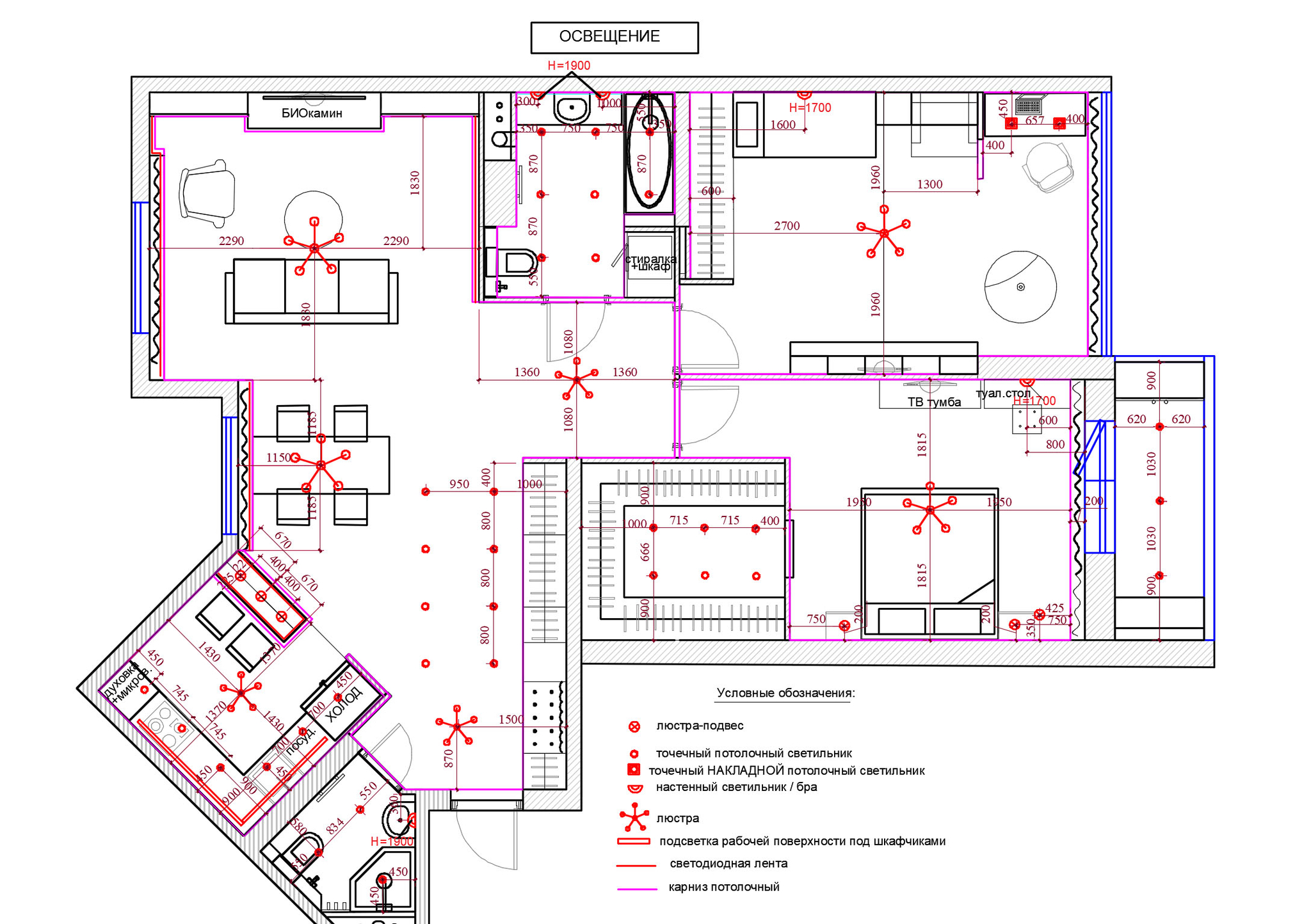
Свет – это настроение! Продумайте, какое освещение нужно: встроенные потолочные светильники или классические подвесные люстр. Где будут располагаться бра, торшеры, настольные лампы.
Делаем развертку стен
Мы уже обсудили, как сделать 2D-схему для дизайн-проекта квартиры. Но это только полдела. Нам еще нужно понять, как стены будут выглядеть в анфас – это называется развертка.
Развертка делается обязательно! Это то, где всплывают все ошибки. На ней вы увидите, как будут стыковаться плинтусы, как соотносятся двери и окна, и, самое главное, где именно будут розетки и выключатели. Мастера будут сверяться с ней во время работы, поэтому указывайте точные расстояния между всеми объектами.
Заключение
Вот мы и разобрались, как самостоятельно составить дизайн-проект квартиры. Обойтись без дорогих профессионалов вполне реально, если подружиться с современными технологиями. Онлайн-планировщики для 2D-схемы и программы типа Дизайн Интерьера 3D для трехмерной визуализации – лучшие помощники. В итоге вы не только сэкономите бюджет, но и время на то, чтобы объяснить свои безумные, но гениальные, задумки какому-нибудь незнакомому дяде-дизайнеру. А еще – получите огромное удовольствие от того, что ваш дом сделан полностью по вашей задумке!








