Дом с травяной крышей в США
Семейный дом для отдыха расположен на красивейшем прибрежном участке с захватывающими пейзажами, неоднократно привлекавшими художников в эту часть Лонг-Айленда последние полтора века.
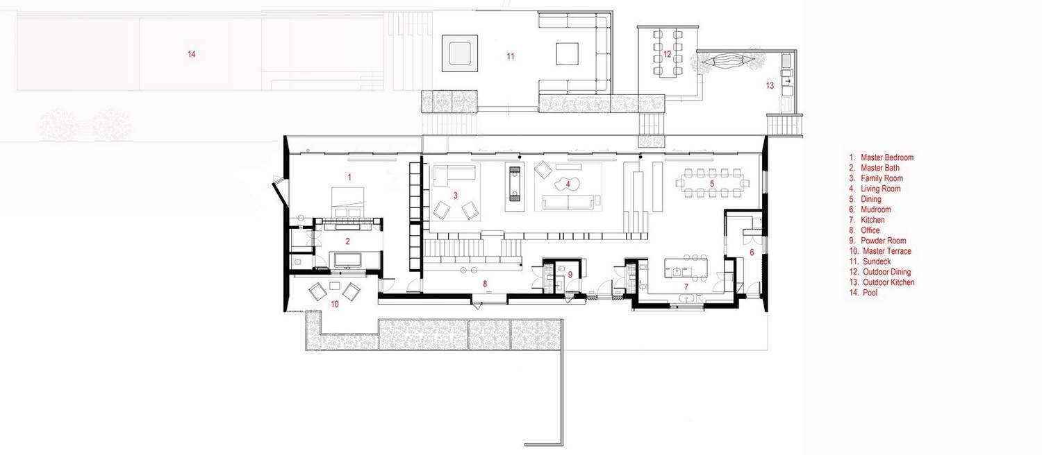
Дом выполнен в простой, почти минималистской стилистике в двух уровнях, при этом нижний уровень с тремя спальнями частично расположен под землёй, а частично открывается к расположенному рядом открытому бассейну.
Наверху находятся общая зона и главная спальня. Высококачественная, почти мебельная деревянная отделка снаружи и внутри (кедр и белый дуб) существенно смягчает простоту дома и делает его тёплым и уютным.
Также для наружной отделки использован кортен (ржавый металл). Гостиная с панорамным остеклением, открывает обзор на широкие просторы залива, а крыша засеяна местными луговыми травами.
Название: Дом у залива Пеконик (Peconic House)
Расположение: Пеконик, Хэмптон Бейс, Нью-Йорк, США
Архитектура: MAPOS
Строительство: 2016
Общая площадь: 372 м2 плюс 186 м2 терраса
Фото: Michael Moran























Архитектура и дизайн интерьера
2.2K пост6.1K подписчиков
Правила сообщества
В сообществе запрещается всё то, что запрещено правилами сайта :) Архитектурные проекты принимаются к публикации только при наличии:
-имени проекта (если имеется)
-имени архитектора
-места строительства (предполагаемого/фактического)