ThomasVargaas
Американец поёт на русском языке (пытается)1
Поржал от души
Гримерное зеркало: от идеи до реализации
Всех приветствую, это моя вторая запись о том, как я своими руками решил смастерить простое зеркало с подсветкой.
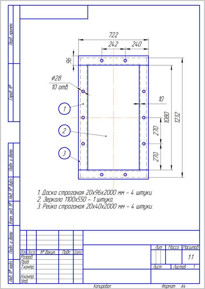
Имелось старое зеркало времен СССР, которое очень захотелось обновить. Мною был нарисован простенький чертеж с точными размерами и 3Д - модель общего вида, чтобы понимать то, что я строю. Об этом был мой первый пост на Пикабу.
За основу было принято взять то самое зеркальное полотно. Требовалось вынести его от стены в деревянном каркасе, в котором, в свою, очередь разместить лампы и всю коммутацию.
В Леруа Мерлен были куплены строганные доски. Но выбирать их стоит очень тщательно и щепетильно, лично я каждую прикладывал к ровной плоскости стеллажа пиломатериалов. Кривых было полно, и когда уже жена стала угрожать пинком под задницу, т.к. устала перебирать доски, я все же остановил свой выбор на более-менее ровных. Пиломатериал обошёлся 1000 рублей.
Уже дома я приступил с разметке.
Запасся хорошим настроением, отличным инструментом, и вперед.
Распиливал дерево электролобзиком с качественной пилкой Dewalt, с ней было минимум сколов и вырывания волокон дерева. Но все же, не всегда рез получался ровным, все же электролобзик - не совсем для прямого реза.
Напилив в размер, разложил на полу и прикидывал красивый рисунок. Определившись, стал скручивать каркас.
Все углы точно выставлял под 90°, ну, на сколько это позволяли мои кривые руки.
Стоит заметить, что доски из Леруа Мерлен не всегда отрезаны ровно под угол 90°, поэтому приходилось пилить лобзиком с двух сторон, благо запас на этапе проектирования был мною заложен.
С учетом не совсем ровных торцов досок, получилось вполне себе, углы вышли прекрасно.
Проверил диагонали, получилось миллиметр в миллиметр.
Размечаю и пилю рейки для боковин. В разметке очень помогает пара: рулетка + складной метр. Кто хоть раз так работал, поймет.
Стал собирать каркас дальше, заметил, что купленные мной маленькие уголки были кривыми, не везде был нормальный угол, гнул коброй и пассатижами.
Когда каркас был готов, размечал места под отверстия для патронов ламп.
По разметке сверлил сверлышком Dewalt 3 мм.
Сами отверстия вырезал кольцевой пилой по дереву, набор перьев еще не купил. Здесь самое главное вовремя удалять стружку из зоны реза, т.к. она забивает зубья, пила и заготовка перегреваются. Это самый главный минус такой оснастки, что обуславливает её конструкция, во всем остальном, отверстия получались равными, без сколов. С другой стороны подкладывал обрезочек доски, чтобы на выходе пила не вырывала волокна дерева.
Помогал пылесосом.
Примерил один патрон, смотрится неплохо.
В итоге, получилось совсем не плохо.
Вкрутил лампочку на место, посмотреть как будет выглядеть.
В сумме по проекту вышло 10 ламп, решил разбить их на 2 группы, первая - 4 лампы, вторая - 10 ламп. Для этого был куплен переключатель с подсветкой, с двумя парами переключающимися НЗ-НО контактами. Положения I-0-II. Квадратное отверстие под него пилил реноватором, взял для этого самую узкую насадку от Dewalt.
Т.к. переключатель идет с усиками для установки в тонколистовом металле, то мне пришлось его вклеить на свое место.
Настало самое интересное - электрика. Из своей электромонтажной сумки вытащил все необходимое.
Стоит напомнить, что для переключателя необходимо обжать провод с плоским разъемом типа "мама" 6,3 мм шириной, без усика. Для всех остальных соединений использовал НВШИ.
После установки зеркала на специальные держатели, так выглядит готовый вариант.
При подаче питания, в нулевом положении, светится клавиша.
Как и писал выше, первый режим - светятся четыре лампы.
Второй режим - все десять. Лампы брал нейтрального цвета свечения, Е14, шар, 8 Вт. Gauss. Очень люблю эту фирму, все лампы дома покупаю только этого производителя.
Провода от ламп развел по обычным иэковским клеммникам, провода собрал в жгуты, получилось красиво и культурно.
Фотографии больше не влезли, добавлю остаток в комментарии ниже. Тэг "рукожоп" поставил на всякий.
Каждый мужчина хоть раз в жизни должен посадить дерево, построить дом, и собрать это сранное гримерное зеркало для жены
Всем привет, я здесь новичок, и решил оформить свой пост в качестве знакомства с пикабу. Появилась идея "немного" обновить старое советское зеркало в прихожей, тем самым, подарив ему новую жизнь. Немного пораскинув инженерными мозгами, поработав рулеткой и карандашом, решил действовать. Начал с малого - составил чертеж.
Рассчитав необходимые размеры, тут же определился с материалом для будущего "шедевра". Дерево решил брать в Леруа соседнего города. Все остальное заказал на Всеинструменты.ру. Подробный список деталей с ценами и артикулом будет в следующей записи. В этой я решил лишь поделиться идеей будущего проекта и почитать критику.
Ради интереса вспомнил свои навыки 3Д моделирования, и решил немного побаловаться в САПР-е.
Вот что примерно получилось, сильно не кидайтесь тапками, чукча - не художник.
Модель создал для себя, чтобы было более наглядней, и для сверки с реальным изделием. Немного сумбурно, но следующий пост максимально подробно покажет сам процесс сборки, с множеством фото и пояснений. Кто решит ждать - будет в следующем месяце. Всем спасибо.



































